Search
- Home
- For Sale
- Pubs/Bars/Clubs
- The Lamb Inn, Eccleshall Road, Stone, ST15 0HJ
Overview
- Pubs/Bars/Clubs
- Property Type
- 4742
- sqft
Description
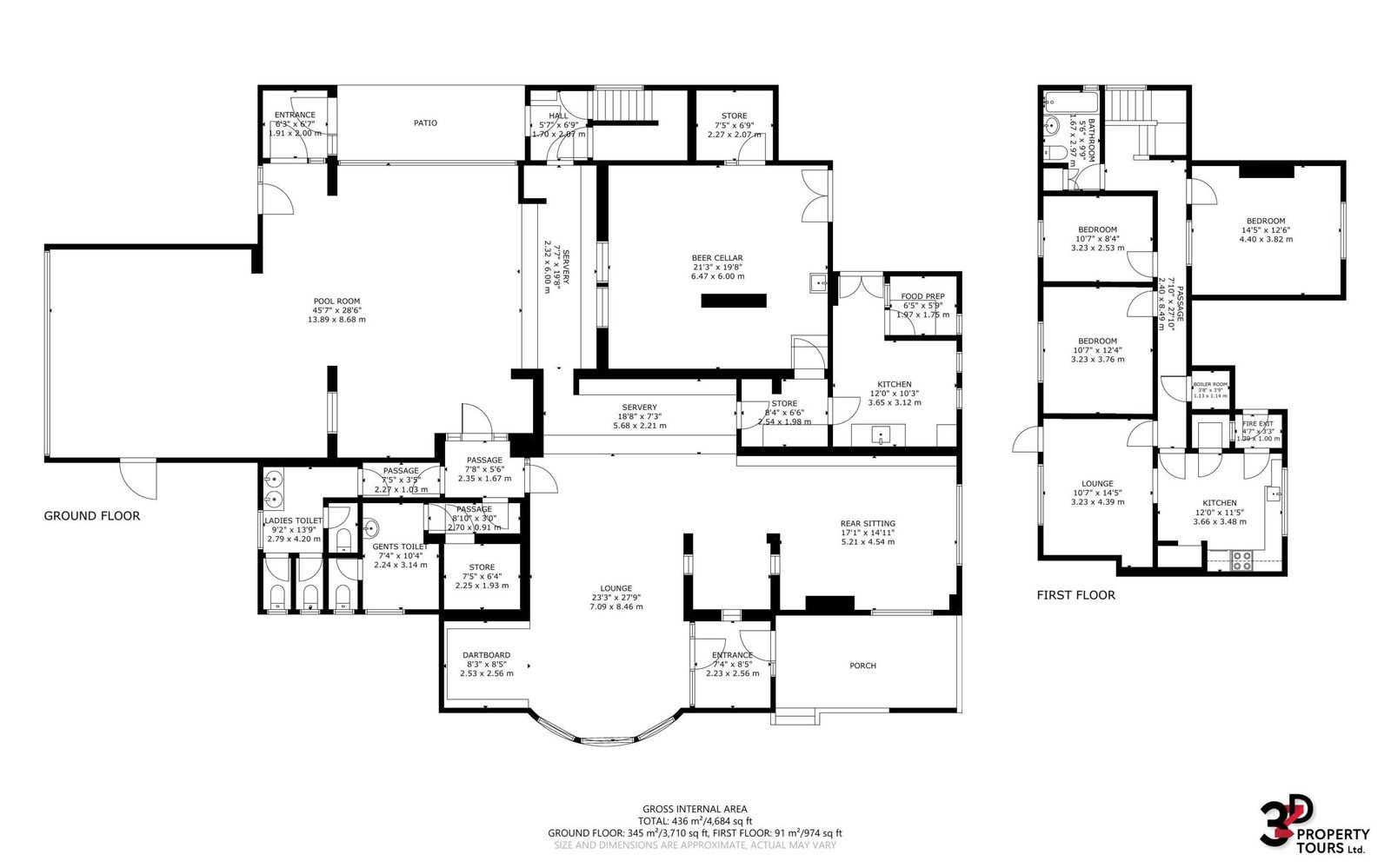
Location
The Lamb comprises a substantial two storey brick building with partly rendered elevations beneath a traditional pitched tiled roof with various single storey extensions. To the Eccleshall Road frontage there is a surfaced car park for 22 spaces and a further car park with 32 spaces accessible from the Walton Way frontage, together with a beer patio adjacent to the trading area. The site in total extends to 0.707 acres and the footprint is 4,916 sq. ft (Nimbus Maps). A Substation lies immediately to the west of the public house.
Summary
Key points
- Main road site of 0.707 acres within 100 yards of A34.
- Stone town centre 0.5 miles - well populated catchment.
- Substantial 2 room pub with car park for 50 plus cars.
- Scope for further promotion as landmark Pub/Desi Bar Grill.
- Development opportunity for range of roadside /commercial/residential/care uses, subject to planning.
- Offers are invited for the freehold property subject to contract and exclusive of VAT where chargeable.
Contact
Matthew Phillips Surveyors
Tel: 0121 353 2757
Matthew Phillips
matt@matthewphillipssurveyors.co.uk
http://www.matthewphillipssurveyors.co.uk/
EPC
Mortgage Calculator
Monthly
-
Down Payment
-
Loan Amount
-
Monthly Mortgage Payment
£
%
%
The Lamb Inn, Eccleshall Road, Stone, ST15 0HJ
Contact Information
View ListingsSimilar Listings
- Industrial, Industrial Warehouse
- £600,000 pax & Price u/a
Industrial Warehouse: Sale/Lease, Burnley, BB10 2TT
Unit 2 Widow Hill Court Heasandford Industrial Estate, Burnley, Lancashire, BB10 2TT, Unit 2 Widow Hill Court, Burnley, Lancashire, Burnley, UK, BB10 2TT- 143,051 sq ft
- Industrial
Station Road Garage, Station Road, Adwick Le Street, Doncaster, DN6 7BE
Station Road Garage, Station Road, Adwick Le Street, Doncaster, DN6 7BE, Doncaster, Adwick-Le-Street- 160 sqm
Contact me

- Craven Wildsmith
- View Listings
- Investment
Marvels Lane Clinic, 37 Marvels Lane, Bromley, London, SE12 9PN
Marvels Lane Clinic, 37 Marvels Lane, Bromley, London, SE12 9PN, London, Bromley- 10000 sqft
- Investment
114E Blackstock Road, Islington, London, N4 2DR
114E Blackstock Road, Islington, London, N4 2DR, London, Islington- 500 sqft
- Investment
1 – 3 Marconi Place, Friern Barnet, London, N11 1PE
1 - 3 Marconi Place, Friern Barnet, London, N11 1PE, London, Friern Barnet- 4988 sqft
- Other
Car Park Space, 32 Ewart Grove, Emerald Apartments, Wood Green, London, N22 5NU
Car Park Space, 32 Ewart Grove, Emerald Apartments, Wood Green, London, N22 5NU, London, Wood Green- 135 sqft
- Other
Car Park Space, 32 Ewart Grove, Emerald Apartments, Wood Green, London, N22 5NU
Car Park Space, 32 Ewart Grove, Emerald Apartments, Wood Green, London, N22 5NU, London, Wood Green- 135 sqft
- Matthew Philips








