Lot 1 – Rose Cottage Farm, Acre Dyke Lane, Branston Booths, Lincoln, LN4 1JD
Address
Open on Google Maps-
City: Lincoln
-
County: Lincolnshire
-
Area: Branston Booths
Overview
- Agricultural
Details
Updated on December 14, 2025 at 3:09 pm-
Property Type Agricultural
Description
Location
Established equestrian property set in around 19.41 acres
Four bedroom property with one bed attached flat
Stabling & Olympic sized manège
Office space, outbuildings & Yard with car park
Established equestrian property set in around 19.41 acres – 4 bedroom property with one bed attached flat – Stabling & Olympic sized manège -Office space, outbuildings & Yard with car park – Income of circa £40,000 with huge potential to increase – Beautiful rural location just 6 miles from Lincoln
Detailed Description
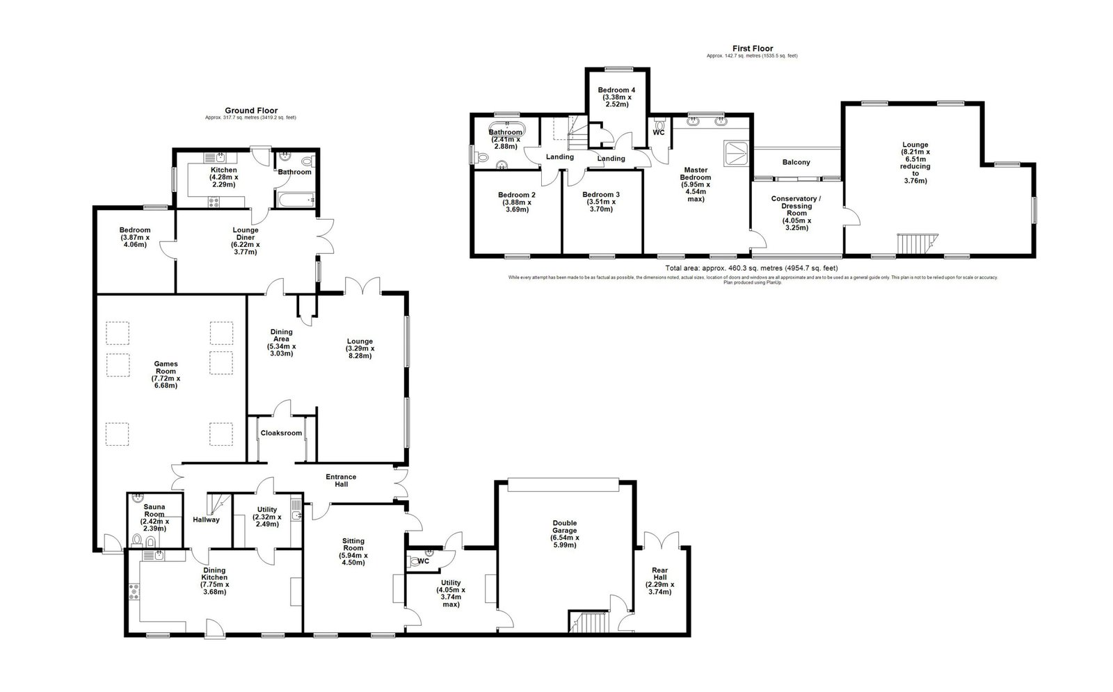
Rose Cottage is an established equestrian property set in around 19.41 acres and comprises a four bedroom detached house with attached one bed flat, stabling, manège, garaging, office space, outbuildings, yard with hard standing/car park.
The current owner has created this holding over the last 25 years and is now ready to retire and hand over the reins to a new custodian who is looking for a ready made equestrian business with huge potential to develop various business opportunity’s across the holding.
The farm is situated between the villages of Heighington and Branston Booths which are just 6 miles from the Historic City of Lincoln and just 3 miles from the Lincoln Eastern Bypass which offers great transport links.
Location
Directions
From Heighington follow the High Street out of the village onto Fen Road. Then turn right onto Brinkle Springs Lane and the property can be found on the left hand side at the junction with Moor Lane.
https://what3words.com/soak.lollipop.mermaids
Accommodation
Accommodation
Entrance Hall
Double glazed window to rear elevation, radiator, door to;
Reception One
Double glazed casement window to front elevation and double glazed French doors to side elevation, tiled floor, log burner, vertical radiators, storage cupboard, door to self contain flat and further door to;
Cloak Room
With built-in wardrobes.
Sports Room
Six double glazed Velux windows to front and rear elevation which are electrically operated, double glazed door to side elevation, underfloor heating, Coast Spa hydro pool, built-in base units, door to;
Wet Room
With built-in sauna, bidet, low flush WC, pedestal wash basin, heated towel rail, two wall mounted showers and extractor.
Kitchen/Diner
Double glazed casement window to side elevation, fitted wall and base units with stainless steel one and a half bowl drainer sink, Stanley range cooker which also provides hot water and heating, further built-in oven, two ring electric hob with extractor over, separate island with additional storage, radiator, wood burner.
Utility
Fitted wall and base units with large Belfast sink, space for dishwasher and large fridge.
Hallway
With under stairs storage cupboard and stairs to 1st floor.
Lounge
Double glazed casement window to side elevation, double glazed door to front elevation, two radiators and a log burner.
Boot Room
Double glazed doors to front and rear elevation, fitted wall and base units with stainless steel single drainer sink, space and plumbing for washing machine and tumble dryer, door to WC and garage.
WC
Two piece suite comprising pedestal wash basin, low flush WC, extractor
Garage
Double garage with double glazed window to side elevation, door with stairs to 1st floor, fitted base unit with one and a half bowl single drainer sink.
First Floor
Bedroom One
Double glazed casement window to side elevation, radiator, built-in wardrobes..
Bathroom
Double glazed casement window to rear and side elevation, three-piece suite comprising large Jacuzzi bath with shower mixer tap, mid flush WC, wash basin, fully tiled walls, heated towel rail.
Bedroom Two
Double glaze casement window to side elevation, radiator, built-in wardrobes.
Bedroom Three
Double glazed casement window to side elevation, radiator, built-in wardrobes.
Bedroom Four
Double glazed casement window to side elevation, en-suite shower, fitted base unit with dual sinks, radiator, door to;
WC
With low flush WC and extractor fan.
Sunroom
With double glazed windows and patio doors to side elevation, which also leads to the balcony, door to;
Sitting Room
Double glazed casement window to front and side elevation, stairs down to garage.
Rose Cottage Flat
Lounge/Dining room
Double glazed casement window to front elevation, double glazed French doors to front elevation, radiator, log burner, door to kitchen and bedroom.
Bedroom
Double glazed casement window to side elevation, vertical radiator, built-in wardrobes.
Kitchen
Double glazed casement window to rear and side elevation, fitted wall and base units with one and a half bowl stainless steel single drainer sink, built in oven, electric hob with extractor over, space and plumbing for washing machine, heated towel rail, door to bathroom and door to side elevation.
Bathroom
Double glazed casement window to side elevation, three-piece suite comprising panelled bath with shower over, low flush WC, pedestal wash basin, heated towel rail, part tiled
walls, extractor.
Outside
The front elevation offers a large gravel driveway, established pond, gates to Acre Dyke Lane and Moor Lane. The rear elevation offers a patio area with oak framed pergola.
Timber Summer house 5.02m max by 2.90m max
Currently housing a coast spa hot tub with double glazed casement windows to front and side elevation and deck.
Triple Garage/Office
Stone and pantile building with three up and over doors to the front elevation and a large electric roller shutter door to the side elevation. The ground floor offers substantial storage area and to the rear there is a pedestrian door leading to a WC with low flush WC, pedestal wash basin, radiator, extractor.
Triple Garage First Floor
Office One
Double glazed casement window to front and side elevation, fitted base unit with stainless steel sink.
Office Two
Double glazed casement window to front and side elevation.
Timber Double Garage 5.83m x 3.23m
Divided into two sections.
Back of Two Bay Stable Block
Garage with built-in shelving and electric roller shutter door accessed from the property driveway.
Agricultural Shed 9.03m x 9.15m
This building offers a substantial storage area with good eaves height and two electric roller shutter doors. Two bedroom
Carnaby Regent caravan
Breeze Block Unit
Stable 4.38m x 4.00m
Power and light
WC
Two piece suite comprising pedestal wash basin and low flush WC.
Hallway
With base unit and electric heater.
Unit One 4.14m x 3.76m
Roller shutter door with further pedestrian door within, power and light.
Store Room 2.85m x 2.41m
Unit Two 8.02m x 7.04m
Electric roller shutter door with further pedestrian door within, power and light.
Yard Section One
An area of hard standing extending to around 0.86 of an acre which offers great potential for a variety of uses subject to any necessary planning consents.
Shipping Container
Housing Diesel Tank
Five bay open storage shed 20.49m x 4.76m
3 x shipping container 6m x 2.5m
Yard Section Two
The second half of the yard can be enclosed by large steel doors.
Five Bay Open Storage Shed 7.21m x 24.5m.
Currently used as a vehicle storage and Wood store area. It also houses and oil tank.
Five Bay Open Storage Shed 26.5m x 9.73m
Small Steel Storage Container
Tea Room
Fitted base unit with one and a half bowl stainless steel sink, double glazed picture window to rear elevation. Two piece suite comprising pedestal wash basin and low flush WC. Office with double glazed casement window to side elevation.
There is also a covered horse washing area with water supply.
Stabling
2 x Two Bay Timber Stable with built-in tack rooms
1 x Three Bay Stable with built-in tack rooms
1 x Three Bay Hay barn
1 x Two Bay Timber Stable with built-in tack room and lean to hay and feed store.
3 x 2 bay timber stable with built-in tack rooms
65m x 25m Olympic sized floodlight manège
Lot 1 Income
The steel shed is bringing in £5,000 per annum and the Horse Livery Business is currently bringing in around £35,000 per annum with potential to increase this amount significantly through additional Horses, rental of the manège for events and dressage and rental of buildings within the yard which have previously been let.
Services
The house has mains water, electric, oil fired central heating and a septic tank. The yard has a 3-phase electricity supply and mains water and the other land lots have water and electric where stated in the particulars. We have not carried out any tests on any of these services or appliances and interested parties should arrange their own tests to ensure they are in working order.
Strictly by Appointment with the selling agent 01522 504304
Other
GENERAL REMARKS & STIPULATIONS
Method of Sale
Rose Cottage Farm is offered for sale by private treaty, as a whole, or in any combination of the 7 lots. The farm is available with vacant possession on completion. Holdover may also apply as stated in these sale particulars.
FARM MACHINERY
There is a large selection of farm machinery and grass cutting equipment that will be available by seperate negotiation.
PLANS & AREAS
The attached plans are not to scale, are for identification purposes only and do not form part of any contract.
VAT
Should any sale of the land or any right attached to it become a chargeable supply for the purpose of VAT, such tax shall be payable by the buyer in addition to the contract price.
BOUNDARIES
The buyer shall be deemed to have full knowledge of all boundaries and neither the seller’s, nor the seller’s agent, will be responsible for defining the boundaries nor their
ownership
Wayleaves, Easements & Rights
The land is sold to and with the benefit of existing wayleaves, easements and rights of way, whether public or private, light, support, drainage, water and electricity supplies and others’
BUYER IDENTITY CHECK
Please note that prior to acceptance of any offer, Brown&CoJHWalter are required to verify the identity of the buyer to comply with the requirements of the Money Laundering, Terrorist Financing and Transfer of Funds (Information on the Payer) Regulations 2017. Further, when a property is for sale by tender, an ID check must be carried out before a tender can be submitted.
AGENT
James Mulhall 01522 504304 lincolncitycentre@brown-co.com
Current income of circa £40,000 with huge potential to increase
Beautiful rural location just 6 miles from Lincoln
Summary
Key points
- Established equestrian property set in around 19.41 acres
- Four bedroom property with one bed attached flat
- Stabling & Olympic sized manège
- Office space, outbuildings & Yard with car park
- Current income of circa £40,000 with huge potential to increase
- Beautiful rural location just 6 miles from Lincoln
Contact
Brown & Co
Tel: 01522 504318
James Mulhall
james.mulhall@brown-co.com
https://www.brown-co.com
EPC
other/1442961_9689cm4zq55d2783.pdf
Property Documents
Schedule a Tour
Your information
Contact Information
View Listings- Brown & Co
- 01553 778068
Enquire About This Property
Similar Listings
4.76 Acres At Fen Road, Heighington, LN4 1AE
4.76 Acres At Fen Road, Heighington, LN4 1AE, Heighington, LincolnshireLocation 4.76 acres of Grade 3 land Potential for change of use...
Lot 3 – 0.81 Hectare (2.00 Acre) Paddock, Ollerton, NG22 9LB
Lot 3 - 0.81 Hectare (2.00 Acre) Paddock, Ollerton, NG22 9LB, Ollerton, NottinghamshireLocation 0.81 Hectare (2.00 Acre) Paddock For sale by private treaty as...
Lot 2 – 0.81 Hectare (2.00 Acre) Paddock, Ollerton, NG22 9LB
Lot 2 - 0.81 Hectare (2.00 Acre) Paddock, Ollerton, NG22 9LB, Ollerton, NottinghamshireLocation 0.81 Hectare (2.00 Acre) Paddock For sale by private treaty as...
Lot 1 – 0.85 Hectare (2.11 Acre) Paddock, Ollerton, NG22 9LB
Lot 1 - 0.85 Hectare (2.11 Acre) Paddock, Ollerton, NG22 9LB, Ollerton, NottinghamshireLocation 0.85 hectare (2.11 acre) Paddock For sale by private treaty as...
Lot 4 – Manor Farm, Staithe Road, Repps with Bastwick, Great Yarmouth, NR29 5JU
Lot 4 - Manor Farm, Staithe Road, Repps with Bastwick, Great Yarmouth, NR29 5JU, Great Yarmouth, Norfolk, Repps with BastwickLocation LOT 4 – ARABLE LAND 2.73 HECTARES (6.75 ACRES) Productive Grade...
Lot 3 – Manor Farm, Staithe Road, Repps with Bastwick, Great Yarmouth, NR29 5JU
Lot 3 - Manor Farm, Staithe Road, Repps with Bastwick, Great Yarmouth, NR29 5JU, Great Yarmouth, Norfolk, Repps with BastwickLocation LOT 3 – GRAZING EXTENDING TO 32.59 HECTARES (80.53 ACRES) Quality...
The Street, Marshes At Thurlton, Thurlton, Norwich, NR14 6RP
The Street, Marshes At Thurlton, Thurlton, Norwich, NR14 6RP, Norwich, Norfolk, ThurltonLocation Land extends to approximately 10.21 hectares (25.48 acres). The land is...
Ivydene Yard, Armtree Road, Langrick, Boston, PE22 7AN
Ivydene Yard, Armtree Road, Langrick, Boston, PE22 7AN, Boston, Lincolnshire, LangrickLocation Ivydene Yard, Armtree Road, Langrick, Boston PE22 7AG In all approximately...
2.46 Hectare (6.11 Acre) Field At Kirton, Ollerton, NG22 9LB
2.46 Hectare (6.11 Acre) Field At Kirton, Ollerton, NG22 9LB, Ollerton, NottinghamshireLocation For sale by private treaty as a whole or in three...