Land And Cottages Off Worlds End, 54 & 56 Worlds End, Beedon, Newbury, RG20 8SE
Address
Open on Google Maps-
City: Newbury
-
County: Berkshire
-
Area: Beedon
Overview
- Land Residential
Details
Updated on December 14, 2025 at 5:27 pm-
Property Type Land Residential
Description
Location
Renovation/Refurbishment Opportunity
Planning Permission Granted for an Additional Dwelling
Village Location in an Area of Outstanding Natural Beauty
Good Transport Links
A rare opportunity to acquire two attractive cottages as well as a development site for a 4-bedroom detached dwelling in the sought-after rural village of Beedon.
A34 2 miles/ M4 2.5 miles/ Newbury 7 miles/ Oxford 20 miles (distances approximate)
FOR SALE BY PRIVATE TREATY In all about 0.27 acres
DESCRIPTION
Currently occupying the site are a pair of traditional estate cottages constructed of red brick under a tile roof, both of which require full renovation and refurbishment. The cottages are set within a good sized plot which extends to the south (and includes the site of the consent for the additional new dwelling).
The cottages’ accommodation is shown on the floor plans. No 54 is mid-terrace and currently provides 3 bedrooms plus a box room on the first floor with a kitchen, bathroom, sitting room and dining room on the ground floor. No 56 is at the end of the terrace and has 2 bedrooms on the first floor with a kitchen, bathroom, sitting room on the ground floor along with 3 interconnected storage rooms. Both properties are in considerable need of improvement but do offer character throughout, with exposed wooden beams and open fireplaces in well-proportioned reception rooms and bedrooms.
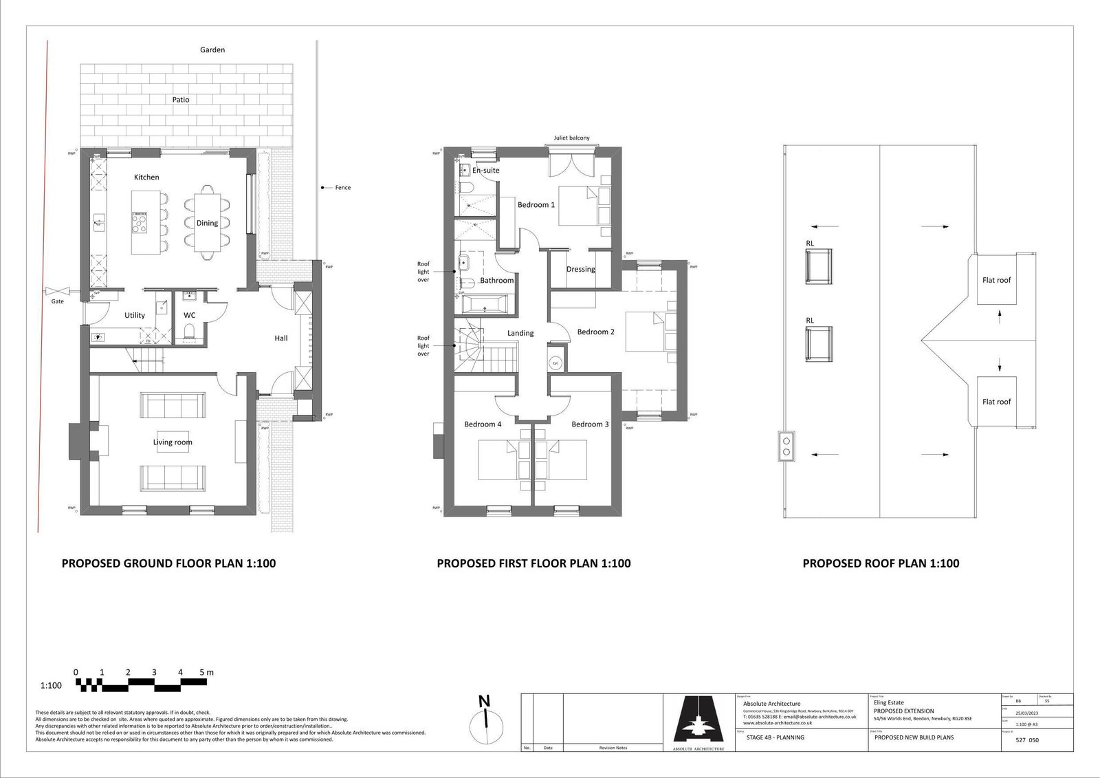
In addition to the two cottages, Planning Permission was granted on 20th May 2025, for the construction of a further detached 4-bedroom dwelling with associated car port. The sale provides potential to restore the two cottages as well as create a new-build family home. Ideal for developers, investors or multi-generational lifestyles.
Location
The property is located in an area of outstanding natural beauty in the hamlet of Worlds End, just south of the small downland village of Beedon which has a 13th century church, pub/restaurant and primary school. Worlds End is within the catchment area for The Downs School, a well regarded secondary school and Sixth Form. The property also has convenient access to Newbury town (7 miles south) which offers a comprehensive range of shopping, leisure and educational facilities as well as being home to Newbury Racecourse.
Newbury railway station provides a direct line to London Paddington within 55 minutes and Central London via the Elizabeth Line (via Reading). There are also excellent road links from the property being just 2 miles from the A34 and M4 motorway intersection providing a convenient commute for those working in Reading, Oxford, and Southampton.
DIRECTIONS
If approaching the property from the M4, take junction 13 (Chieveley) and head north towards Oxford/A34. Prior to merging onto the A34 take the slip road on the left (signposted towards Chieveley, Hermitage, Beedon). At the junction, turn left onto Graces Lane and take the immediate next right onto Oxford Road. Follow Oxford Road for approximately 1.8miles.
Turn right onto Old Bothampstead Road and follow on for roughly 100 yards. The property will be found, set back from the road, on the left.
WHAT3WORDS
The site will be found at what3words: ///protest.crumples.escapades
PLANNING
Planning permission was granted on 20th May 2025, reference number 24/00498/FUL, for a detached dwelling with associated car port. The consent is subject to 18 conditions and details can be found on West Berkshire Council Planning Portal.
The development will provide approximately 178 sq metres (1,915 sq ft) Gross Internal Area. The permission allows the construction of a spacious and striking house as shown on the enclosed floorplans and elevation drawings. The accommodation will briefly comprise a detached house with four bedrooms, one en-suite and a family bathroom on the first floor, and a large, open plan kitchen and dining area with a separate living area and WC on the ground floor.
SERVICES
Purchasers are to make their own investigations regarding the connection of services, although the Vendors believe that mains electricity, drainage and water should be available.
COMMUNITY INFRASTRUCTURE LEVY
CIL will be payable unless a purchaser qualifies for an exemption. For example, If the project is a self-build, then subject to meeting certain criteria it may be possible to obtain an exemption. The CIL reference number is LN00003312, and the amount payable has been assessed as £39,857.94.
LOCAL AUTHORITY
West Berkshire Council www.westberks.gov.uk. The planning permission is available on the planning portal of the website, reference number 24/00498/FUL.
54 Worlds End is Council Tax Band D and 56 Worlds End is Council Tax Band C.
METHOD OF SALE
The site is available for sale by private treaty.
TENURE AND POSSESSION
Freehold with vacant possession on completion.
PLANS
Plans included within the particulars are based upon architect’s drawings or on Ordnance Survey data and are for reference and identification purposes only. All measurements and distances are approximate.
ACKNOWLEDGEMENT
We are grateful to Absolute Architecture for allowing the reproduction of their drawings within the particulars. www.absolute-architecture.co.uk
VAT
Any guide prices quoted or discussed are exclusive of VAT. In the event that a sale of the property, or any part of it, or any right attached to it, becomes a chargeable supply for the purposes of VAT then such tax will be payable in addition.
VIEWINGS
Strictly by appointment with the Agents. Please contact Kevin Prince or Charlotte Bailey to arrange your inspection.
HEALTH AND SAFETY
We ask you to be as vigilant as possible to any potential risks when making your inspection. Please do not park vehicles in any way that could cause an obstruction to neighbouring properties.
FOR FURTHER INFORMATION
Please contact: Kevin Prince at Brown & Co – Oxford Office
Summary
Key points
- Renovation/Refurbishment Opportunity
- Planning Permission Granted for an Additional Dwelling
- Village Location in an Area of Outstanding Natural Beauty
- Good Transport Links
Contact
Brown & Co
Tel: 01235 862888
Kevin Prince
kevin.prince@brown-co.com
https://www.brown-co.com
EPC
other/1467280_sw264593euh3924y.pdf
Property Documents
Schedule a Tour
Your information
Contact Information
View Listings- Brown & Co
- 01553 778068
Enquire About This Property
Similar Listings
Rowan Drive, Shirebrook, Mansfield, NG20 8HE
Rowan Drive, Shirebrook, Mansfield, NG20 8HE, Mansfield, Derbyshire, ShirebrookLocation Description Site for sale. In densely populated residential area. Close to...
Butterpark, Brook Road, Ivybridge, PL21 0AX
Butterpark, Brook Road, Ivybridge, PL21 0AX, Ivybridge, DevonLocation Former local authority care home occupying a rectangular and essentially level...
Land Off Kew Pendra Close, St. Buryan, Penzance, TR19 6DP
Land Off Kew Pendra Close, St. Buryan, Penzance, TR19 6DP, Penzance, Cornwall, St. BuryanLocation In June 2023, the land received a positive Pre-Application response regarding...
Potential Development Land, East Hill/ Dudnance Lane, Pool, Redruth, TR15 3QT
Potential Development Land, East Hill/ Dudnance Lane, Pool, Redruth, TR15 3QT, Redruth, Cornwall, PoolLocation This site is former brownfield land – common in this area,...
Land Off Alexandra Road, Penzance, TR18 4LY
Land Off Alexandra Road, Penzance, TR18 4LY, Penzance, CornwallLocation Land surplus following the development of a neighbouring Lidl foodstore. The...
Station Road, Liskeard Enterprise Centre, Liskeard, PL14 4BT
Station Road, Liskeard Enterprise Centre, Liskeard, PL14 4BT, Liskeard, CornwallLocation Derelict 1970’s industrial premises c1,350 sqm with car parking, sitting in...
Residential Development Opportunity, Branwell Lane, Eastern Green, Penzance, TR18 3DH
Residential Development Opportunity, Branwell Lane, Eastern Green, Penzance, TR18 3DH, Penzance, Eastern GreenLocation The site (outlined in red) comprises a large commercial building, which...
ABBEYFIELD HOUSE, GRAMS ROAD, WALMER, CT14 7PP
ABBEYFIELD HOUSE, GRAMS ROAD, WALMER, CT14 7PP, WALMER, KentLocation Subject to minor boundary amendment along the existing western hedgerow there...
Land South Of Newbold Road, Barlestone, Leicester, CV13 0DT
Land South Of Newbold Road, Barlestone, Leicester, CV13 0DT, Leicester, Leicestershire, BarlestoneLocation The site comprises a greenfield site extending in total to approximately...