- Home
- For Sale
- Commercial
- 130 & 136 Roehampton Vale, London, SW15 3RX
Overview
- Commercial
- Property Type
- 0 - 8276
- sq ft
Description
Location
DESCRIPTION
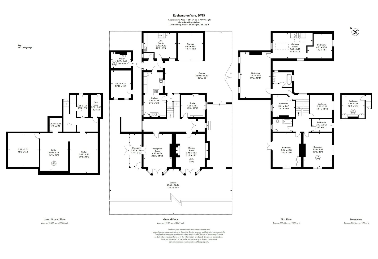
136 Roehampton Vale
The property consists of a substantial detached Edwardian house with outbuildings in total close to 6,000 sq ft, mature gardens, a large driveway and garage. The property includes 8 bedrooms along with a kitchen, dining room and further reception room and studio set over 3 floors with a large cellar. A key feature is the period panelling and 8 original fireplaces. There is a purpose bult artist's studio with 3 large ceiling windows. The upper floors present views to the rear over Richmond Park Golf Club.
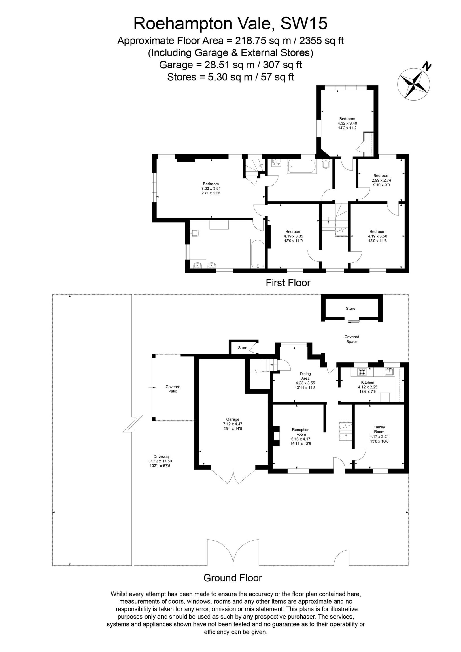
130 Roehampton Vale
The property is a semi detached property in need of restoration and refurbishment with mature gardens. The property measures in excess of 2,300 sq ft and is set over 2 storeys with the ground floor comprising a kitchen, dining area and 2 reception rooms along with a garage. At first floor there are 5 bedrooms and 2 bathrooms.
Both properties are set back from Roehampton Vale on a rectangular plot which measures in total around 0.36 acres.
Both are available individually or as a single lot.
PLANNING AND DEVELOPMENT
The properties present an opportunity for redevelopment or conversion for residential or potential other uses along with refurbishment subject to all
necessary consents.
A scheme to the east of the properties at Pallister Terrace is understood to have been completed in 2003 and delivered a mews terrace of 17 residential units.
Options for the conversion or refurbishment of the properties may also be possible.
The Local Planning Authority is the London Borough of Wandsworth. Both Properties are Council Tax Band G.
EPC Ratings:
130 Roehampton Vale 58 D
136 Roehampton Vale 36 F
The properties are situated in a prominent location on the A3 Roehampton Vale close to the A308 Kingston Vale between Richmond Park and Wimbledon & Putney Commons. The A3 delivers excellent road connectivity to South West London and to the M25. Putney High Street is around 2.5 miles to the north east
whilst Kingston-Upon-Thames town centre is circa 3 miles to the south east. Richmond Park Golf Course is located to the rear with Barnes Station circa 2.5 miles to the north east.
Locally, Robin Hood Gate is a 2 minute walk to the south west which provides access to Richmond Park with an Asda supermarket further north along the A3. Opposite the property is the Kingston University engineering campus along with playing fields. Other properties in immediate area are predominantly residential with a variety of houses and flats.
Summary
Key points
- Contact
Carter Jonas
Tel: 07585 991 350
James Staveley
James.Staveley@carterjonas.co.uk
https://www.carterjonas.co.uk/
Carter Jonas
Tel: 07977 914170
Ollie Hartnell
Ollie.Hartnell@carterjonas.co.uk
https://www.carterjonas.co.uk/
Mortgage Calculator
-
Down Payment
-
Loan Amount
-
Monthly Mortgage Payment
Contact Information
View Listings- Carter Jonas
- 01223346594
Enquire About This Property
Similar Listings
- Industrial
Station Road Garage, Station Road, Adwick Le Street, Doncaster, DN6 7BE
Station Road Garage, Station Road, Adwick Le Street, Doncaster, DN6 7BE, Doncaster, Adwick-Le-Street- 160 sqm
Contact me

- Craven Wildsmith
- View Listings
- Investment
Marvels Lane Clinic, 37 Marvels Lane, Bromley, London, SE12 9PN
Marvels Lane Clinic, 37 Marvels Lane, Bromley, London, SE12 9PN, London, Bromley- 10000 sqft
- Investment
114E Blackstock Road, Islington, London, N4 2DR
114E Blackstock Road, Islington, London, N4 2DR, London, Islington- 500 sqft
- Investment
1 – 3 Marconi Place, Friern Barnet, London, N11 1PE
1 - 3 Marconi Place, Friern Barnet, London, N11 1PE, London, Friern Barnet- 4988 sqft
- Other
Car Park Space, 32 Ewart Grove, Emerald Apartments, Wood Green, London, N22 5NU
Car Park Space, 32 Ewart Grove, Emerald Apartments, Wood Green, London, N22 5NU, London, Wood Green- 135 sqft
- Other
Car Park Space, 32 Ewart Grove, Emerald Apartments, Wood Green, London, N22 5NU
Car Park Space, 32 Ewart Grove, Emerald Apartments, Wood Green, London, N22 5NU, London, Wood Green- 135 sqft
- Investment
Tottenham Lane, 2 Topsfield Parade, London, N8 8PR
Tottenham Lane, 2 Topsfield Parade, London, N8 8PR, London- 820 sqft
Contact me

- Carter Jonas
- View Listings

- Carter Jonas
- View Listings





