- Home
- For Sale
- Industrial
- Units 4 & 5 Newchase House, Annesley Street, Grimsby, DN31 1XB
Overview
- Industrial
- Property Type
Description
Location
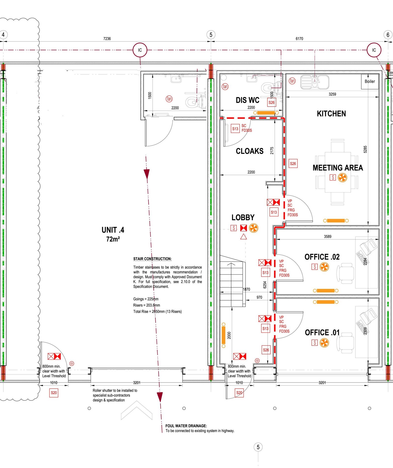
Unit 4 has already been constructed and comprises a self-contained industrial unit forming part of a parade of three similar units.
Unit 4 is of steel portal frame construction with mixed insulated clad/blockwork elevations with a pitched insulated clad roof above. The unit is essentially clear span, constructed to an eaves height of approximately 5m with disabled compliant WC. The property further benefits from an insulated electrically operated roller shutter door to the front elevation together with personnel door, fitted LED lighting, fire alarm and parking/servicing immediately to the front of the unit.
Unit 5 has been fitted out as an office and completed to a good specification. Internally the accommodation comprises a ground floor glazed entrance leading to two offices, kitchen, meeting room and disabled compliant WC, whilst the first floor provides two further offices and a store. The accommodation benefits from gas central heating and suspended ceiling incorporating LED lighting.
Summary
Key points
- Industrial and office premises from 75.57 sq m (813 sq ft) to 163.22 sq m (1,756 sq ft) approx
- Popular and accessible industrial location
- Ideal for owner occupation/investment
- Rare opportunity to purchase modern industrial/office premises
Contact
PPH Commercial
Tel: 01724 294946
Duncan Willey
duncan.willey@pph-commercial.co.uk
PPH Commercial
Tel: 01724 294940
Tom Johnson
tom.johnson@pph-commercial.co.uk
EPC
Mortgage Calculator
-
Down Payment
-
Loan Amount
-
Monthly Mortgage Payment
Contact Information
View ListingsSimilar Listings
- Industrial, Industrial Warehouse
- £600,000 pax & Price u/a
Industrial Warehouse: Sale/Lease, Burnley, BB10 2TT
Unit 2 Widow Hill Court Heasandford Industrial Estate, Burnley, Lancashire, BB10 2TT, Unit 2 Widow Hill Court, Burnley, Lancashire, Burnley, UK, BB10 2TT- 143,051 sq ft
- Industrial
Station Road Garage, Station Road, Adwick Le Street, Doncaster, DN6 7BE
Station Road Garage, Station Road, Adwick Le Street, Doncaster, DN6 7BE, Doncaster, Adwick-Le-Street- 160 sqm
Contact me

- Craven Wildsmith
- View Listings
- Investment
Marvels Lane Clinic, 37 Marvels Lane, Bromley, London, SE12 9PN
Marvels Lane Clinic, 37 Marvels Lane, Bromley, London, SE12 9PN, London, Bromley- 10000 sqft
- Investment
114E Blackstock Road, Islington, London, N4 2DR
114E Blackstock Road, Islington, London, N4 2DR, London, Islington- 500 sqft
- Investment
1 – 3 Marconi Place, Friern Barnet, London, N11 1PE
1 - 3 Marconi Place, Friern Barnet, London, N11 1PE, London, Friern Barnet- 4988 sqft
- Other
Car Park Space, 32 Ewart Grove, Emerald Apartments, Wood Green, London, N22 5NU
Car Park Space, 32 Ewart Grove, Emerald Apartments, Wood Green, London, N22 5NU, London, Wood Green- 135 sqft
- Other
Car Park Space, 32 Ewart Grove, Emerald Apartments, Wood Green, London, N22 5NU
Car Park Space, 32 Ewart Grove, Emerald Apartments, Wood Green, London, N22 5NU, London, Wood Green- 135 sqft
- PPH Commercial






