Search
Overview
- Office
- Property Type
- 2861 - 6659
- sq ft
Description
Location
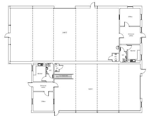
The property consists of two adjoining units constructed with steel portal frames and metal-clad elevations, featuring both pitched and skillion roofs. Each unit benefits from approximately 10% roof light coverage, an electric roller shutter door, an entrance lobby, office space, a kitchenette, and a WC. Unit 1 offers 6 parking spaces, while Unit 2 provides 8 parking spaces. The units can be leased separately or together, offering a self-contained premises.
The units are located on secure estate benefitting from an electrical access gate.
Summary
Key points
- Available from July 2025
- Yard and parking provisions
- Available separately or in conjunction
- Contact
Carter Jonas
Tel: 01223346594
Callum Middleton
Callum.Middleton@carterjonas.co.uk
https://www.carterjonas.co.uk/
Units 1 & 2, Cambridge Road, Deal Business Park, Sawston, CB22 3DG
Contact Information
View Listings- Carter Jonas
- 01223346594
Enquire About This Property
Similar Listings
- Office
- £17,500 per annum
East Laith Gate, 2b Kings Mews, Doncaster, DN1 1JD
East Laith Gate, 2b Kings Mews, Doncaster, DN1 1JD, Doncaster, South Yorkshire- 1435.47 sqft
Contact me

- Craven Wildsmith
- View Listings
- Office
- £8,400 per annum
M & M Business Park, Kirk Sandall, Doncaster, DN3 1HR
M & M Business Park, Kirk Sandall, Doncaster, DN3 1HR, Doncaster, Kirk Sandall- 944 sqft
Contact me

- Craven Wildsmith
- View Listings
- Office
- £6,700 per annum
Stone Cross House, Doncaster Road, Kirk Sandall, Doncaster, DN3 1HR
Stone Cross House, Doncaster Road, Kirk Sandall, Doncaster, DN3 1HR, Doncaster, South Yorkshire, Kirk Sandall- 823 sqft
Contact me

- Craven Wildsmith
- View Listings
- Office
- £1,500 per month
Unit 5, Jetstream Drive, Doncaster, DN9 3QS
Unit 5, Jetstream Drive, Doncaster, DN9 3QS, Doncaster, South Yorkshire- 116.32 sqm
Contact me

- Craven Wildsmith
- View Listings
- Office
- £150 per month
Parking At Unit 5, Jetstream Drive, Doncaster, DN9 3QS
Parking At Unit 5, Jetstream Drive, Doncaster, DN9 3QS, Doncaster, South YorkshireContact me

- Craven Wildsmith
- View Listings
- Office
- £1,000 - £4,000 per month
Frances Street Off East Laith Gate, 1 Kings Mews, Doncaster, DN1 1JB
Frances Street Off East Laith Gate, 1 Kings Mews, Doncaster, DN1 1JB, Doncaster, South Yorkshire- 1026 sqft
Contact me

- Craven Wildsmith
- View Listings
- Office
- £1,750 - £3,700 per month
East Laith Gate, 2c & 2d Kings Mews, Doncaster, DN1 1JD
East Laith Gate, 2c & 2d Kings Mews, Doncaster, DN1 1JD, Doncaster, South Yorkshire- 1800 sqft
Contact me

- Craven Wildsmith
- View Listings
- Office
- £1,150 per month
Offices 3 And 4, Queens Road, Queens Road Design Centre, Town Centre, Doncaster, DN1 2NH
Offices 3 And 4, Queens Road, Queens Road Design Centre, Town Centre, Doncaster, DN1 2NH, Doncaster, Town Centre- 86 sqm
Contact me

- Craven Wildsmith
- View Listings
- Office
- £650 per month
Office 6, Queens Road, Queens Road Design Centre, Town Centre, Doncaster, DN1 2NH
Office 6, Queens Road, Queens Road Design Centre, Town Centre, Doncaster, DN1 2NH, Doncaster, South Yorkshire, Town Centre- 53 sqm
Contact me

- Craven Wildsmith
- View Listings
Contact me

- Carter Jonas
- View Listings

- Carter Jonas
- View Listings
