Search
Overview
- Office
- Property Type
Description
Location
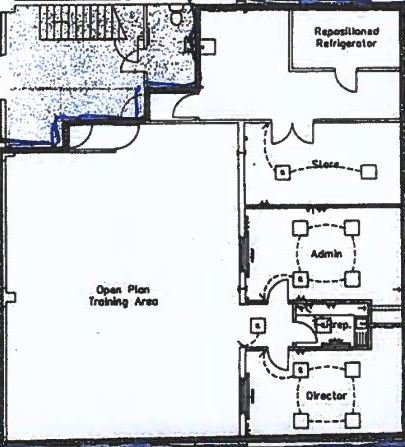
The suite is located on the ground floor of a two storey steel frame building. To the front of the property there is a main office with two small meeting rooms and kitchen.
The suite benefits from having on site car parking to the front and back of the building with 6 spaces being allocated to the suite.
Summary
Key points
- Open plan working area
- Kitchen
- 2 meeting rooms
- Car parking
- Gas central heating
- Suspended ceiling with modern light fittings
Contact
LAMBERT SMITH HAMPTON LIMITED
Tel: 07707 883 872
Amy Bryers
abryers@lsh.co.uk
LAMBERT SMITH HAMPTON LIMITED
Tel: 07872 822 314
Geoff Scott
gscott@lsh.co.uk
EPC
Unit 7 (part) Strathclyde Business Park, 8 Mallard Way, Bellshill, ML4 3NJ
Contact Information
View ListingsSimilar Listings
- Commercial
- £84,338 pa
00745001721009
Kings Terrace London NW1 0LP, 17-21 Kings Terrace London, London, London Borough of Camden, UK, NW1 0PQ- 3373 Sq Ft
Contact me

- Movehut
- View Listings
- Commercial
- £84,338 pa
Ground Floor Office: London Borough of Camden
Kings Terrace London NW1 0LP, 17-21 Kings Terrace London, London, London Borough of Camden, UK, NW1 0PQ- 3373 Sq Ft
Contact me

- Movehut
- View Listings
- Office
- £17,500 per annum
East Laith Gate, 2b Kings Mews, Doncaster, DN1 1JD
East Laith Gate, 2b Kings Mews, Doncaster, DN1 1JD, Doncaster, South Yorkshire- 1435.47 sqft
Contact me

- Craven Wildsmith
- View Listings
- Office
- £8,400 per annum
M & M Business Park, Kirk Sandall, Doncaster, DN3 1HR
M & M Business Park, Kirk Sandall, Doncaster, DN3 1HR, Doncaster, Kirk Sandall- 944 sqft
Contact me

- Craven Wildsmith
- View Listings
- Office
- £6,700 per annum
Stone Cross House, Doncaster Road, Kirk Sandall, Doncaster, DN3 1HR
Stone Cross House, Doncaster Road, Kirk Sandall, Doncaster, DN3 1HR, Doncaster, South Yorkshire, Kirk Sandall- 823 sqft
Contact me

- Craven Wildsmith
- View Listings
- Office
- £1,500 per month
Unit 5, Jetstream Drive, Doncaster, DN9 3QS
Unit 5, Jetstream Drive, Doncaster, DN9 3QS, Doncaster, South Yorkshire- 116.32 sqm
Contact me

- Craven Wildsmith
- View Listings
- Office
- £150 per month
Parking At Unit 5, Jetstream Drive, Doncaster, DN9 3QS
Parking At Unit 5, Jetstream Drive, Doncaster, DN9 3QS, Doncaster, South YorkshireContact me

- Craven Wildsmith
- View Listings
- Office
- £1,000 - £4,000 per month
Frances Street Off East Laith Gate, 1 Kings Mews, Doncaster, DN1 1JB
Frances Street Off East Laith Gate, 1 Kings Mews, Doncaster, DN1 1JB, Doncaster, South Yorkshire- 1026 sqft
Contact me

- Craven Wildsmith
- View Listings
- Office
- £1,750 - £3,700 per month
East Laith Gate, 2c & 2d Kings Mews, Doncaster, DN1 1JD
East Laith Gate, 2c & 2d Kings Mews, Doncaster, DN1 1JD, Doncaster, South Yorkshire- 1800 sqft
Contact me

- Craven Wildsmith
- View Listings
- Lambert Smith Hampton



