Overview
- Office
- Property Type
- 261 - 3571
- sq ft
Description
Location
Ransomes Europark is situated to the south east of Ipswich adjacent to junction 57 of the A14 which provides excellent road communications with Felixstowe, London and the national motorway network. The Port of Felixstowe is within approximately 5.7 miles and Ipswich town centre within about 4 miles. The property is located off Wentworth Road to the rear of the estate.
DESCRIPTION
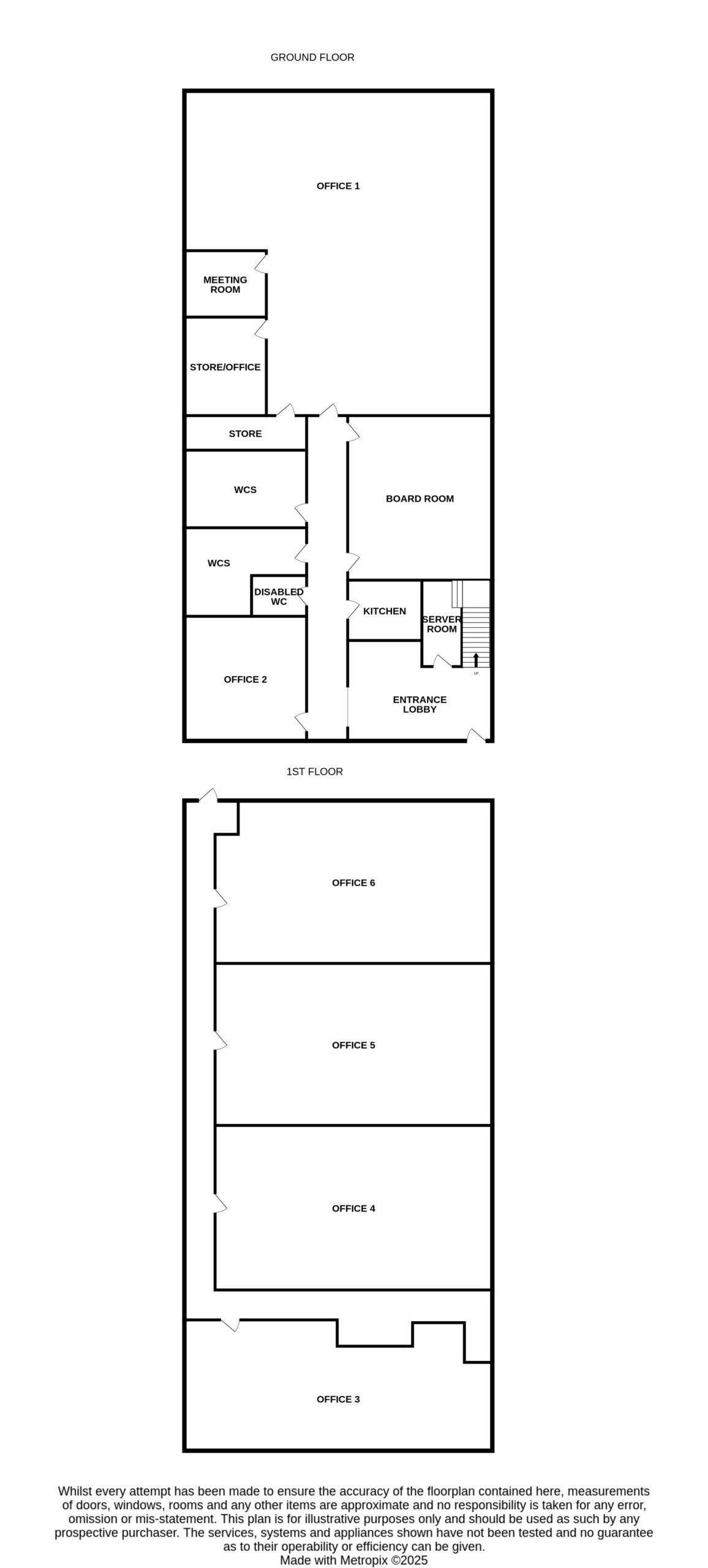
The property comprises a modern, end-of-terrace, two-storey, purpose-built office building with surfaced parking spaces to the front.
The ground floor is arranged to provide a shared entrance/unmanned reception, large office to the rear (now Let), further small office, shared Kitchen and WC facilities. The first floor provides four further private office suites.
Specification includes suspended ceilings with integrated LED lighting and air-conditioning, perimeter trunking for power and data, underfloor heating, access intercoms, and carpeted flooring throughout.
ACCOMMODATION [Approximate Net Internal Floor Areas]
Ground Floor Office 1: LET
Office 2: 261 sq ft [ 24.27 sq m]
Store: 73 sq ft [ 6.76 sq m]
Kitchen: 81 sq ft [ 7.56 sq m]
Server Room: 63 sq ft [ 5.86 sq m]
First Floor
Office 3: 646 sq ft [ 60.02 sq m]
Office 4: 819 sq ft [ 76.09 sq m]
Office 5: 819 sq ft [ 76.09 sq m]
Office 6: 809 sq ft [ 75.19 sq m]
Total Available Net Internal Floor Area: 3,571 sq ft [ 331.84 sq m]
BUSINESS RATES
The property is to be reassessed upon the basis of the proposed split. If the property is let in smaller suites then the rates will be reassessed. All interested parties should make their own enquiries with the local rating authority in order to verify their rates liability.
PLANNING
We understand the premises have permission for Class E office use as defined in the Town and County Planning (Use Classes) Order 2020.
All interested parties should make their own enquiries with the local planning authority regarding their intended use.
SERVICES
It is understood that the property is connected to mains water, electricity and drainage.
We have not tested any of the services and all interested parties should rely upon their own enquiries with the relevant utility companies in connection with the availability and capacity of all those serving the property including IT and telecommunications.
LOCAL AUTHORITY
Ipswich Borough Council, Grafton House, 15-17 Russell Road, Ipswich, Suffolk, IP1 2DE
Tel: 01473 432000
ENERGY PERFORMANCE CERTIFICATES [EPC]
B (27) Rating ref 0658-7888-1202-1863-7077
TERMS
The suites are available upon new effective full repairing and insuring business leases, as per the adjacent floor plan, upon the following rents:
Office 1: LET
Office 2: £3,950 pax
Office 3: £8,500 pax
Office 4: £10,500 pax
Office 5: £10,500 pax
Office 6: £10,500 pax
A service charge is payable i separately to look after the common areas and upkeep of the exterior & structure.
The rent is subject to VAT.
LEGAL COSTS
Each party is to be responsible for their own legal costs.
Summary
Key points
- Located on Ransomes Europark, the towns premier business park
- Easy access to the A14 and town centre
- Modern office suites available with car parking
- Contact
Fenn Wright
Tel: 01473 232701
Hamish Stone
hws@fennwright.co.uk
Contact Information
View Listings- Fenn Wright
- 01473 417714
Enquire About This Property
Similar Listings
- Industrial, Industrial Warehouse
- £600,000 pax & Price u/a
Industrial Warehouse: Sale/Lease, Burnley, BB10 2TT
Unit 2 Widow Hill Court Heasandford Industrial Estate, Burnley, Lancashire, BB10 2TT, Unit 2 Widow Hill Court, Burnley, Lancashire, Burnley, UK, BB10 2TT- 143,051 sq ft
- Commercial
- £84,338 pa
00745001721009
Kings Terrace London NW1 0LP, 17-21 Kings Terrace London, London, London Borough of Camden, UK, NW1 0PQ- 3373 Sq Ft
Contact me

- Movehut
- View Listings
- Commercial
- £84,338 pa
Ground Floor Office: London Borough of Camden
Kings Terrace London NW1 0LP, 17-21 Kings Terrace London, London, London Borough of Camden, UK, NW1 0PQ- 3373 Sq Ft
Contact me

- Movehut
- View Listings
- Office
- £17,500 per annum
East Laith Gate, 2b Kings Mews, Doncaster, DN1 1JD
East Laith Gate, 2b Kings Mews, Doncaster, DN1 1JD, Doncaster, South Yorkshire- 1435.47 sqft
Contact me

- Craven Wildsmith
- View Listings
- Office
- £8,400 per annum
M & M Business Park, Kirk Sandall, Doncaster, DN3 1HR
M & M Business Park, Kirk Sandall, Doncaster, DN3 1HR, Doncaster, Kirk Sandall- 944 sqft
Contact me

- Craven Wildsmith
- View Listings
- Office
- £6,700 per annum
Stone Cross House, Doncaster Road, Kirk Sandall, Doncaster, DN3 1HR
Stone Cross House, Doncaster Road, Kirk Sandall, Doncaster, DN3 1HR, Doncaster, South Yorkshire, Kirk Sandall- 823 sqft
Contact me

- Craven Wildsmith
- View Listings
- Office
- £1,500 per month
Unit 5, Jetstream Drive, Doncaster, DN9 3QS
Unit 5, Jetstream Drive, Doncaster, DN9 3QS, Doncaster, South Yorkshire- 116.32 sqm
Contact me

- Craven Wildsmith
- View Listings
- Office
- £150 per month
Parking At Unit 5, Jetstream Drive, Doncaster, DN9 3QS
Parking At Unit 5, Jetstream Drive, Doncaster, DN9 3QS, Doncaster, South YorkshireContact me

- Craven Wildsmith
- View Listings
- Office
- £1,000 - £4,000 per month
Frances Street Off East Laith Gate, 1 Kings Mews, Doncaster, DN1 1JB
Frances Street Off East Laith Gate, 1 Kings Mews, Doncaster, DN1 1JB, Doncaster, South Yorkshire- 1026 sqft
Contact me

- Craven Wildsmith
- View Listings
Contact me

- Fenn Wright
- View Listings

- Fenn Wright
- View Listings
