- Home
- For Rent
- Industrial
- Trade Yard, Hall Park Road, Manby Road, Immingham, DN40 2LT
Overview
- Industrial
- Property Type
Description
Location
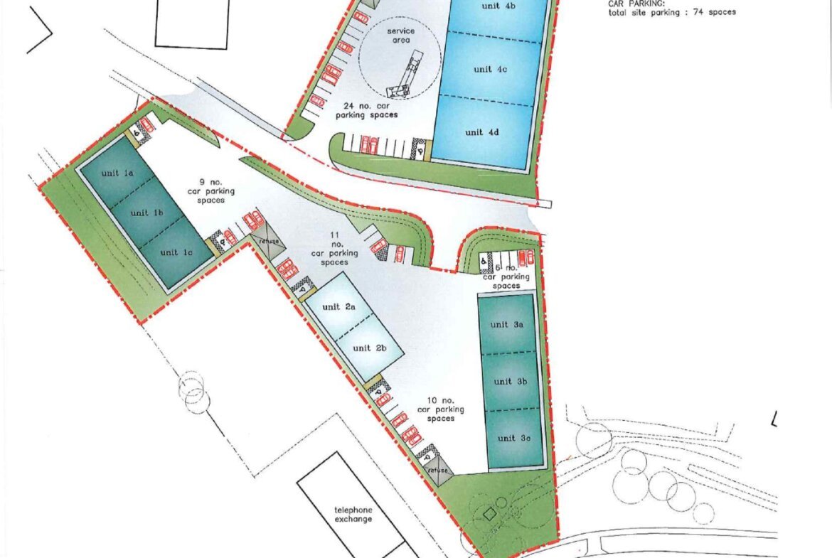
The Trade Yard will comprise of a range of new trade counter/business units situated in a prominent location having frontage to Manby Road (A1173) and also Pelham Road. Construction of Phase 1 has already commenced which can offer single units from 186 sq m (2,000 sq ft) to 557.4 sq m (6,000 sq ft) approx. or double units of 279 sq m (3,000 sq ft) to 372 sq m (4,000 sq ft) approx.
The remaining phases will offer units available from 186 sq m (2,000 sq ft) to 2,322.6 sq m (25,000 sq ft) approx. The units will be completed to a high standard, finished to a shell specification ready to receive a tenant's fit out. The units are also capable of interconnection to provide larger floor areas, if required.
Externally, the units will be set in a pleasant, landscaped environment with dedicated parking and servicing to each unit.
Summary
Key points
- High profile and popular location.
- Good access links to the A180/M180 and Docks.
- Units from 186 sq m (2,000 sq ft) to 2,322 sq m (25,000 sq ft) approx.
- Phase 1 construction commenced July 2025.
- Design and build options now available.
Contact
PPH Commercial
Tel: 01724 294946
Duncan Willey
duncan.willey@pph-commercial.co.uk
PPH Commercial
Tel: 01724 294942
Sam Fallowfield
sam.fallowfield@pph-commercial.co.uk
EPC
Contact Information
View Listings- PPH Commercial
- 01724 294946
Enquire About This Property
Similar Listings
- Commercial
- £84,338 pa
00745001721009
Kings Terrace London NW1 0LP, 17-21 Kings Terrace London, London, London Borough of Camden, UK, NW1 0PQ- 3373 Sq Ft
Contact me

- Movehut
- View Listings
- Commercial
- £84,338 pa
Ground Floor Office: London Borough of Camden
Kings Terrace London NW1 0LP, 17-21 Kings Terrace London, London, London Borough of Camden, UK, NW1 0PQ- 3373 Sq Ft
Contact me

- Movehut
- View Listings
- Office
- £17,500 per annum
East Laith Gate, 2b Kings Mews, Doncaster, DN1 1JD
East Laith Gate, 2b Kings Mews, Doncaster, DN1 1JD, Doncaster, South Yorkshire- 1435.47 sqft
Contact me

- Craven Wildsmith
- View Listings
- Office
- £8,400 per annum
M & M Business Park, Kirk Sandall, Doncaster, DN3 1HR
M & M Business Park, Kirk Sandall, Doncaster, DN3 1HR, Doncaster, Kirk Sandall- 944 sqft
Contact me

- Craven Wildsmith
- View Listings
- Office
- £6,700 per annum
Stone Cross House, Doncaster Road, Kirk Sandall, Doncaster, DN3 1HR
Stone Cross House, Doncaster Road, Kirk Sandall, Doncaster, DN3 1HR, Doncaster, South Yorkshire, Kirk Sandall- 823 sqft
Contact me

- Craven Wildsmith
- View Listings
- Office
- £1,500 per month
Unit 5, Jetstream Drive, Doncaster, DN9 3QS
Unit 5, Jetstream Drive, Doncaster, DN9 3QS, Doncaster, South Yorkshire- 116.32 sqm
Contact me

- Craven Wildsmith
- View Listings
- Office
- £150 per month
Parking At Unit 5, Jetstream Drive, Doncaster, DN9 3QS
Parking At Unit 5, Jetstream Drive, Doncaster, DN9 3QS, Doncaster, South YorkshireContact me

- Craven Wildsmith
- View Listings
- Office
- £1,000 - £4,000 per month
Frances Street Off East Laith Gate, 1 Kings Mews, Doncaster, DN1 1JB
Frances Street Off East Laith Gate, 1 Kings Mews, Doncaster, DN1 1JB, Doncaster, South Yorkshire- 1026 sqft
Contact me

- Craven Wildsmith
- View Listings
- Office
- £1,750 - £3,700 per month
East Laith Gate, 2c & 2d Kings Mews, Doncaster, DN1 1JD
East Laith Gate, 2c & 2d Kings Mews, Doncaster, DN1 1JD, Doncaster, South Yorkshire- 1800 sqft
Contact me

- Craven Wildsmith
- View Listings
Contact me
- PPH Commercial
- View Listings
- PPH Commercial
- View Listings
