Search
- Home
- For Sale
- Land Residential
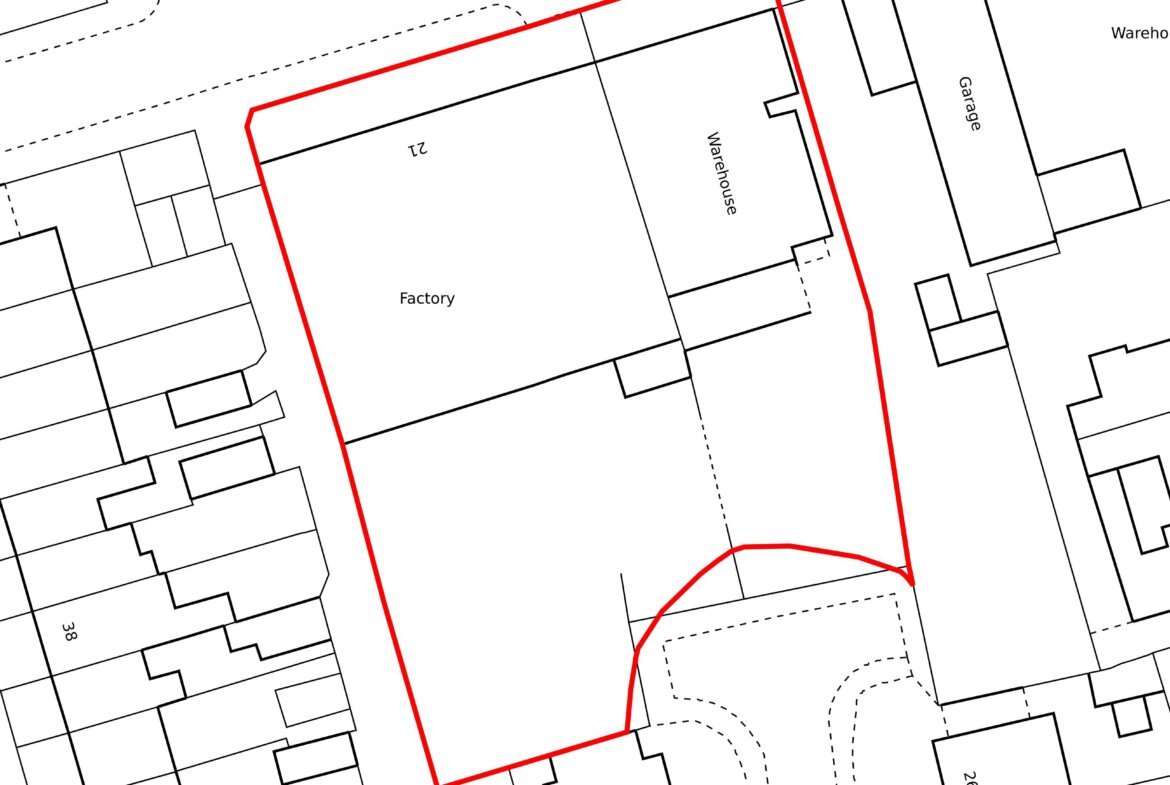
- RESIDENTIAL RE-DEVELOPMENT LAND, 19-21 STANMORE AVENUE, BLACKPOOL, FY4 3LX
Overview
- Land Residential
- Property Type
Description
Location
We are pleased to bring to market this existing site which comprises of part commercial buildings and part hard standing yard space:
- Consent has been granted via a pre-application report for the erection of a residential re-development.
- Pre-application reference: 23/0449
- The site could potentially suit a development of houses, bungalow and/or flats (STPP) - See plans as a guide (only).
- Access considered from both Stanmore Avenue and Hampshire Place.
- All interested parties are welcome to make their own investigations into the development potential of the site.
- All interest and enquiries are invited.
Summary
Key points
- CONSENT HAS BEEN GRANTED VIA A PRE-APPLICATION REPORT FOR THE ERECTION OF A RESIDENTIAL RE-DEVELOPMENT
- WOULD POTENTIALLY SUIT A DEVELOPMENT OF HOUSES, BUNGALOWS OR FLATS (STPP)- SEE PLANS
- ACCESS CONSIDERED FROM BOTH STANMORE AVENUE AND HAMPSHIRE PLACE IS PROPOSED
- EXCELLENT OPPORTUNITY
- ALAN JONES CHARTERED SURVEYORS COMPLETED THE PRE-APPLICATION APPLICATION
Mortgage Calculator
Monthly
-
Down Payment
-
Loan Amount
-
Monthly Mortgage Payment
£
%
%
RESIDENTIAL RE-DEVELOPMENT LAND, 19-21 STANMORE AVENUE, BLACKPOOL, FY4 3LX
Contact Information
View Listings- Duxburys Commercial
- 01253 316 919
Enquire About This Property
Similar Listings
- Industrial, Industrial Warehouse
- £600,000 pax & Price u/a
Industrial Warehouse: Sale/Lease, Burnley, BB10 2TT
Unit 2 Widow Hill Court Heasandford Industrial Estate, Burnley, Lancashire, BB10 2TT, Unit 2 Widow Hill Court, Burnley, Lancashire, Burnley, UK, BB10 2TT- 143,051 sq ft
- Industrial
Station Road Garage, Station Road, Adwick Le Street, Doncaster, DN6 7BE
Station Road Garage, Station Road, Adwick Le Street, Doncaster, DN6 7BE, Doncaster, Adwick-Le-Street- 160 sqm
Contact me

- Craven Wildsmith
- View Listings
- Investment
Marvels Lane Clinic, 37 Marvels Lane, Bromley, London, SE12 9PN
Marvels Lane Clinic, 37 Marvels Lane, Bromley, London, SE12 9PN, London, Bromley- 10000 sqft
- Investment
114E Blackstock Road, Islington, London, N4 2DR
114E Blackstock Road, Islington, London, N4 2DR, London, Islington- 500 sqft
- Investment
1 – 3 Marconi Place, Friern Barnet, London, N11 1PE
1 - 3 Marconi Place, Friern Barnet, London, N11 1PE, London, Friern Barnet- 4988 sqft
- Other
Car Park Space, 32 Ewart Grove, Emerald Apartments, Wood Green, London, N22 5NU
Car Park Space, 32 Ewart Grove, Emerald Apartments, Wood Green, London, N22 5NU, London, Wood Green- 135 sqft
- Other
Car Park Space, 32 Ewart Grove, Emerald Apartments, Wood Green, London, N22 5NU
Car Park Space, 32 Ewart Grove, Emerald Apartments, Wood Green, London, N22 5NU, London, Wood Green- 135 sqft
Contact me

- Duxburys Commercial
- View Listings

- Duxburys Commercial
- View Listings








