Overview
- Land
- Property Type
- 1.32 - 1.32
- sq ft
Description
Location
The site lies to the north of Holbrook, set back from the B1080 between Holbrook and Freston, in a peaceful rural setting surrounded by open arable fields. Holbrook village, just to the south, offers everyday amenities including a convenience store, medical practise, village hall, church and secondary school.
The Shotley Peninsula provides an attractive landscape with riverside walks, cycle routes, marinas and nature reserves, all whilst benefitting from easy access to town amenities and transport connections.
DESCRIPTION
The property comprises the site of former agricultural buildings, as shown edged red on the accompanying site plan, extending to approximately 1.32 acres. Access is gained via a rough-surfaced entrance directly off Ipswich Road. Part of the site, including the main barn conversion, lies within the curtilage of a Grade II Listed building.
The principal structure is a traditional barn complex of mixed construction, adapted and extended over time. The building is predominantly of timber frame construction set on brick plinth walls, with areas of feather-edge boarding and smooth cement render. To the rear stands a secondary storage building of concrete frame construction beneath a pitched corrugated asbestos roof, with fibreboard cladding to the elevations.
The remainder of the site comprises open grassland, offering potential for further development, subject to the necessary planning consents.
PLANNING
The property benefits from full planning permission for the conversion of the main barn into three attractive barn-style dwellings (Ref: DC/23/05908, granted 24 January 2025), together with permission for the replacement of the rear building to create two further barn-style semi-detached dwellings (Ref: DC/25/03351, granted 24 September 2025).
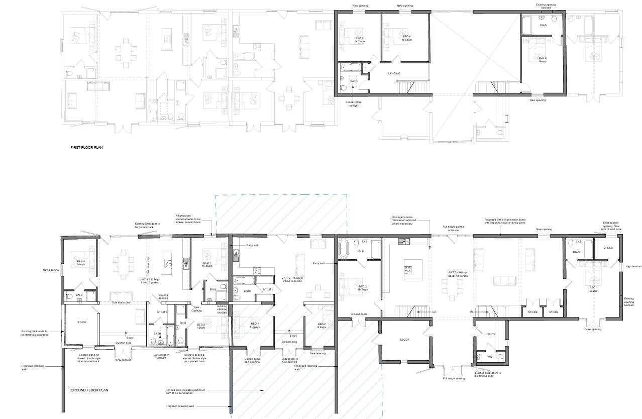
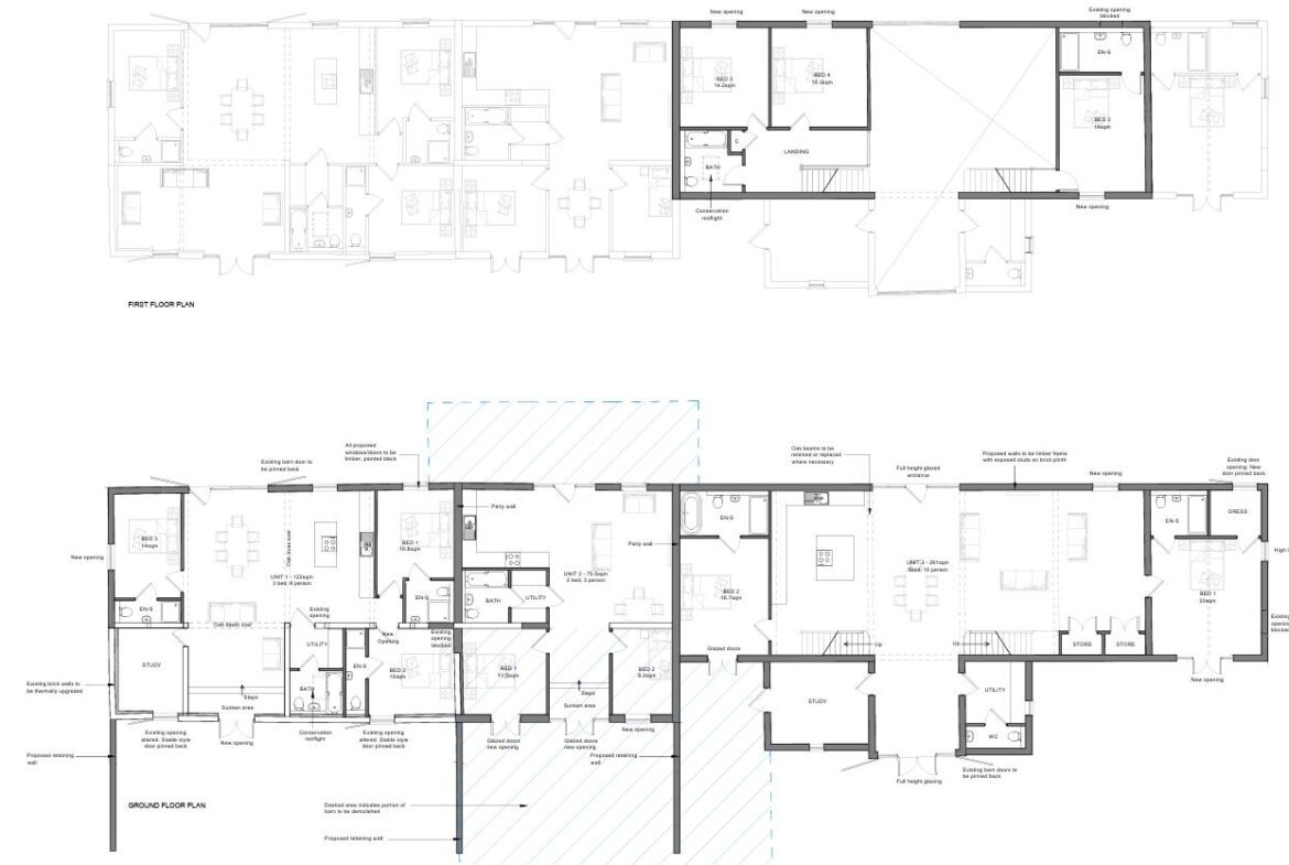
Main Barn Conversion
Unit 1 - End of Terrace: 3 bedrooms = 1,313 sq ft (122.00 sq m)
Unit 2 - Terraced: 2 bedrooms = 813 sq ft (75.50 sq m)
Unit 3 - End of Terrace: 5 bedrooms = 2,809 sq ft (261.00 sq m)
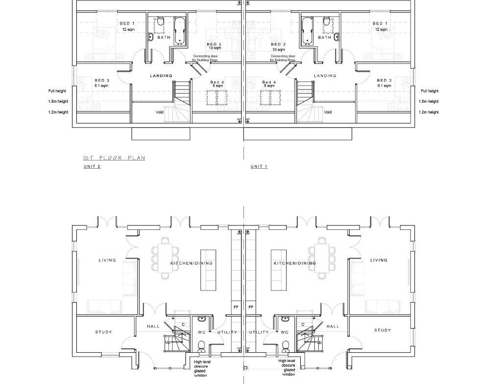
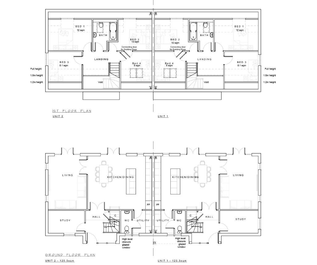
New Builds
Plot 1 - Semi Detached: 4 bedrooms = 1,351 sq ft (125.50 sq m)
Plot 2 - Semi Detached: 4 bedrooms = 1,351 sq ft (125.50 sq m)
The area of land fronting Ipswich Road, situated to the side of the existing cottages, offers potential for additional development, subject to planning permission. While no formal application has been submitted, indicative street scene visuals have been prepared and are available upon request. This area is subject to an overage provision of 15% on any uplift in value, with further details available on request.
SERVICES
It is understood that the site is not presently connected to mains services, including water, electricity, gas, or drainage. Prospective purchasers or developers should make their own enquiries with the relevant utility providers and the local authority to confirm availability and connection options.
INFORMATION PACK
An information pack is available to download from our website: www.fennwright.co.uk/development. The pack includes the planning decision notice, approved drawings, and associated reports and surveys.
IMPORTANT NOTE
The existing buildings are in a state of disrepair and may be unsafe to enter. No inspection or entry should be undertaken without prior authority from Fenn Wright. All parties enter the property entirely at their own risk, and Fenn Wright accepts no liability for personal injury or damage arising from such access.
LOCAL AUTHORITY
Babergh & Mid Suffolk District Council, Endeavour House, 8 Russell Road, Ipswich, IP1 2BX
Telephone: 0300 123 4000
TENURE & TERMS
Offers are invited in the region of £655,000 for the freehold interest, with vacant possession upon completion, and subject to an overage provision relating to the front area of non-consented land immediately adjacent to the existing Grade II Listed cottages.
Under the current planning permission, Babergh District Council has indicated that no Community Infrastructure Levy (CIL) is payable in respect of the main barn conversion. However, the Council has confirmed that CIL will be payable to the sum of £23,428.26 for the two new dwellings, a copy of the notice is available upon request.
A Biodiversity Net Gain (BNG) contribution will be required. A quote has been provided from an offsite provider, further details available upon request.
All interested parties are advised to make their own enquiries with the Local Planning Authority to verify the position regarding both CIL and BNG.
Summary
Key points
- Residential development opportunity - 5 barn style dwellings
- Desirable location between Ipswich & Manningtree
- Attractive rural outlook with good transport links
- Full planning permission granted for the conversion of existing barn into 3 dwellings and 2 new dwellings
- Scope for further development, STP
- Contact
Fenn Wright
Tel: 01473 232701
Hamish Stone
hws@fennwright.co.uk
Mortgage Calculator
-
Down Payment
-
Loan Amount
-
Monthly Mortgage Payment
Contact Information
View Listings- Fenn Wright
- 01473 417714
Enquire About This Property
Similar Listings
- Industrial, Industrial Warehouse
- £600,000 pax & Price u/a
Industrial Warehouse: Sale/Lease, Burnley, BB10 2TT
Unit 2 Widow Hill Court Heasandford Industrial Estate, Burnley, Lancashire, BB10 2TT, Unit 2 Widow Hill Court, Burnley, Lancashire, Burnley, UK, BB10 2TT- 143,051 sq ft
- Industrial
Station Road Garage, Station Road, Adwick Le Street, Doncaster, DN6 7BE
Station Road Garage, Station Road, Adwick Le Street, Doncaster, DN6 7BE, Doncaster, Adwick-Le-Street- 160 sqm
Contact me

- Craven Wildsmith
- View Listings
- Investment
Marvels Lane Clinic, 37 Marvels Lane, Bromley, London, SE12 9PN
Marvels Lane Clinic, 37 Marvels Lane, Bromley, London, SE12 9PN, London, Bromley- 10000 sqft
- Investment
114E Blackstock Road, Islington, London, N4 2DR
114E Blackstock Road, Islington, London, N4 2DR, London, Islington- 500 sqft
- Investment
1 – 3 Marconi Place, Friern Barnet, London, N11 1PE
1 - 3 Marconi Place, Friern Barnet, London, N11 1PE, London, Friern Barnet- 4988 sqft
- Other
Car Park Space, 32 Ewart Grove, Emerald Apartments, Wood Green, London, N22 5NU
Car Park Space, 32 Ewart Grove, Emerald Apartments, Wood Green, London, N22 5NU, London, Wood Green- 135 sqft
- Other
Car Park Space, 32 Ewart Grove, Emerald Apartments, Wood Green, London, N22 5NU
Car Park Space, 32 Ewart Grove, Emerald Apartments, Wood Green, London, N22 5NU, London, Wood Green- 135 sqft
Contact me

- Fenn Wright
- View Listings

- Fenn Wright
- View Listings










