Plot 2 Victoria Gardens, Victoria Street, Wragby, Market Rasen, LN8 5PF
Address
Open on Google Maps-
City: Market Rasen
-
County: Lincolnshire
-
Area: Wragby
Overview
- Residential
Details
Updated on December 14, 2025 at 3:10 pm-
Property Type Residential
-
Property Status Available
Description
Location
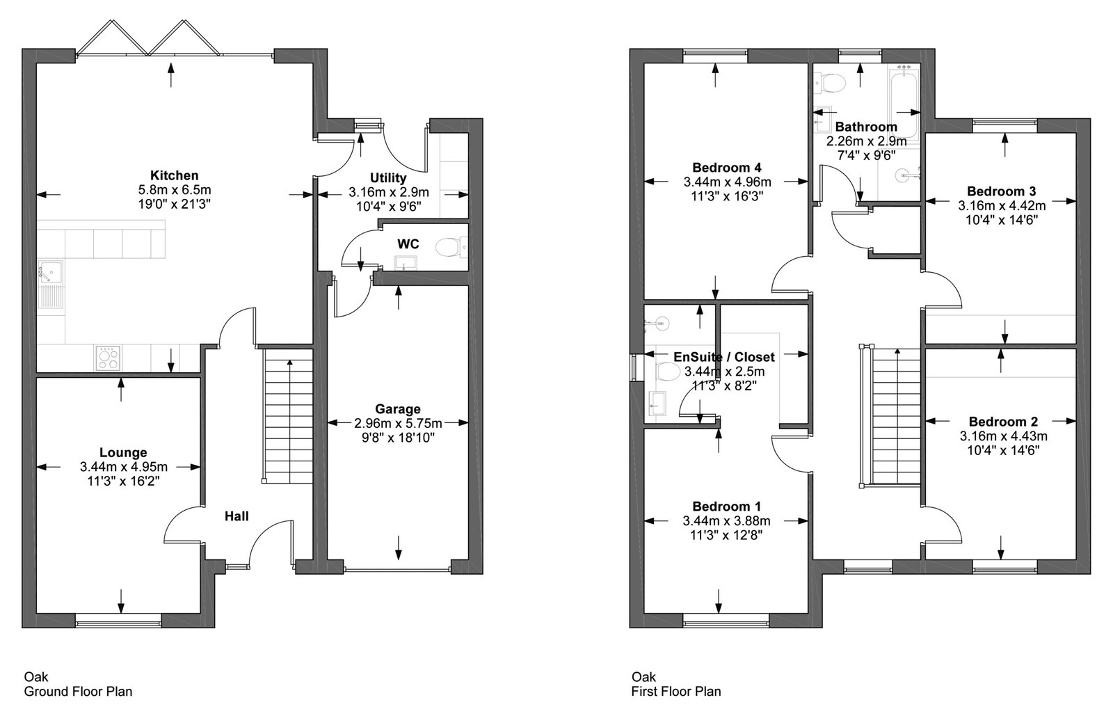
4 bed detached New Build – House type Oak – 1,761 sq ft – Integral garage – Example Internal images for guide only – Early reservations invited
Detailed Description
Victoria Gardens is in the early stages of construction and will comprise 70 properties with a selection of 1, 2,3 & 4 bedroom properties built to a very high standard. The site is located on Victoria Street which is within walking distance of the centre of Wragby.
The Developer
Somersby Homes have been building family homes for the past four decades, originally known as Hugh Bourn Homes, they have designed and built houses across the length and
breadth of Lincolnshire, helping families and first time home owners buy their first property. With decades of experience supporting and working with local people, Somersby Homes understand that when you’re searching for a new home, you also want the perfect location.
A place where people will make friends, enjoy family life and take pride in their neighbourhoods and surroundings whether that’s a home in the quiet countryside or close
to the bustling city centre.
They are here to offer help and support from the very beginning of your property search until long after you’ve moved in. So whether you’re looking for your first home or to move up the property ladder, take a look at our wide range of new properties for sale and get in touch today to find out just how easy it is to find your perfect home with Somersby.
Somersby Homes office
01673 847808
admin@somersbyhomes.com
Location
Wragby is a pleasant Lincolnshire market town close to the Lincolnshire Wolds which is an area of Outstanding Natural Beauty (AONB). The town is also well positioned for commuters to the historic city of Lincoln just 10 miles away with a fast commuter train to London in just 2 hours and the east coast is around 30 miles away with the well known seaside resorts of Skegness, Mablethorpe and Ingoldmells.
Wragby is the perfect place for new families with schooling, shops, leisure facilties including tennis courts and an indoor swimming pool, Churches, public houses, Co-op and a
thriving community which organises some fantastic events such as food festivals, baking competitions, Wragby Show & Country Fayre , Young Famers club and the Scouts so you can really get into the local spirit.
A little further afield lie a collection of beautiful nature reserves, woodland walks and country parks which offer great walking and cycling opportunities. Nearby towns of
Horncastle & Market Rasen offers further schooling and amenities.
The postcode for the the site is LN8 5PF, but for the exact location please use the following:
https://what3words.com/forks.innovate.guitars
Accommodation
> Under floor heating
> Air Source heat pump
> Full Fibre broadband
> Bosch Oven
> Bosch Hob
> Bosch Dishwasher
> 60/40 split fridge freezer
> Wren Kitchen with choice of worktops, colour and style of units and handles
> LVT Amtico flooring in Kitchen, Entrance Hall & WC
> Choice of carpet elsewhere
> Loft ladder
> USB sockets
> Bathroom wall half tiled with ceramic floor and wall
> Electric demister bathroom mirror
> Downlights in Kitchen & Bathroom
> Up & Down Lighters front and back
> PIR garage light
> Electric Roller shutter doors with sensor
> Outside tap to rear
* Various upgrades are available on each house type so please contact the selling agent to discuss this in more detail. We shall also recieve further information and imagery as the site progresses so this brochure will be updated.
Viewing
Viewing
Viewings are strictly by appointment with the selling agent on 01522 504304 or via Somersby Homes on 01673 847808.
Agent
Brown & Co
5 Oakwood Road
Lincoln, LN6 3LH
01522 504304
lincolncitycentre@brown-co.com
Other
BUYER IDENTITY CHECK
Please note that prior to acceptance of any offer, Brown&coJHWalter are required to verify the identity of the buyer to comply with the requirements of the Money Laundering, Terrorist Financing and Transfer of Funds (Information on the Payer) Regulations 2017. Further, when a property is for sale by tender, an ID check must be carried out before a tender can be submitted. We are most grateful for your assistance with this.
Summary
Key points
- 4 bed detached New Build
- House type Oak
- 1,761 sq ft
- Integral garage
- Example Internal images for guide only
- Early reservations invited
Contact
Brown & Co
Tel: 01522 504318
James Mulhall
james.mulhall@brown-co.com
https://www.brown-co.com
EPC
Property Documents
Schedule a Tour
Your information
Contact Information
View Listings- Brown & Co
- 01553 778068
Enquire About This Property
Similar Listings
Plot 5 – Manor Farm, Raveley Road, Great Raveley, Huntingdon, PE28 2QX
Plot 5 - Manor Farm, Raveley Road, Great Raveley, Huntingdon, PE28 2QX, Huntingdon, Cambridgeshire, Great RaveleyLocation An exciting opportunity to acquire a spacious, detached 4 bedroom home,...
Bramley Cottage, Appletree, Daventry, NN11 6UG
Bramley Cottage, Appletree, Daventry, NN11 6UG, Daventry, NorthamptonshireLocation Bramley Cottage is a 1 bedroom ground floor flat within a...
Plot 4 – Manor Farm, Raveley Road, Great Raveley, Huntingdon, PE28 2QX
Plot 4 - Manor Farm, Raveley Road, Great Raveley, Huntingdon, PE28 2QX, Huntingdon, Cambridgeshire, Great RaveleyLocation An exciting opportunity to acquire a spacious, detached 4 bedroom home,...
Plot 3 – Manor Farm, Raveley Road, Great Raveley, Huntingdon, PE28 2QX
Plot 3 - Manor Farm, Raveley Road, Great Raveley, Huntingdon, PE28 2QX, Huntingdon, Cambridgeshire, Great RaveleyLocation An exciting opportunity to acquire a spacious, detached 4 bedroom home,...
Plot 2, Kimbolton Road, Blackfriars Court, Stow Longa, Huntingdon, PE28 0TR
Plot 2, Kimbolton Road, Blackfriars Court, Stow Longa, Huntingdon, PE28 0TR, Huntingdon, Cambridgeshire, Stow LongaLocation A newly built four double bedroom detached home of high specification,...
Marygold House, Main Street, Hackthorn, Lincoln, LN2 3PF
Marygold House, Main Street, Hackthorn, Lincoln, LN2 3PF, Lincoln, Lincolnshire, HackthornLocation Detailed Description Marygold House occupies an enviable elevated 1/3 of an...
Lot 1 – Manor Farm, Staithe Road, Repps With Bastwick, Great Yarmouth, NR29 5JU
Lot 1 - Manor Farm, Staithe Road, Repps With Bastwick, Great Yarmouth, NR29 5JU, Great Yarmouth, Norfolk, Repps with BastwickLocation Extensive range of Farm Buildings Grade 1 arable land 12.88 hectares...
36 Queens Close, Harston, Cambridge, CB22 7QL
36 Queens Close, Harston, Cambridge, CB22 7QL, Cambridge, Cambridgeshire, HarstonLocation A well-presented three-bedroom semi-detached home, occupying an enviable position with a...
Fen Lane, Sawtry, Huntingdon, PE28 5TG
Fen Lane, Sawtry, Huntingdon, PE28 5TG, Huntingdon, Cambridgeshire, SawtryLocation A pair of contemporary three-bedroom semi-detached homes offering approximately 978 sq....