Search
Overview
- Office
- Property Type
Description
Location
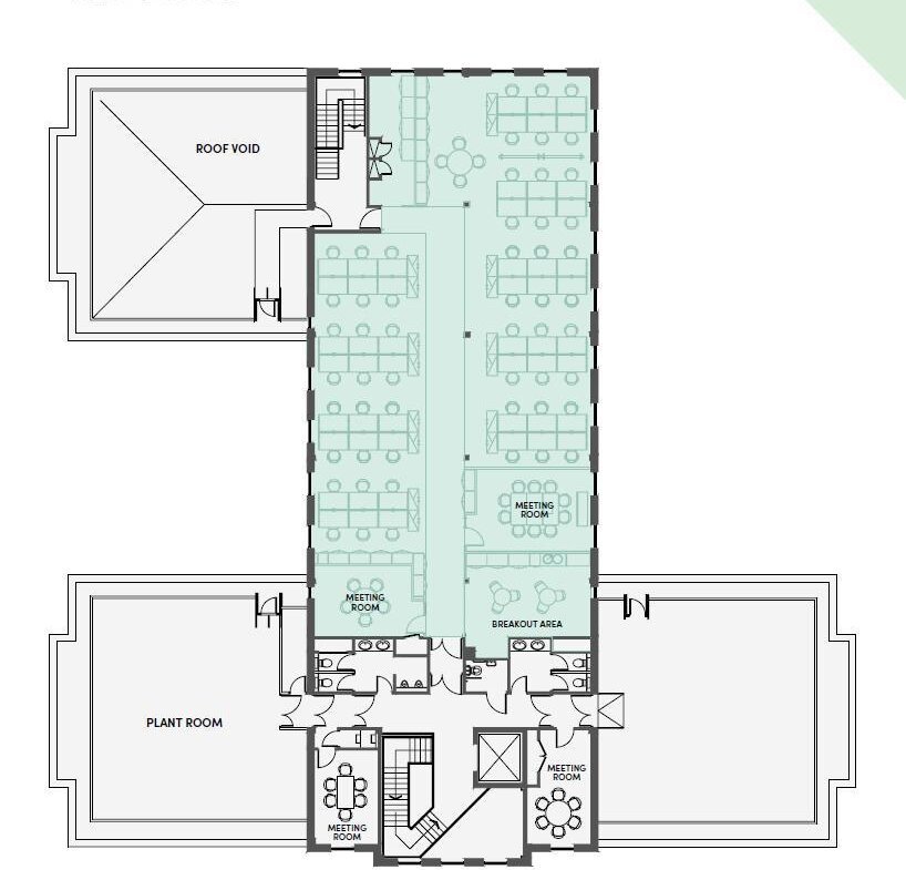
Pease House forms part of a modern office development situated in 19 acres of parkland at Hitchin Priory. In addition to the attractive surrounds the full height atrium and manned reception provide the perfect first impression on arrival.
The office suite itself is situated on the second floor and provides high quality open plan space with a fitted kitchenette and two self contained meeting rooms. The available space has a good existing specification and will benefit from new LED lighting throughout
Summary
Key points
- Full height atrium
- Manned reception
- Suspended ceilings with new LED lighting
- High quality kitchenette with fitted appliances
- Two meeting rooms
- Generous parking provision at a ratio of 1:300 sq ft
- Immediate proximity to Hitchin town centre offering excellent amenity
- Well situated for Hitchin Railway Station and the A1(M)
Contact
LAMBERT SMITH HAMPTON LIMITED
Tel: 07938 737 487
Tom Pugh
tpugh@lsh.co.uk
LAMBERT SMITH HAMPTON LIMITED
Tel: 07708 479451
Louis Day
LDay@lsh.co.uk
EPC
Pease House, Tilehouse Street, The Priory, Hitchin, SG5 2DW
Contact Information
View ListingsSimilar Listings
- Office
- £17,500 per annum
East Laith Gate, 2b Kings Mews, Doncaster, DN1 1JD
East Laith Gate, 2b Kings Mews, Doncaster, DN1 1JD, Doncaster, South Yorkshire- 1435.47 sqft
Contact me

- Craven Wildsmith
- View Listings
- Office
- £8,400 per annum
M & M Business Park, Kirk Sandall, Doncaster, DN3 1HR
M & M Business Park, Kirk Sandall, Doncaster, DN3 1HR, Doncaster, Kirk Sandall- 944 sqft
Contact me

- Craven Wildsmith
- View Listings
- Office
- £6,700 per annum
Stone Cross House, Doncaster Road, Kirk Sandall, Doncaster, DN3 1HR
Stone Cross House, Doncaster Road, Kirk Sandall, Doncaster, DN3 1HR, Doncaster, South Yorkshire, Kirk Sandall- 823 sqft
Contact me

- Craven Wildsmith
- View Listings
- Office
- £1,500 per month
Unit 5, Jetstream Drive, Doncaster, DN9 3QS
Unit 5, Jetstream Drive, Doncaster, DN9 3QS, Doncaster, South Yorkshire- 116.32 sqm
Contact me

- Craven Wildsmith
- View Listings
- Office
- £150 per month
Parking At Unit 5, Jetstream Drive, Doncaster, DN9 3QS
Parking At Unit 5, Jetstream Drive, Doncaster, DN9 3QS, Doncaster, South YorkshireContact me

- Craven Wildsmith
- View Listings
- Office
- £1,000 - £4,000 per month
Frances Street Off East Laith Gate, 1 Kings Mews, Doncaster, DN1 1JB
Frances Street Off East Laith Gate, 1 Kings Mews, Doncaster, DN1 1JB, Doncaster, South Yorkshire- 1026 sqft
Contact me

- Craven Wildsmith
- View Listings
- Office
- £1,750 - £3,700 per month
East Laith Gate, 2c & 2d Kings Mews, Doncaster, DN1 1JD
East Laith Gate, 2c & 2d Kings Mews, Doncaster, DN1 1JD, Doncaster, South Yorkshire- 1800 sqft
Contact me

- Craven Wildsmith
- View Listings
- Office
- £1,150 per month
Offices 3 And 4, Queens Road, Queens Road Design Centre, Town Centre, Doncaster, DN1 2NH
Offices 3 And 4, Queens Road, Queens Road Design Centre, Town Centre, Doncaster, DN1 2NH, Doncaster, Town Centre- 86 sqm
Contact me

- Craven Wildsmith
- View Listings
- Office
- £650 per month
Office 6, Queens Road, Queens Road Design Centre, Town Centre, Doncaster, DN1 2NH
Office 6, Queens Road, Queens Road Design Centre, Town Centre, Doncaster, DN1 2NH, Doncaster, South Yorkshire, Town Centre- 53 sqm
Contact me

- Craven Wildsmith
- View Listings
- Kalmers
Contact me

- Kalmers
- View Listings

- Kalmers
- View Listings








