Search
Overview
- Office
- Property Type
Description
Location
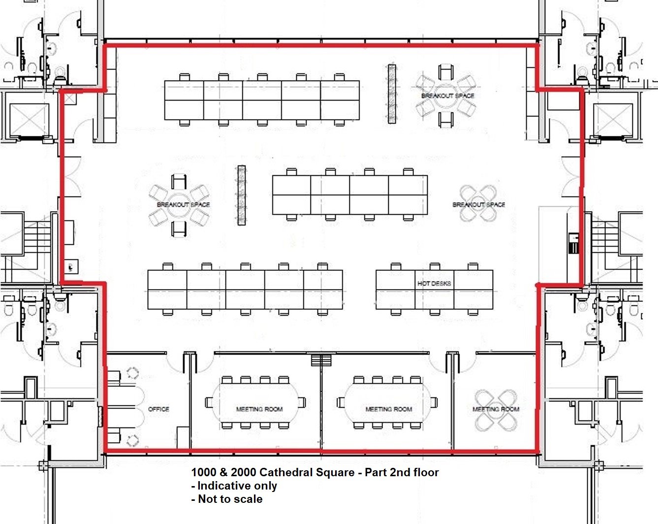
A prominent, landmark office campus of 115,000 sq ft which benefits from a fabulous double height reception and business lounge with a stunning cafe facility, impressive entrance and hard & soft landscaping. There are 20 electric bikes for use by the tenants and runs a shuttle bus service to the train station & town centre. The available suite comprises a full fitted part 2nd floor suite totalling 3,444 sq ft with use of 11 car parking spaces.
Summary
Key points
- Fully fitted suite in HQ environment
- Out of town with shuttle bus & close to A3
- Impressive sense of arrival & business lounge
- Grade A offices with onsite cafe
- Fitted space - 2 meeting rooms, an office & kitchenette
- Showers & changing rooms in basement
- Onsite building management & 24/7 security
Contact
LAMBERT SMITH HAMPTON LIMITED
Tel: 01483 446711
Tim Shaw
tgshaw@lsh.co.uk
LAMBERT SMITH HAMPTON LIMITED
Tel: 07860 506 885
Elliot Hope
EHope@lsh.co.uk
EPC
Part 2nd Floor 1000 & 2000 Cathedral Square, Cathedral Hill, Guildford, GU2 7YL
Contact Information
View ListingsEnquire About This Property
Similar Listings
- Industrial
- £26,500 per annum exclusive
Unit 2, Bermuda Road Ransomes Europark, Ipswich, IP3 9RU
Unit 2, Bermuda Road Ransomes Europark, Ipswich, IP3 9RU, Ipswich, Suffolk- 4839 - 4839 sq ft
Contact me

- Fenn Wright
- View Listings
- Industrial
- £65,325 per annum exclusive
Unit C, Eastways, Eastways Industrial Estate, Witham, CM8 3YQ
Unit C, Eastways, Eastways Industrial Estate, Witham, CM8 3YQ, Witham, Essex, Eastways Industrial Estate- 5226 - 5226 sq ft
Contact me

- Fenn Wright
- View Listings
- Industrial
- £18,750 per annum exclusive
Units F & G, Ipswich Road, Gun Hill Trading Estate, Dedham, Colchester, CO7 6HR
Units F & G, Ipswich Road, Gun Hill Trading Estate, Dedham, Colchester, CO7 6HR, Colchester, Essex, Dedham- 1825 - 1825 sq ft
Contact me

- Fenn Wright
- View Listings
- Industrial
- £24,000 per annum exclusive
Unit 5 Radford Business Centre, Radford Crescent, Billericay, CM12 0DP
Unit 5 Radford Business Centre, Radford Crescent, Billericay, CM12 0DP, Billericay, Essex- 1126 - 1126 sq ft
Contact me

- Fenn Wright
- View Listings
- Office
- £15,000 per annum exclusive
9a Gamma Terrace, West Road, Ipswich, IP3 9FF
9a Gamma Terrace, West Road, Ipswich, IP3 9FF, Ipswich, Suffolk- 1079 - 1079 sq ft
Contact me

- Fenn Wright
- View Listings
- Office
- £15,000 per annum exclusive
Unit 5 Summit Business Park, Langer Road, Felixstowe, IP11 2JB
Unit 5 Summit Business Park, Langer Road, Felixstowe, IP11 2JB, Felixstowe, Suffolk- 1084 - 1084 sq ft
Contact me

- Fenn Wright
- View Listings
- Industrial
- £120,000 per annum exclusive
Step On Safety Premises, Factory Lane, Brantham, CO11 1NH
Step On Safety Premises, Factory Lane, Brantham, CO11 1NH, Brantham, Suffolk- 22837 - 22837 sq ft
Contact me

- Fenn Wright
- View Listings
- Industrial
- £47,250 per annum exclusive
21-22 Morses Lane Industrial Estate, Morses Lane, Brightlingsea, CO7 0SF
21-22 Morses Lane Industrial Estate, Morses Lane, Brightlingsea, CO7 0SF, Brightlingsea, Essex- 7266 - 7266 sq ft
Contact me

- Fenn Wright
- View Listings
- Industrial
- £38,250 per annum exclusive
12 Edward Park, Grange Way, Colchester, CO2 8FZ
12 Edward Park, Grange Way, Colchester, CO2 8FZ, Colchester, Essex- 3641 - 3641 sq ft
Contact me

- Fenn Wright
- View Listings





