Overview
- Office
- Property Type
Description
Location
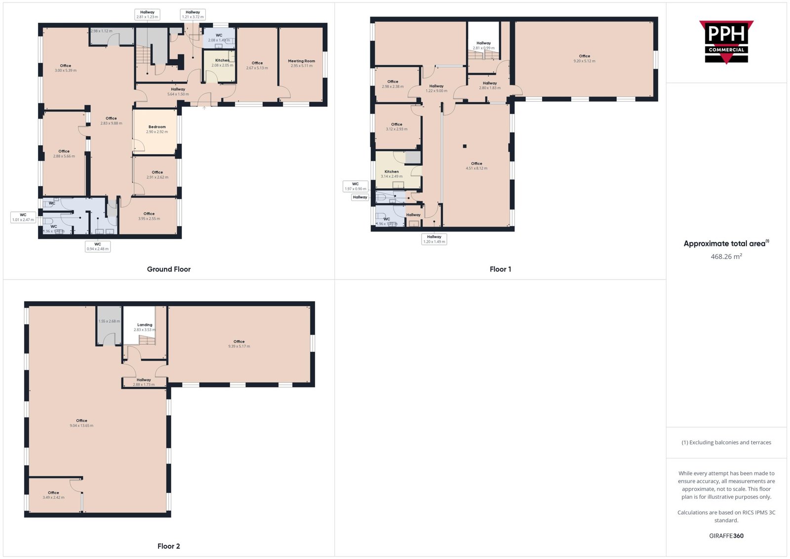
The property comprises a detached three storey office premises of masonry construction surmounted by a flat roof to the front portion of the building and a pitched tiled roof to the rear.
The accommodation provides a variety of office space spread across all three floors providing a mix of open plan and private offices which benefit from double glazed uPVC windows, electric wall heaters, mixed LED and florescent lighting, carpeted floor coverings and single phase electricity. The ground and first floors also offer independent kitchen and WC facilities.
Externally there is designated parking to the front elevation together with a rear car park which provides generous parking for the office accommodation.The premises are available as a whole or can be leased on a floor by floor basis.
Summary
Key points
- Self-contained premises of 437.34 sq m (4,708 sq ft) approx.
- Popular location, close to Immingham Dock.
- Available freehold or upon a new lease(s).
- Available on a floor by floor basis or as a whole.
- Generous parking
Contact
PPH Commercial
Tel: 01724 294942
Sam Fallowfield
sam.fallowfield@pph-commercial.co.uk
PPH Commercial
Tel: 01724 294940
Tom Johnson
tom.johnson@pph-commercial.co.uk
EPC
Contact Information
View ListingsSimilar Listings
- Commercial
- £84,338 pa
00745001721009
Kings Terrace London NW1 0LP, 17-21 Kings Terrace London, London, London Borough of Camden, UK, NW1 0PQ- 3373 Sq Ft
Contact me

- Movehut
- View Listings
- Commercial
- £84,338 pa
Ground Floor Office: London Borough of Camden
Kings Terrace London NW1 0LP, 17-21 Kings Terrace London, London, London Borough of Camden, UK, NW1 0PQ- 3373 Sq Ft
Contact me

- Movehut
- View Listings
- Office
- £17,500 per annum
East Laith Gate, 2b Kings Mews, Doncaster, DN1 1JD
East Laith Gate, 2b Kings Mews, Doncaster, DN1 1JD, Doncaster, South Yorkshire- 1435.47 sqft
Contact me

- Craven Wildsmith
- View Listings
- Office
- £8,400 per annum
M & M Business Park, Kirk Sandall, Doncaster, DN3 1HR
M & M Business Park, Kirk Sandall, Doncaster, DN3 1HR, Doncaster, Kirk Sandall- 944 sqft
Contact me

- Craven Wildsmith
- View Listings
- Office
- £6,700 per annum
Stone Cross House, Doncaster Road, Kirk Sandall, Doncaster, DN3 1HR
Stone Cross House, Doncaster Road, Kirk Sandall, Doncaster, DN3 1HR, Doncaster, South Yorkshire, Kirk Sandall- 823 sqft
Contact me

- Craven Wildsmith
- View Listings
- Office
- £1,500 per month
Unit 5, Jetstream Drive, Doncaster, DN9 3QS
Unit 5, Jetstream Drive, Doncaster, DN9 3QS, Doncaster, South Yorkshire- 116.32 sqm
Contact me

- Craven Wildsmith
- View Listings
- Office
- £150 per month
Parking At Unit 5, Jetstream Drive, Doncaster, DN9 3QS
Parking At Unit 5, Jetstream Drive, Doncaster, DN9 3QS, Doncaster, South YorkshireContact me

- Craven Wildsmith
- View Listings
- Office
- £1,000 - £4,000 per month
Frances Street Off East Laith Gate, 1 Kings Mews, Doncaster, DN1 1JB
Frances Street Off East Laith Gate, 1 Kings Mews, Doncaster, DN1 1JB, Doncaster, South Yorkshire- 1026 sqft
Contact me

- Craven Wildsmith
- View Listings
- Office
- £1,750 - £3,700 per month
East Laith Gate, 2c & 2d Kings Mews, Doncaster, DN1 1JD
East Laith Gate, 2c & 2d Kings Mews, Doncaster, DN1 1JD, Doncaster, South Yorkshire- 1800 sqft
Contact me

- Craven Wildsmith
- View Listings
- PPH Commercial














