- Home
- For Rent
- Industrial
- New Industrial Development, Warren Road/Bessemer Way, Scunthorpe, DN15 8XE
Overview
- Industrial
- Property Type
Description
Location
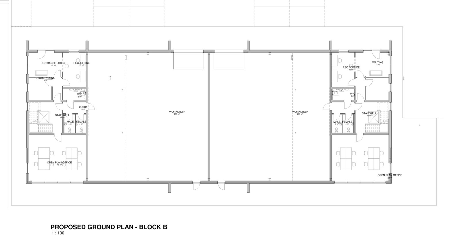
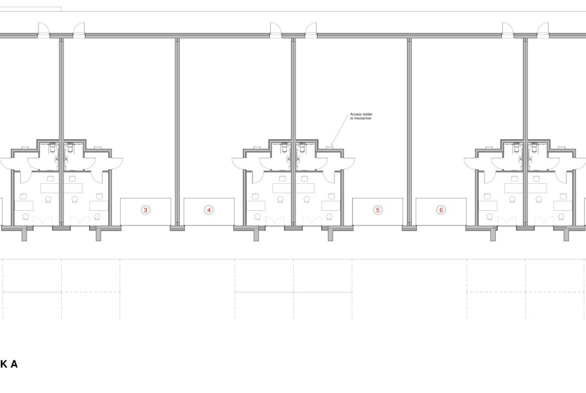
The development is to comprise two separate phases Block A and Block B. Block A will comprise a total of 1,238 sq m (13,238 sq ft) approx. which is capable of providing 8 No. self contained industrial units ranging in size from 154 sq m (1,658 sq ft) approx. upwards however larger floor areas can be created by inter-connection, if required. Block B will comprise of a development of 906 sq m (9,752 sq ft) approx. in total which is capable of being divided to provide 2 No. self-contained units of 453 sq m (4,876 sq ft) approx. each, if required.
The intention is to create a development which will have access from Warren Road on the corner of Bessemer Way so will benefit from a good degree of visibility. The two Blocks will be constructed around a central servicing/car parking area. The site will be fully fenced and gated with attractive landscaped boundaries.
The units themselves will be constructed to a 'shell' specification being of steel portal frame construction and will be completed to a basic standard incorporating glazed personnel doors and goods access leading onto the central service yard.
Summary
Key points
- New industrial units from 154 sq m (1,658 sq ft) to 1,238 sq m (13,238 sq ft) approx.
- Excellent specification, capable of incorporating a mezzanine floor.
- Various floor areas can be provided by inter-connection.
- Popular location with good road access.
- Available on new leases.
Contact
PPH Commercial
Tel: 01724 294946
Duncan Willey
duncan.willey@pph-commercial.co.uk
Contact Information
View Listings- PPH Commercial
- 01724 294946
Enquire About This Property
Similar Listings
- Commercial
- £84,338 pa
00745001721009
Kings Terrace London NW1 0LP, 17-21 Kings Terrace London, London, London Borough of Camden, UK, NW1 0PQ- 3373 Sq Ft
Contact me

- Movehut
- View Listings
- Commercial
- £84,338 pa
Ground Floor Office: London Borough of Camden
Kings Terrace London NW1 0LP, 17-21 Kings Terrace London, London, London Borough of Camden, UK, NW1 0PQ- 3373 Sq Ft
Contact me

- Movehut
- View Listings
- Office
- £17,500 per annum
East Laith Gate, 2b Kings Mews, Doncaster, DN1 1JD
East Laith Gate, 2b Kings Mews, Doncaster, DN1 1JD, Doncaster, South Yorkshire- 1435.47 sqft
Contact me

- Craven Wildsmith
- View Listings
- Office
- £8,400 per annum
M & M Business Park, Kirk Sandall, Doncaster, DN3 1HR
M & M Business Park, Kirk Sandall, Doncaster, DN3 1HR, Doncaster, Kirk Sandall- 944 sqft
Contact me

- Craven Wildsmith
- View Listings
- Office
- £6,700 per annum
Stone Cross House, Doncaster Road, Kirk Sandall, Doncaster, DN3 1HR
Stone Cross House, Doncaster Road, Kirk Sandall, Doncaster, DN3 1HR, Doncaster, South Yorkshire, Kirk Sandall- 823 sqft
Contact me

- Craven Wildsmith
- View Listings
- Office
- £1,500 per month
Unit 5, Jetstream Drive, Doncaster, DN9 3QS
Unit 5, Jetstream Drive, Doncaster, DN9 3QS, Doncaster, South Yorkshire- 116.32 sqm
Contact me

- Craven Wildsmith
- View Listings
- Office
- £150 per month
Parking At Unit 5, Jetstream Drive, Doncaster, DN9 3QS
Parking At Unit 5, Jetstream Drive, Doncaster, DN9 3QS, Doncaster, South YorkshireContact me

- Craven Wildsmith
- View Listings
- Office
- £1,000 - £4,000 per month
Frances Street Off East Laith Gate, 1 Kings Mews, Doncaster, DN1 1JB
Frances Street Off East Laith Gate, 1 Kings Mews, Doncaster, DN1 1JB, Doncaster, South Yorkshire- 1026 sqft
Contact me

- Craven Wildsmith
- View Listings
- Office
- £1,750 - £3,700 per month
East Laith Gate, 2c & 2d Kings Mews, Doncaster, DN1 1JD
East Laith Gate, 2c & 2d Kings Mews, Doncaster, DN1 1JD, Doncaster, South Yorkshire- 1800 sqft
Contact me

- Craven Wildsmith
- View Listings
Contact me
- PPH Commercial
- View Listings
- PPH Commercial
- View Listings







