Overview
- Office
- Property Type
- 440 - 440
- sq ft
Description
Location
This centre offers modern managed office space of 28 units ranging from 70 sq ft to 1,000 sq ft. The office benefit from carpeting, 24 hour access and shared kitchenette & W/C facilities.
Externally there is adequate on site car parking along with rural views overlooking Dedham Vale.
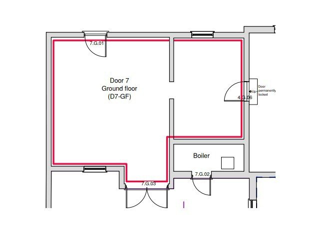
ACCOMMODATION
[Approximate Net Internal Floor Areas]
Ground Floor, Door 7*: 440 sq ft [40.9sq m] approx. £555 pcm *available January 2026
TERMS
The suites are available for a minimum term of 12 months on a simple licence agreement at an inclusive rent basis, at a rent
as outlined above.
We are advised that VAT will be applicable on the rent.
The licence includes: water rates, electricity, heating, building & grounds maintenance, 24 hour access, building insurance (not contents), kitchen facilities' and extensive car parking.
Services that are not in the agreement are: telephone and broadband, business rates, office cleaning, and office furniture.
DEPOSIT
A deposit of three months rent (plus a sum equivalent to VAT) is required form the start of the term.
BUSINESS RATES
Licensees are responsible for their individual Business Rates. Small business rate relief may be available to eligible businesses. Interested parties are advised to make their own enquiries with the local rating authority to confirm their liabilities in this direction.
ENERGY PERFORMANCE CERTIFICATE [EPC]
We have been advised that the premises fall within class D (76) of the energy performance assessment scale .
A full copy of the EPC assessment is available upon request.
VAT
All rents and prices are exclusive of VAT under the Finance Act 1989. Interested parties are advised to consult their professional advisors as to their liabilities, if any, in this direction.
LEGAL COSTS
Each party will bear their own legal costs.
VIEWINGS STRICTLY BY APPOINTMENT VIA SOLE LETTING AGENTS:
Fenn Wright
T: 01206 854545
E: colchestercommercial@fennwright.co.uk
Summary
Key points
- Well Presented Serviced Office
- Flexible "Easy-In Easy-Out" Lease Terms Available
- Kitchen & W/C Facilities Provided
- On Site Car Parking Available
- Attractive Rural Location
- Contact
Fenn Wright
Tel: 01206 854545
Edward Nolan
ejn@fennwright.co.uk
Contact Information
View Listings- Fenn Wright
- 01473 417714
Enquire About This Property
Similar Listings
- Industrial, Industrial Warehouse
- £600,000 pax & Price u/a
Industrial Warehouse: Sale/Lease, Burnley, BB10 2TT
Unit 2 Widow Hill Court Heasandford Industrial Estate, Burnley, Lancashire, BB10 2TT, Unit 2 Widow Hill Court, Burnley, Lancashire, Burnley, UK, BB10 2TT- 143,051 sq ft
- Commercial
- £84,338 pa
00745001721009
Kings Terrace London NW1 0LP, 17-21 Kings Terrace London, London, London Borough of Camden, UK, NW1 0PQ- 3373 Sq Ft
Contact me

- Movehut
- View Listings
- Commercial
- £84,338 pa
Ground Floor Office: London Borough of Camden
Kings Terrace London NW1 0LP, 17-21 Kings Terrace London, London, London Borough of Camden, UK, NW1 0PQ- 3373 Sq Ft
Contact me

- Movehut
- View Listings
- Office
- £17,500 per annum
East Laith Gate, 2b Kings Mews, Doncaster, DN1 1JD
East Laith Gate, 2b Kings Mews, Doncaster, DN1 1JD, Doncaster, South Yorkshire- 1435.47 sqft
Contact me

- Craven Wildsmith
- View Listings
- Office
- £8,400 per annum
M & M Business Park, Kirk Sandall, Doncaster, DN3 1HR
M & M Business Park, Kirk Sandall, Doncaster, DN3 1HR, Doncaster, Kirk Sandall- 944 sqft
Contact me

- Craven Wildsmith
- View Listings
- Office
- £6,700 per annum
Stone Cross House, Doncaster Road, Kirk Sandall, Doncaster, DN3 1HR
Stone Cross House, Doncaster Road, Kirk Sandall, Doncaster, DN3 1HR, Doncaster, South Yorkshire, Kirk Sandall- 823 sqft
Contact me

- Craven Wildsmith
- View Listings
- Office
- £1,500 per month
Unit 5, Jetstream Drive, Doncaster, DN9 3QS
Unit 5, Jetstream Drive, Doncaster, DN9 3QS, Doncaster, South Yorkshire- 116.32 sqm
Contact me

- Craven Wildsmith
- View Listings
- Office
- £150 per month
Parking At Unit 5, Jetstream Drive, Doncaster, DN9 3QS
Parking At Unit 5, Jetstream Drive, Doncaster, DN9 3QS, Doncaster, South YorkshireContact me

- Craven Wildsmith
- View Listings
- Office
- £1,000 - £4,000 per month
Frances Street Off East Laith Gate, 1 Kings Mews, Doncaster, DN1 1JB
Frances Street Off East Laith Gate, 1 Kings Mews, Doncaster, DN1 1JB, Doncaster, South Yorkshire- 1026 sqft
Contact me

- Craven Wildsmith
- View Listings
Contact me

- Fenn Wright
- View Listings

- Fenn Wright
- View Listings










