Search

Minster Court, 22-30 York Road, Maidenhead, SL6 1SF

  • £27 per sqft

Overview

  • Office
  • Property Type

Description

Location

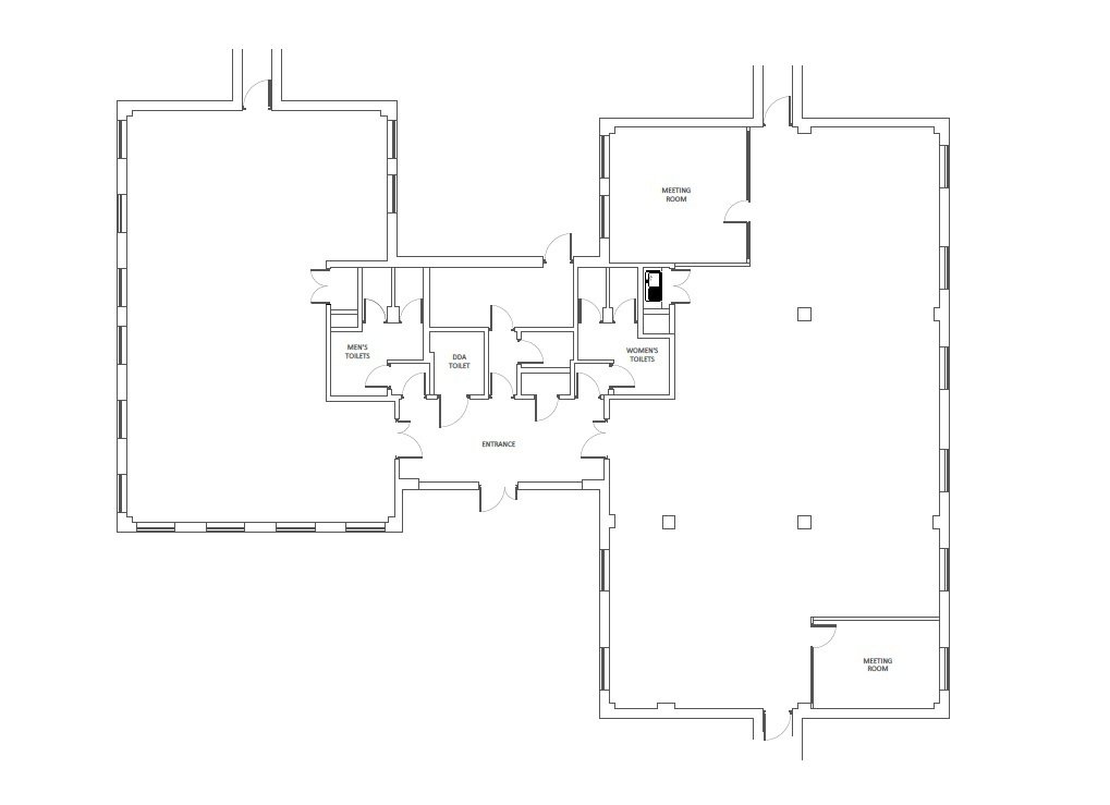
Minster Court is a self contained ground floor office in the heart of Maidenhead Town Centre. The suites have been refurbished to provide new LED lighting, tea point, WCs and a refresh of the air conditioning system. The offices benefit from perimeter trunking.

The office is divided into two suites which can be let together or separately. Suitable for both office and medical / clinic use.

The premises benefit from generous parking, there are 17 spaces available for the whole.

Summary

Key points

  • Generous parking allocation - 17 spaces
  • Kitchen Facilities
  • Air conditioning
  • Suitable for a variety of uses
  • EPC: B 41

Read More

Contact Information

View Listings
Kalmers
  • Kalmers

Enquire About This Property

Similar Listings

Compare listings

Compare