Search
Overview
- Land
- Property Type
Description
Location
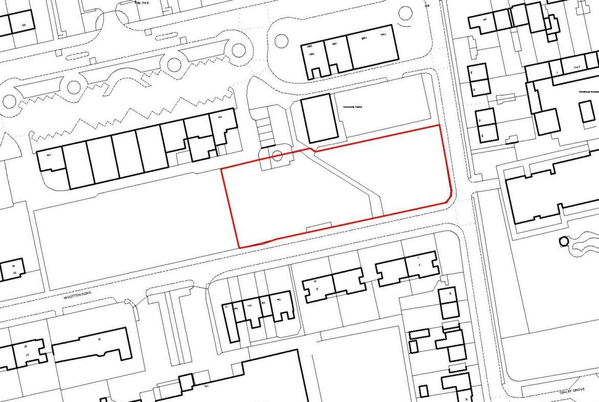
The site comprises a level, rectangular shaped parcel of land with road frontages to both Wootton Road and Burwell Drive.
Summary
Key points
- Freehold development site of 0.31 Ha (0.76 Acres) approx.
- Popular densely populated residential area.
- Would suite residential development, subject to consent.
Contact
PPH Commercial
Tel: 01724 294946
Duncan Willey
duncan.willey@pph-commercial.co.uk
PPH Commercial
Tel: 01724 294942
Sam Fallowfield
sam.fallowfield@pph-commercial.co.uk
EPC
Mortgage Calculator
Monthly
-
Down Payment
-
Loan Amount
-
Monthly Mortgage Payment
£
%
%
Land Off Wootton Road, Grimsby, DN33 1HE
Contact Information
View ListingsSimilar Listings
- Industrial, Industrial Warehouse
- £600,000 pax & Price u/a
Industrial Warehouse: Sale/Lease, Burnley, BB10 2TT
Unit 2 Widow Hill Court Heasandford Industrial Estate, Burnley, Lancashire, BB10 2TT, Unit 2 Widow Hill Court, Burnley, Lancashire, Burnley, UK, BB10 2TT- 143,051 sq ft
- Industrial
Station Road Garage, Station Road, Adwick Le Street, Doncaster, DN6 7BE
Station Road Garage, Station Road, Adwick Le Street, Doncaster, DN6 7BE, Doncaster, Adwick-Le-Street- 160 sqm
Contact me

- Craven Wildsmith
- View Listings
- Investment
Marvels Lane Clinic, 37 Marvels Lane, Bromley, London, SE12 9PN
Marvels Lane Clinic, 37 Marvels Lane, Bromley, London, SE12 9PN, London, Bromley- 10000 sqft
- Investment
114E Blackstock Road, Islington, London, N4 2DR
114E Blackstock Road, Islington, London, N4 2DR, London, Islington- 500 sqft
- Investment
1 – 3 Marconi Place, Friern Barnet, London, N11 1PE
1 - 3 Marconi Place, Friern Barnet, London, N11 1PE, London, Friern Barnet- 4988 sqft
- Other
Car Park Space, 32 Ewart Grove, Emerald Apartments, Wood Green, London, N22 5NU
Car Park Space, 32 Ewart Grove, Emerald Apartments, Wood Green, London, N22 5NU, London, Wood Green- 135 sqft
- Other
Car Park Space, 32 Ewart Grove, Emerald Apartments, Wood Green, London, N22 5NU
Car Park Space, 32 Ewart Grove, Emerald Apartments, Wood Green, London, N22 5NU, London, Wood Green- 135 sqft
- PPH Commercial


