Overview
- Land
- Property Type
- 1 - 1
- sq ft
Description
Location
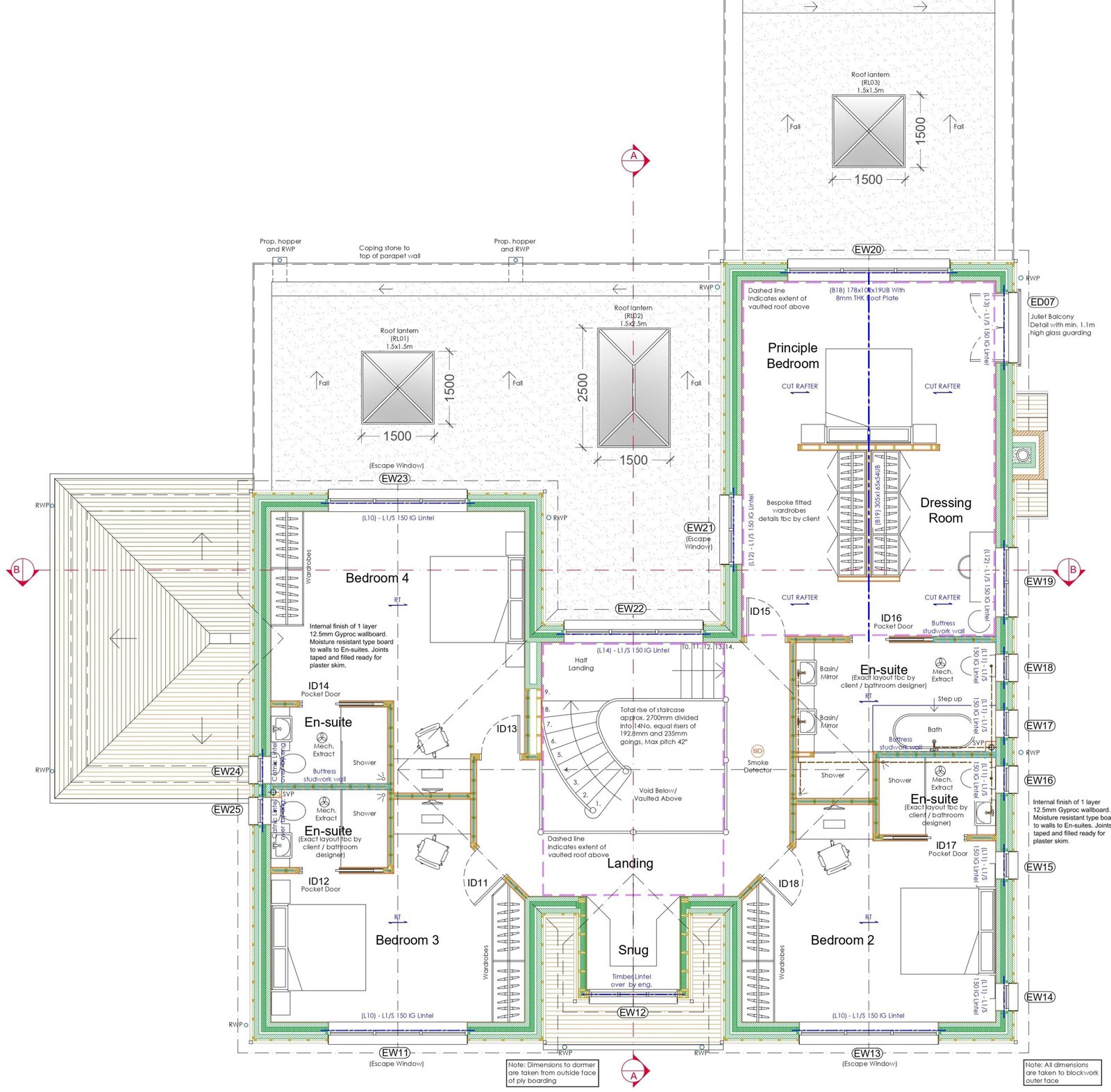
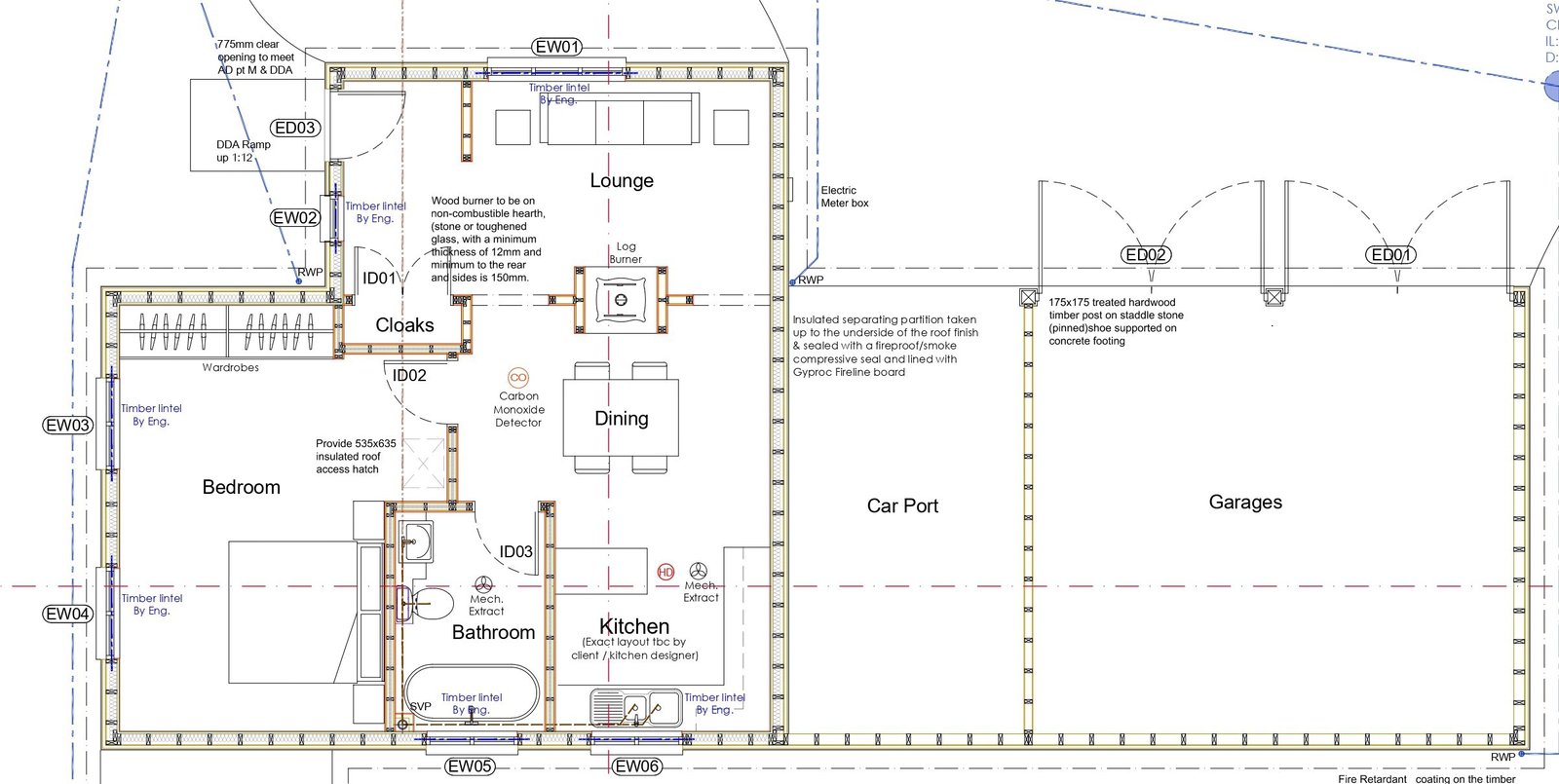
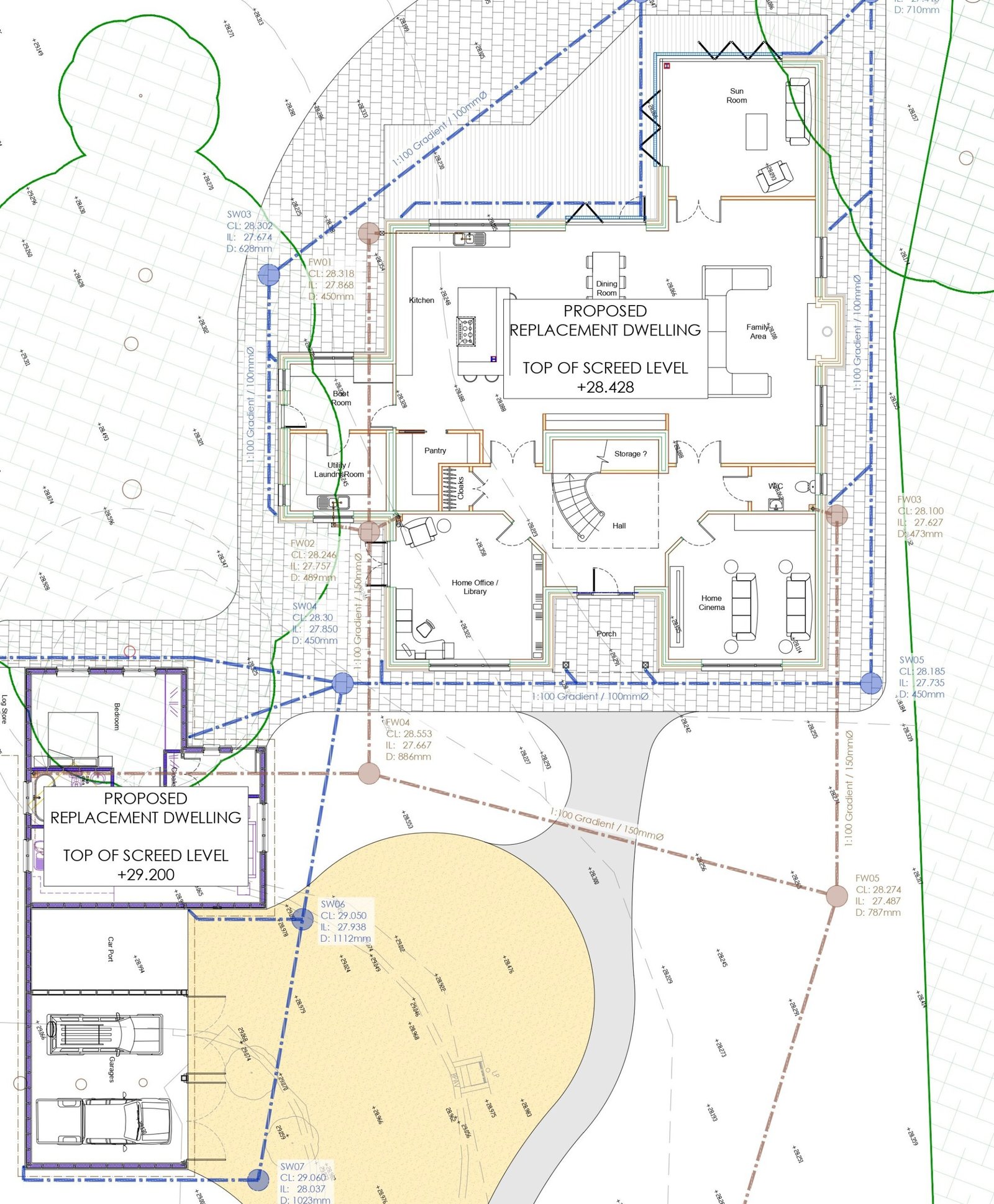
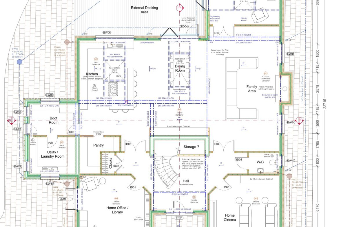
A rare opportunity to purchase this substantial building plot situated in a village location to the east of the City of Colchester and offering a plot of approximately 1 acre. The property is ready to be built and has planning permission granted by Tendring District Council under reference 22/01695/FUL for a substantial executive style family house with a GIA of approximately 5,000sqft, the annexe of just under 700sqft and a garage approaching 600sqft GIA.
The spacious family accommodation comprising reception hall giving access to all ground floor accommodation including the cinema room situated to the front of the property and home office which would make an ideal work from home space. There is an open plan kitchen/dining/family room stretching across the rear of the property and makes an ideal entertaining space with access via double doors into the garden room. Located off the kitchen is a good size pantry and boot room which in turn gives access to the utility room. The ground floor concludes with a cloakroom.
The first floor reception hall gives access to four double bedrooms and a snug area. All four bedrooms benefit from en-suite facilities whilst the master bedroom suite also enjoys a dressing room.
Outside
The property would benefit from a double garage and cart lodge together with potential annexe accommodation comprising open plan lounge/kitchen/diner, bedroom and a bathroom.
As previously mentioned the plot measures approximately 1 acre.
Location
The property occupies a non-estate position in the popular village of Thorrington offering straightforward access to Brightlingsea, Great Bentley and Clacton on Sea. The city of Colchester is also a short drive away offering further shopping and recreational facilities.
Directions
Please use the postcode CO7 8JA for SatNav.
Important Information
Services - We understand that all mains' services are available in Station Road with the exception of gas.
Tenure - Freehold
EPC - n/a
Ref - WIT250043MM
Agents note
Further information can be provided of various reports already carried out by the current owner of the land to assist with the development of the plot including building regulation calculations and construction notes. Links to this can be provided to any prospective buyer upon request.
For further information please telephone or email:
01206 763388
colchester@fennwright.co.uk
Summary
Key points
- Plot extends to Approx 1 Acre
- Planning Permission for Substantial Executive Style Family House
- Situated in a Village Location
- City of Colchester a Short Drive Away
- Contact
Fenn Wright
Tel: 01206 763388
Paul Coward
prc@fennwright.co.uk
Mortgage Calculator
-
Down Payment
-
Loan Amount
-
Monthly Mortgage Payment
Contact Information
View Listings- Fenn Wright
- 01473 417714
Enquire About This Property
Similar Listings
- Industrial
Station Road Garage, Station Road, Adwick Le Street, Doncaster, DN6 7BE
Station Road Garage, Station Road, Adwick Le Street, Doncaster, DN6 7BE, Doncaster, Adwick-Le-Street- 160 sqm
Contact me

- Craven Wildsmith
- View Listings
- Investment
Marvels Lane Clinic, 37 Marvels Lane, Bromley, London, SE12 9PN
Marvels Lane Clinic, 37 Marvels Lane, Bromley, London, SE12 9PN, London, Bromley- 10000 sqft
- Investment
114E Blackstock Road, Islington, London, N4 2DR
114E Blackstock Road, Islington, London, N4 2DR, London, Islington- 500 sqft
- Investment
1 – 3 Marconi Place, Friern Barnet, London, N11 1PE
1 - 3 Marconi Place, Friern Barnet, London, N11 1PE, London, Friern Barnet- 4988 sqft
- Other
Car Park Space, 32 Ewart Grove, Emerald Apartments, Wood Green, London, N22 5NU
Car Park Space, 32 Ewart Grove, Emerald Apartments, Wood Green, London, N22 5NU, London, Wood Green- 135 sqft
- Other
Car Park Space, 32 Ewart Grove, Emerald Apartments, Wood Green, London, N22 5NU
Car Park Space, 32 Ewart Grove, Emerald Apartments, Wood Green, London, N22 5NU, London, Wood Green- 135 sqft
- Investment
Tottenham Lane, 2 Topsfield Parade, London, N8 8PR
Tottenham Lane, 2 Topsfield Parade, London, N8 8PR, London- 820 sqft
Contact me

- Fenn Wright
- View Listings

- Fenn Wright
- View Listings





