Overview
- Retail
- Property Type
- 590 - 10560
- sq ft
Description
Location
**AVAILABLE EARLY 2026**
Judds Place is a new development of high-quality office and business units, forming part of the wider Tollgate Village scheme. The site extends to approximately 3.5 acres and will offer a mix of small to medium-sized units suitable for a range of uses including office, retail, medical, leisure, and food (Use Classes E(g), B2, B8).
LOCATION
Located just off the A12 (Junction 26) and close to the A120, the site benefits from excellent road, rail, pedestrian, and cycle links. Marks Tey station is nearby, with direct trains to London Liverpool Street in under 45 mins. Stansted Airport, Harwich, and Felixstowe are all within a 30-minute drive.
The development is within walking distance of restaurants, cafés, major retailers (including M&S, Next, and Sainsbury's), and a 24-hour gym and benefits from landscaped areas and direct access to cycle routes.
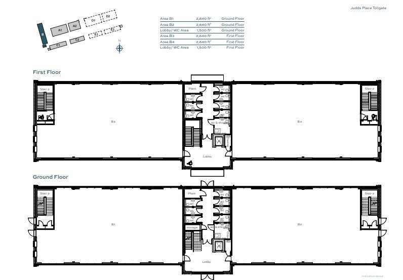
Phase One includes five buildings offering flexible space from 590 ft to 10,560 ft, suitable for a wide range of uses including office, retail, medical, leisure, and food.
Specification to include:
- Units from 590 - 10,560 sq ft
- EPC A rating
- Kitchenette and WC in each unit
- Raised access flooring (selected units)
- Split heating/cooling powered by solar PV
- LED lighting
- Intruder/fire alarm systems
- 3-phase power supply
- Allocated parking (1:300 sq ft) plus visitor spaces
- EV charging provision
- Cycle storage
- Mezzanine potential in buildings A1 and A2 (by agreement)
- Internal heights up to 6.9m (A1/A2), 3.9m (Building B), and 3.5m (C1/C2)
>>Buildings A1 & A2: 7 units from 590-2,520 ft, or up to 7,260 sq ft (GIA) for a single occupier-
>>Building B: A Two-storey HQ opportunity at 10,560 sq ft (NIA) with 76 parking spaces
>>Buildings C1 & C2: smaller units from 650 sq ft (GIA), with potential to combine up to 3,660 sq ft (C1) and 2,690 sq ft (C2)
TERMS
Units will be available to let on new effective full repairing leases, lease length and terms to be agreed (minimum term of five years, with a break on the third anniversary),
Rents are payable monthly in advance and are exclusive of VAT, business rates, and service charge.
SERVICE CHARGE
A service charge will be applicable. Further detail of what is included, and budget figures, are available upon request.
BUILDINGS INSURANCE
The buildings insurance is to be arranged by the landlord with the cost to be recovered from the tenant.
The approximate cost is available upon request.
BUSINESS RATES
We are advised that the premises are yet to be assessed for business rates purposes. Rents are exclusive of
business rates and tenants will be responsible for this cost.
We recommend all parties make their own direct enquiries with the local rating authority.
EPC
The premises will be assessed upon completion of the construction works. It is anticipated that the EPC rating will be 'A'.
PLANNING
We are advised that the site benefits from use classes E, F1 (a-g) and F2(b) planning consent, with hour restrictions as follows; trading permitted 07:00 to 21:00, seven days a week, and deliveries only permitted 07:00-23:00 for Blocks A & B and 07:00-21:00 and for Block C Monday to Friday, and 07:00-17:00 weekends and bank holidays.
A full copy of the planning consent is available upon request. Interested parties are advised to make their own enquiries with the local planning authority.
VAT
We are advised that VAT will be applicable on the rent.
ANTI-MONEY LAUNDERING REGULATIONS
Anti-Money Laundering Regulations require Fenn Wright to formally verify a prospective tenant's identity prior to the instruction of solicitors.
To request further details, please contact joint sole agents:
Fenn Wright
01206 85 45 45
colchestercommercial@fennwright.co.uk
Summary
Key points
- New high-quality office and business units available early 2026
- Unit sizes from 590 sq ft to 10,560 sq ft, with potential for larger combined spaces
- Located just off the A12 with excellent road and rail links
- EPC A-rated units with solar PV, heating/cooling, and LED lighting
- Allocated parking plus visitor spaces and EV charging provision
- Contact
Fenn Wright
Tel: 01206 854545
Michael Moody
mcm@fennwright.co.uk
Contact Information
View Listings- Fenn Wright
- 01473 417714
Enquire About This Property
Similar Listings
- Office
- £17,500 per annum
East Laith Gate, 2b Kings Mews, Doncaster, DN1 1JD
East Laith Gate, 2b Kings Mews, Doncaster, DN1 1JD, Doncaster, South Yorkshire- 1435.47 sqft
Contact me

- Craven Wildsmith
- View Listings
- Office
- £8,400 per annum
M & M Business Park, Kirk Sandall, Doncaster, DN3 1HR
M & M Business Park, Kirk Sandall, Doncaster, DN3 1HR, Doncaster, Kirk Sandall- 944 sqft
Contact me

- Craven Wildsmith
- View Listings
- Office
- £6,700 per annum
Stone Cross House, Doncaster Road, Kirk Sandall, Doncaster, DN3 1HR
Stone Cross House, Doncaster Road, Kirk Sandall, Doncaster, DN3 1HR, Doncaster, South Yorkshire, Kirk Sandall- 823 sqft
Contact me

- Craven Wildsmith
- View Listings
- Office
- £1,500 per month
Unit 5, Jetstream Drive, Doncaster, DN9 3QS
Unit 5, Jetstream Drive, Doncaster, DN9 3QS, Doncaster, South Yorkshire- 116.32 sqm
Contact me

- Craven Wildsmith
- View Listings
- Office
- £150 per month
Parking At Unit 5, Jetstream Drive, Doncaster, DN9 3QS
Parking At Unit 5, Jetstream Drive, Doncaster, DN9 3QS, Doncaster, South YorkshireContact me

- Craven Wildsmith
- View Listings
- Office
- £1,000 - £4,000 per month
Frances Street Off East Laith Gate, 1 Kings Mews, Doncaster, DN1 1JB
Frances Street Off East Laith Gate, 1 Kings Mews, Doncaster, DN1 1JB, Doncaster, South Yorkshire- 1026 sqft
Contact me

- Craven Wildsmith
- View Listings
- Office
- £1,750 - £3,700 per month
East Laith Gate, 2c & 2d Kings Mews, Doncaster, DN1 1JD
East Laith Gate, 2c & 2d Kings Mews, Doncaster, DN1 1JD, Doncaster, South Yorkshire- 1800 sqft
Contact me

- Craven Wildsmith
- View Listings
- Office
- £1,150 per month
Offices 3 And 4, Queens Road, Queens Road Design Centre, Town Centre, Doncaster, DN1 2NH
Offices 3 And 4, Queens Road, Queens Road Design Centre, Town Centre, Doncaster, DN1 2NH, Doncaster, Town Centre- 86 sqm
Contact me

- Craven Wildsmith
- View Listings
- Office
- £650 per month
Office 6, Queens Road, Queens Road Design Centre, Town Centre, Doncaster, DN1 2NH
Office 6, Queens Road, Queens Road Design Centre, Town Centre, Doncaster, DN1 2NH, Doncaster, South Yorkshire, Town Centre- 53 sqm
Contact me

- Craven Wildsmith
- View Listings
Contact me

- Fenn Wright
- View Listings

- Fenn Wright
- View Listings

















