Search
Overview
- Office
- Property Type
Description
Location
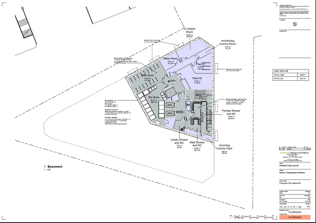
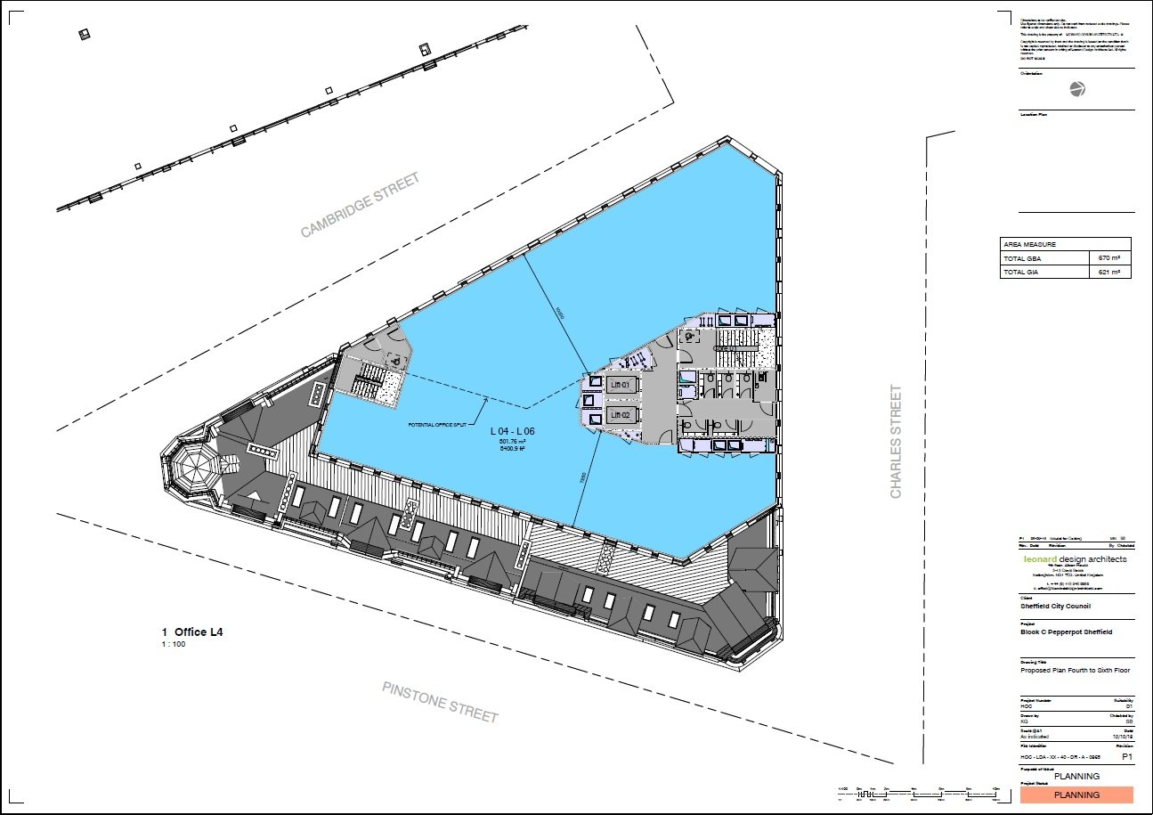
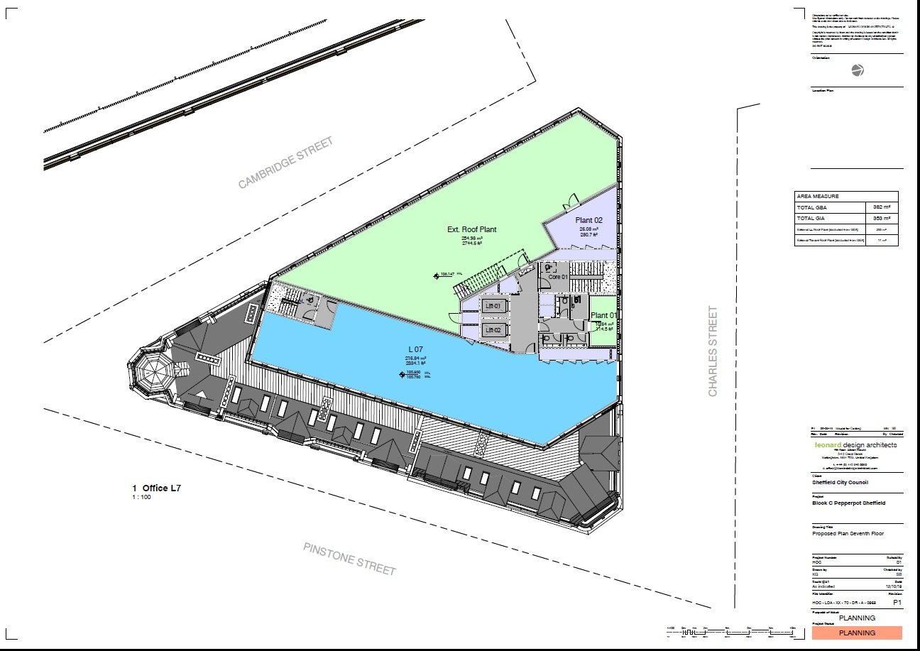
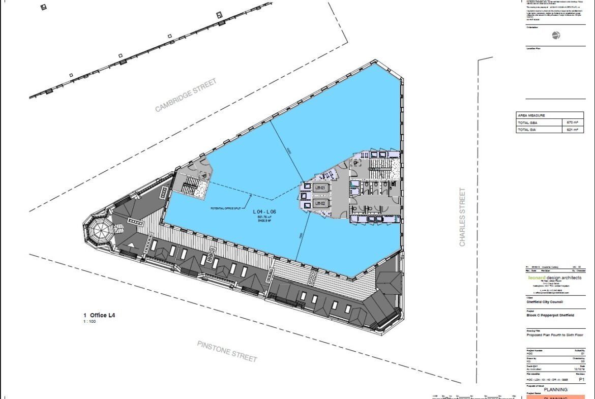
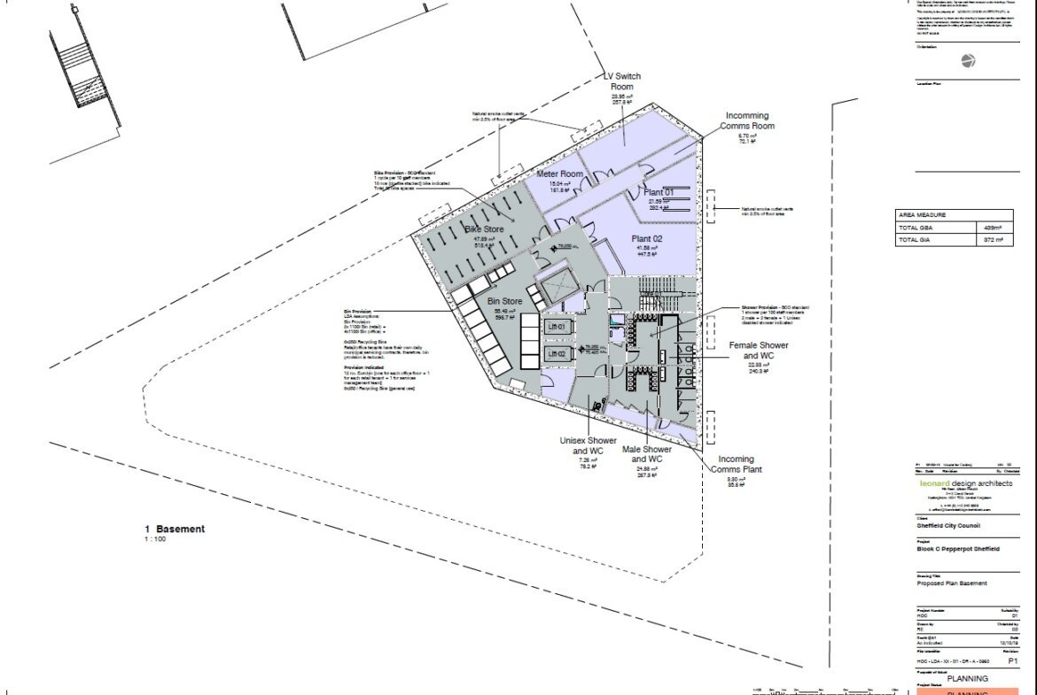
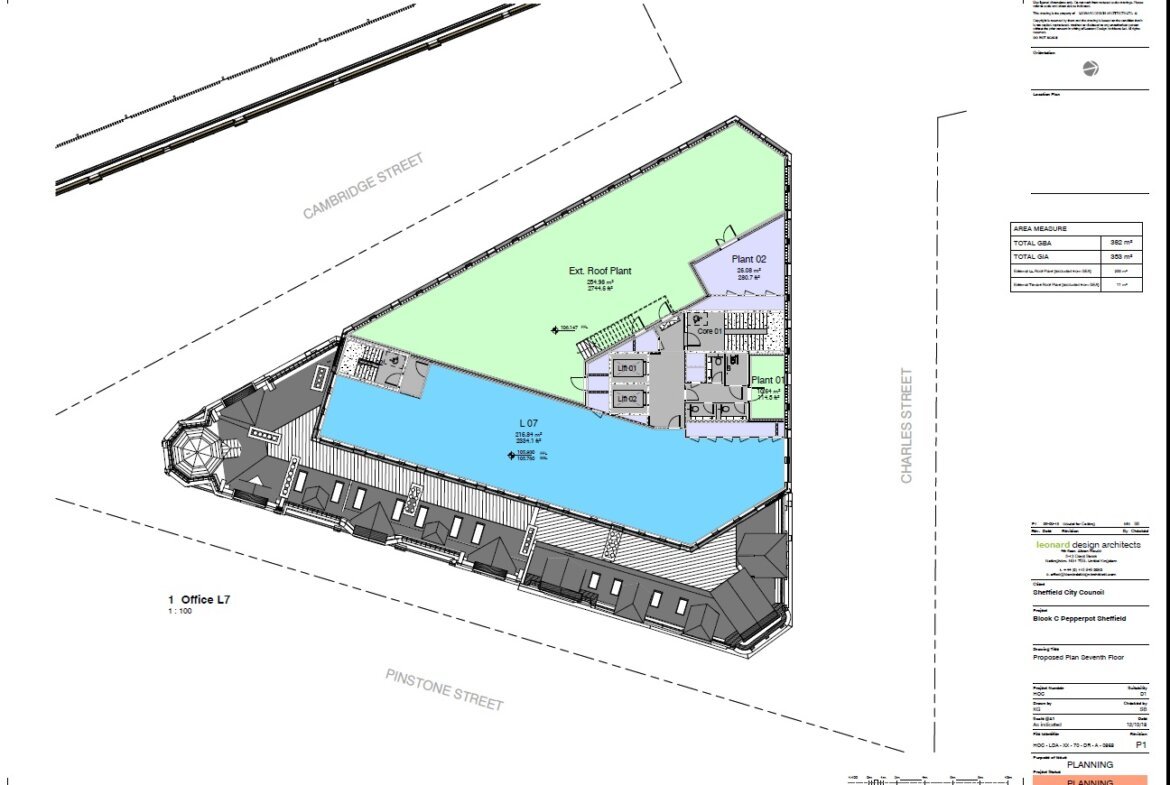
Originally erected by paperhangings merchant David Isaacs in 1904-5, the building is being completely reimagined to provide 37,600 sq ft of high-quality contemporary workspace with prime retail and leisure space on the ground floor.
Behind the attractively restored Victorian façade on Pinstone Street, the building will provide a Grade A, workplace suitable for medium to large organisations with floorplates ranging from 2,334 - 7,252 sq ft.
Building currently under construction & will be ready for occupation by Q2, 2021.
Summary
Key points
- Stylish double height reception lobby
- Efficient, light & highly divisible office workspaces
- DDA compliant facilities
- High quality changing & shower facilities
- Secure basement cycle storage & drying room
- LED lighting with PIR motion activated light sensors
- Full access raised floor
- 24-hour building access
- Target BREEAM Very Good rating
- Located on one of the UK's most ambitious developments
Contact
LAMBERT SMITH HAMPTON LIMITED
Tel: 0113 887 6708
Matthew Procter
mprocter@lsh.co.uk
LAMBERT SMITH HAMPTON LIMITED
Tel: 07707 866 742
Alfie Weston
alweston@lsh.co.uk
EPC
Isaacs Building, 4 Charles Street, Sheffield, S1 2HU
Contact Information
View ListingsSimilar Listings
- Commercial
- £84,338 pa
00745001721009
Kings Terrace London NW1 0LP, 17-21 Kings Terrace London, London, London Borough of Camden, UK, NW1 0PQ- 3373 Sq Ft
Contact me

- Movehut
- View Listings
- Commercial
- £84,338 pa
Ground Floor Office: London Borough of Camden
Kings Terrace London NW1 0LP, 17-21 Kings Terrace London, London, London Borough of Camden, UK, NW1 0PQ- 3373 Sq Ft
Contact me

- Movehut
- View Listings
- Office
- £17,500 per annum
East Laith Gate, 2b Kings Mews, Doncaster, DN1 1JD
East Laith Gate, 2b Kings Mews, Doncaster, DN1 1JD, Doncaster, South Yorkshire- 1435.47 sqft
Contact me

- Craven Wildsmith
- View Listings
- Office
- £8,400 per annum
M & M Business Park, Kirk Sandall, Doncaster, DN3 1HR
M & M Business Park, Kirk Sandall, Doncaster, DN3 1HR, Doncaster, Kirk Sandall- 944 sqft
Contact me

- Craven Wildsmith
- View Listings
- Office
- £6,700 per annum
Stone Cross House, Doncaster Road, Kirk Sandall, Doncaster, DN3 1HR
Stone Cross House, Doncaster Road, Kirk Sandall, Doncaster, DN3 1HR, Doncaster, South Yorkshire, Kirk Sandall- 823 sqft
Contact me

- Craven Wildsmith
- View Listings
- Office
- £1,500 per month
Unit 5, Jetstream Drive, Doncaster, DN9 3QS
Unit 5, Jetstream Drive, Doncaster, DN9 3QS, Doncaster, South Yorkshire- 116.32 sqm
Contact me

- Craven Wildsmith
- View Listings
- Office
- £150 per month
Parking At Unit 5, Jetstream Drive, Doncaster, DN9 3QS
Parking At Unit 5, Jetstream Drive, Doncaster, DN9 3QS, Doncaster, South YorkshireContact me

- Craven Wildsmith
- View Listings
- Office
- £1,000 - £4,000 per month
Frances Street Off East Laith Gate, 1 Kings Mews, Doncaster, DN1 1JB
Frances Street Off East Laith Gate, 1 Kings Mews, Doncaster, DN1 1JB, Doncaster, South Yorkshire- 1026 sqft
Contact me

- Craven Wildsmith
- View Listings
- Office
- £1,750 - £3,700 per month
East Laith Gate, 2c & 2d Kings Mews, Doncaster, DN1 1JD
East Laith Gate, 2c & 2d Kings Mews, Doncaster, DN1 1JD, Doncaster, South Yorkshire- 1800 sqft
Contact me

- Craven Wildsmith
- View Listings
- Kalmers
Contact me

- Kalmers
- View Listings

- Kalmers
- View Listings











