Search
- Home
- For Rent
- Leisure Facility
- Gym/Leisure Proposal, 80 Nethergate, Dundee, DD1 4ER
Overview
- Leisure Facility
- Property Type
Description
Location
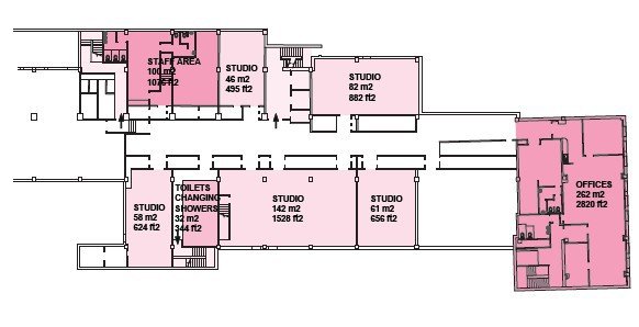
Indicative proposals have been drawn up for the current mall office space to be re-purposed into a leisure or gym use.
This would be subject to planning but indicative floorplans and sizes are provided.
Summary
Key points
Contact
LAMBERT SMITH HAMPTON LIMITED
Tel: 07872 822 314
Geoff Scott
gscott@lsh.co.uk
EPC
Gym/Leisure Proposal, 80 Nethergate, Dundee, DD1 4ER
Contact Information
View ListingsSimilar Listings
- Commercial
- £84,338 pa
00745001721009
Kings Terrace London NW1 0LP, 17-21 Kings Terrace London, London, London Borough of Camden, UK, NW1 0PQ- 3373 Sq Ft
Contact me

- Movehut
- View Listings
- Commercial
- £84,338 pa
Ground Floor Office: London Borough of Camden
Kings Terrace London NW1 0LP, 17-21 Kings Terrace London, London, London Borough of Camden, UK, NW1 0PQ- 3373 Sq Ft
Contact me

- Movehut
- View Listings
- Office
- £17,500 per annum
East Laith Gate, 2b Kings Mews, Doncaster, DN1 1JD
East Laith Gate, 2b Kings Mews, Doncaster, DN1 1JD, Doncaster, South Yorkshire- 1435.47 sqft
Contact me

- Craven Wildsmith
- View Listings
- Office
- £8,400 per annum
M & M Business Park, Kirk Sandall, Doncaster, DN3 1HR
M & M Business Park, Kirk Sandall, Doncaster, DN3 1HR, Doncaster, Kirk Sandall- 944 sqft
Contact me

- Craven Wildsmith
- View Listings
- Office
- £6,700 per annum
Stone Cross House, Doncaster Road, Kirk Sandall, Doncaster, DN3 1HR
Stone Cross House, Doncaster Road, Kirk Sandall, Doncaster, DN3 1HR, Doncaster, South Yorkshire, Kirk Sandall- 823 sqft
Contact me

- Craven Wildsmith
- View Listings
- Office
- £1,500 per month
Unit 5, Jetstream Drive, Doncaster, DN9 3QS
Unit 5, Jetstream Drive, Doncaster, DN9 3QS, Doncaster, South Yorkshire- 116.32 sqm
Contact me

- Craven Wildsmith
- View Listings
- Office
- £150 per month
Parking At Unit 5, Jetstream Drive, Doncaster, DN9 3QS
Parking At Unit 5, Jetstream Drive, Doncaster, DN9 3QS, Doncaster, South YorkshireContact me

- Craven Wildsmith
- View Listings
- Office
- £1,000 - £4,000 per month
Frances Street Off East Laith Gate, 1 Kings Mews, Doncaster, DN1 1JB
Frances Street Off East Laith Gate, 1 Kings Mews, Doncaster, DN1 1JB, Doncaster, South Yorkshire- 1026 sqft
Contact me

- Craven Wildsmith
- View Listings
- Office
- £1,750 - £3,700 per month
East Laith Gate, 2c & 2d Kings Mews, Doncaster, DN1 1JD
East Laith Gate, 2c & 2d Kings Mews, Doncaster, DN1 1JD, Doncaster, South Yorkshire- 1800 sqft
Contact me

- Craven Wildsmith
- View Listings
- Lambert Smith Hampton
