Search
Overview
- Office
- Property Type
Description
Location
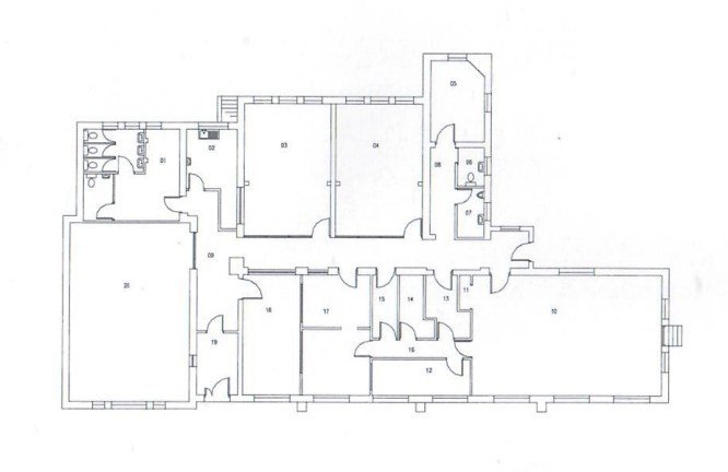
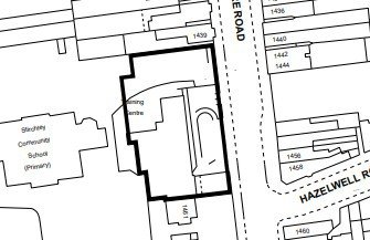
The former Selly Oak District Office presents a great opportunity for either refurbishment or redevelopment. The site is strategically positioned for number of new potential uses and occupation. The property is a single storey late 19th century brick building with a mainly pitched tiled roof with facing brickwork elevations. Internally, there are a number of large rooms/halls with high-vaulted ceilings leading of the central corridors. Pedestrian access is directly from Pershore Road and vehicular access is via Charlotte Road.
Summary
Key points
- Freehold with Vacant Possession (stc)
- Approx. 0.3 acres with 8 Parking Space
- Extends to 2,762sq.ft NIA / 4,154sq.ft GIA
- Former Community Centre / Redevelopment Opportunity
- Formerly Used as a District Office
- Informal Tender Bid Deadline Thursday 1st May 2025
Mortgage Calculator
Monthly
-
Down Payment
-
Loan Amount
-
Monthly Mortgage Payment
£
%
%
Former Selly Oak District Office, 1459 Pershore Road, Bournville, Birmingham, B30 2JL
Contact Information
View ListingsSimilar Listings
- Industrial, Industrial Warehouse
- £600,000 pax & Price u/a
Industrial Warehouse: Sale/Lease, Burnley, BB10 2TT
Unit 2 Widow Hill Court Heasandford Industrial Estate, Burnley, Lancashire, BB10 2TT, Unit 2 Widow Hill Court, Burnley, Lancashire, Burnley, UK, BB10 2TT- 143,051 sq ft
- Industrial
Station Road Garage, Station Road, Adwick Le Street, Doncaster, DN6 7BE
Station Road Garage, Station Road, Adwick Le Street, Doncaster, DN6 7BE, Doncaster, Adwick-Le-Street- 160 sqm
Contact me

- Craven Wildsmith
- View Listings
- Investment
Marvels Lane Clinic, 37 Marvels Lane, Bromley, London, SE12 9PN
Marvels Lane Clinic, 37 Marvels Lane, Bromley, London, SE12 9PN, London, Bromley- 10000 sqft
- Investment
114E Blackstock Road, Islington, London, N4 2DR
114E Blackstock Road, Islington, London, N4 2DR, London, Islington- 500 sqft
- Investment
1 – 3 Marconi Place, Friern Barnet, London, N11 1PE
1 - 3 Marconi Place, Friern Barnet, London, N11 1PE, London, Friern Barnet- 4988 sqft
- Other
Car Park Space, 32 Ewart Grove, Emerald Apartments, Wood Green, London, N22 5NU
Car Park Space, 32 Ewart Grove, Emerald Apartments, Wood Green, London, N22 5NU, London, Wood Green- 135 sqft
- Other
Car Park Space, 32 Ewart Grove, Emerald Apartments, Wood Green, London, N22 5NU
Car Park Space, 32 Ewart Grove, Emerald Apartments, Wood Green, London, N22 5NU, London, Wood Green- 135 sqft
- Lambert Smith Hampton







