Search
Overview
- Retail
- Property Type
Description
Location
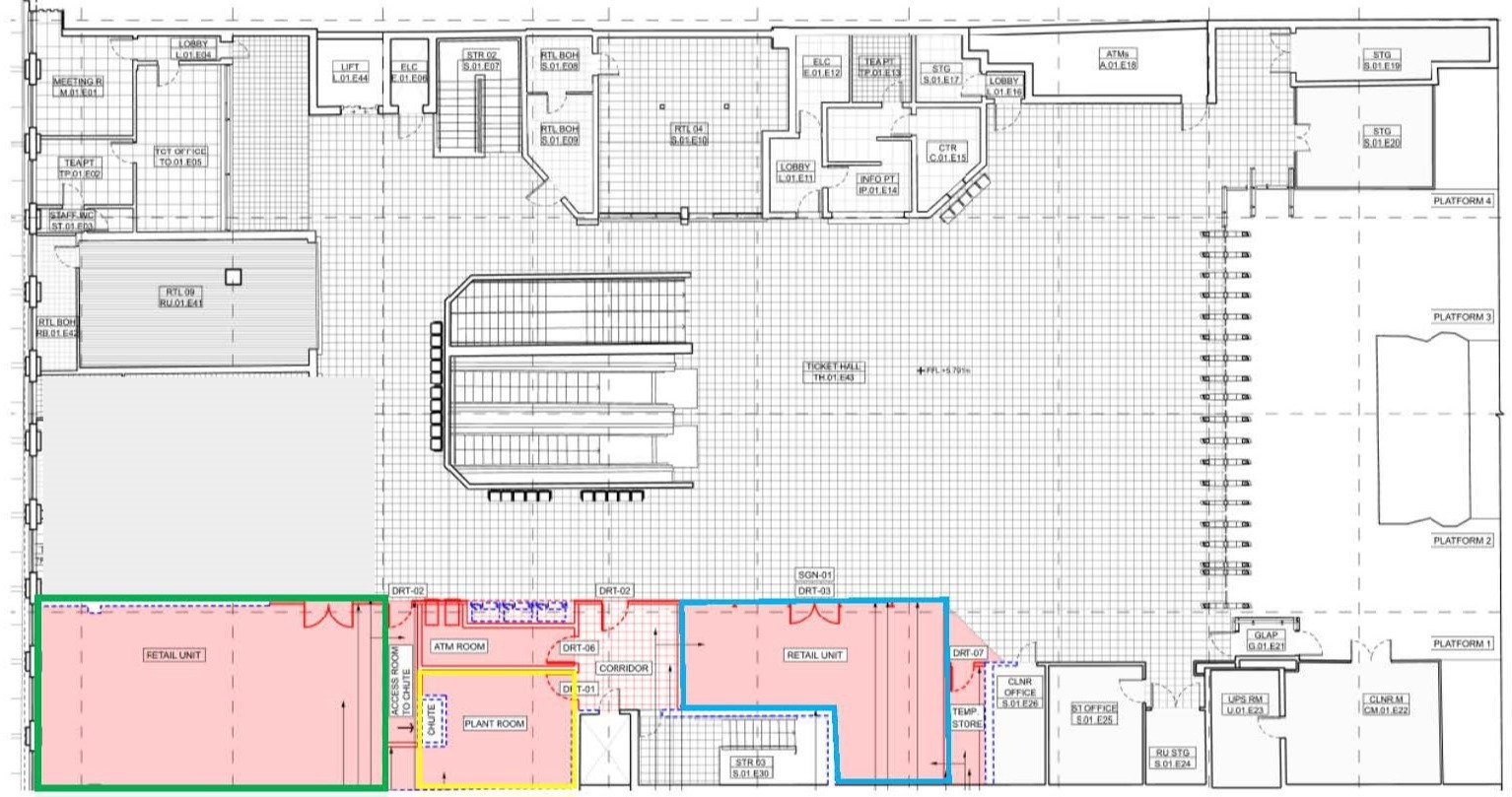
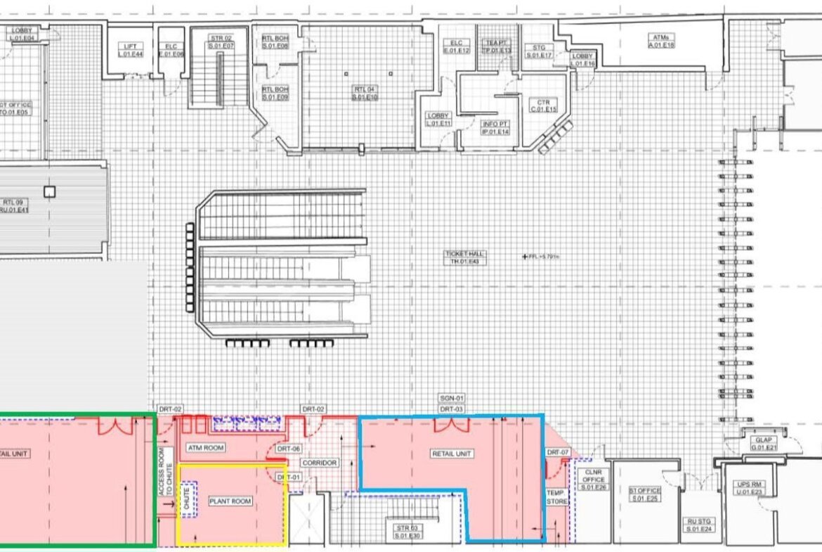
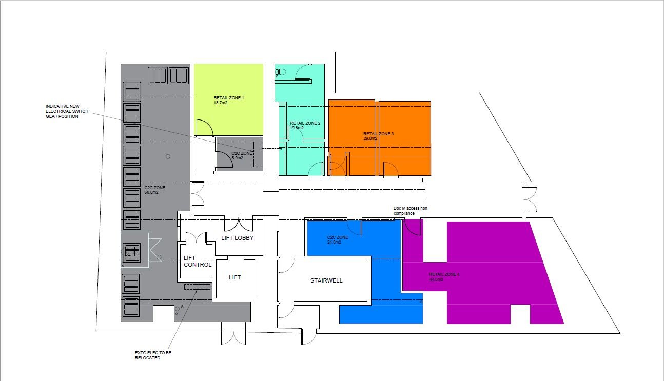
Train operator C2C Trenitalia Limited are investing substantial sums to redevelop Fenchurch St Railway Station to improve the customer experience and operation of the station and to create a modern, welcoming environment with the latest passenger facilities and highest quality retail offers. The main focus of the redevelopment will be the upper concourse.
Summary
Key points
- Prime City of London Location
- 10.45 million passengers per annum
Fenchurch Street Railway Station, Fenchurch Place, London, EC3M 4AJ
Contact Information
View ListingsSimilar Listings
- Office
- £17,500 per annum
East Laith Gate, 2b Kings Mews, Doncaster, DN1 1JD
East Laith Gate, 2b Kings Mews, Doncaster, DN1 1JD, Doncaster, South Yorkshire- 1435.47 sqft
Contact me

- Craven Wildsmith
- View Listings
- Office
- £8,400 per annum
M & M Business Park, Kirk Sandall, Doncaster, DN3 1HR
M & M Business Park, Kirk Sandall, Doncaster, DN3 1HR, Doncaster, Kirk Sandall- 944 sqft
Contact me

- Craven Wildsmith
- View Listings
- Office
- £6,700 per annum
Stone Cross House, Doncaster Road, Kirk Sandall, Doncaster, DN3 1HR
Stone Cross House, Doncaster Road, Kirk Sandall, Doncaster, DN3 1HR, Doncaster, South Yorkshire, Kirk Sandall- 823 sqft
Contact me

- Craven Wildsmith
- View Listings
- Office
- £1,500 per month
Unit 5, Jetstream Drive, Doncaster, DN9 3QS
Unit 5, Jetstream Drive, Doncaster, DN9 3QS, Doncaster, South Yorkshire- 116.32 sqm
Contact me

- Craven Wildsmith
- View Listings
- Office
- £150 per month
Parking At Unit 5, Jetstream Drive, Doncaster, DN9 3QS
Parking At Unit 5, Jetstream Drive, Doncaster, DN9 3QS, Doncaster, South YorkshireContact me

- Craven Wildsmith
- View Listings
- Office
- £1,000 - £4,000 per month
Frances Street Off East Laith Gate, 1 Kings Mews, Doncaster, DN1 1JB
Frances Street Off East Laith Gate, 1 Kings Mews, Doncaster, DN1 1JB, Doncaster, South Yorkshire- 1026 sqft
Contact me

- Craven Wildsmith
- View Listings
- Office
- £1,750 - £3,700 per month
East Laith Gate, 2c & 2d Kings Mews, Doncaster, DN1 1JD
East Laith Gate, 2c & 2d Kings Mews, Doncaster, DN1 1JD, Doncaster, South Yorkshire- 1800 sqft
Contact me

- Craven Wildsmith
- View Listings
- Office
- £1,150 per month
Offices 3 And 4, Queens Road, Queens Road Design Centre, Town Centre, Doncaster, DN1 2NH
Offices 3 And 4, Queens Road, Queens Road Design Centre, Town Centre, Doncaster, DN1 2NH, Doncaster, Town Centre- 86 sqm
Contact me

- Craven Wildsmith
- View Listings
- Office
- £650 per month
Office 6, Queens Road, Queens Road Design Centre, Town Centre, Doncaster, DN1 2NH
Office 6, Queens Road, Queens Road Design Centre, Town Centre, Doncaster, DN1 2NH, Doncaster, South Yorkshire, Town Centre- 53 sqm
Contact me

- Craven Wildsmith
- View Listings
- Kalmers
Contact me

- Kalmers
- View Listings

- Kalmers
- View Listings



