- Home
- For Sale
- Industrial
- Estuary House, Whitehall Road, Colchester, CO2 8HA
Overview
- Industrial
- Property Type
- 8982 - 8982
- sq ft
Description
Location
The premises consist of two storey offices with brick and rendered elevations, under a pitched slate roof, overlooking Whitehall Road.
The offices are presented in a cellular layout providing a variety of sizes suitable for individual offices, and meeting/training rooms. Kitchenette and WC facilities are provided along with gas fired central heating and air conditioning (to most areas).
There are two workshop areas behind the offices which are of steel portal frame construction, under a pitched corrugated sheet roof with transparent roof lights, and feature mezzanine floors, two loading doors and WC facilities. Eaves heights approx. 3.2m and apex of approx. 5.2m. There is a three phase power supply, and gas supply to the buildings.
There is car parking provided to the front (four spaces) with gated access to the side leading to a large surfaced and self contained yard area suitable for open storage or further parking.
LOCATION
The premises are prominently situated fronting Whitehall Road to the East of Colchester City Centre on the well established Whitehall Industrial Estate.
Good access is available to the inner ring road network which links directly to the A12/A120 trunk roads providing easy access to Stanstead airport, the M25, and the east coast ports of Harwich and Felixstowe.
Nearby occupiers include; BEW Electrical, Travis Perkins, Rexel, Bannatyne's Health Club and PumpGym.
ACCOMMODATION
[Approximate Gross Internal Floor Areas]
Offices (Ground & First): 2,351 sq ft [218.4 sq m] approx.
Workshops: 5,164 sq ft [479.7 sq m] approx.
Mezzanine Floors: 1,467 sq ft [136.3 sq m] approx.
Total: 8,982 sq ft [834.4 sq m] approx.
TERMS
The premises are available For Sale Freehold, with vacant possession, at a guide price of £800,000 (No VAT).
SERVICE CHARGE
We are advised that no service charge is applicable.
BUSINESS RATES
We are advised that the premises have a rateable value, with effect from the 1st April 2023, of £48,000, therefore rates payable approx. £24,000. We recommend all parties make their own direct enquiries with the local rating authority.
ENERGY PERFORMANCE CERTIFICATE [EPC]
We have been advised that the premises fall within class D (90) of the energy performance assessment scale. A full copy of the EPC assessment and recommendation report is available from our office upon request.
VAT
The property is exempt from VAT. Prospective purchasers should therefore be aware that VAT will not be payable at the prevailing rate on the price.
LEGAL COSTS
Each party will bear their own legal costs.
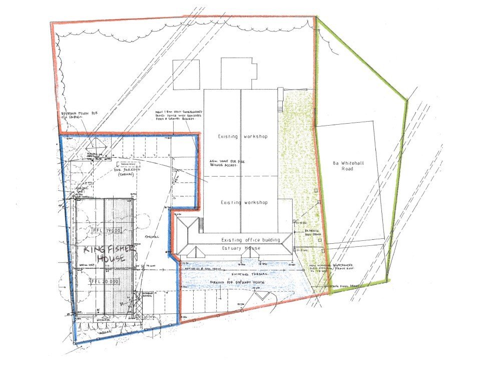
FLOOR PLAN
The floor plan is provided for indicative purposes only. The floor plan is not to scale and not to be relied upon.
ANTI-MONEY LAUNDERING REGULATIONS
AML Regulations require Fenn Wright to formally verify a purchaser's identity, residence, and source of funds prior to instructing solicitors.
RIGHTS OF WAY
There is a right of way to be provided across the front of the property to the neighbouring and new build unit Kingfisher House (where the vendor is relocating to) - shown shaded blue on the plan in pictures.
There is also a right of way to the right hand side of the premises to Unit 8A, Whitehall Road - shown shaded green on the the plan in pictures.
VIEWINGS STRICTLY BY APPOINTMENT VIA SOLE SELLING AGENTS:
Fenn Wright
T: 01206 854545
E: colchestercommercial@fennwright.co.uk
Summary
Key points
- Rare Freehold Opportunity
- Prominent Main Road Frontage
- Offices, Workshops & Mezzanine Floors
- Generous Rear Yard Area
- Established & Busy Industrial / Trade Location
- Contact
Fenn Wright
Tel: 01206 854545
Michael Moody
mcm@fennwright.co.uk
Mortgage Calculator
-
Down Payment
-
Loan Amount
-
Monthly Mortgage Payment
Contact Information
View Listings- Fenn Wright
- 01473 417714
Enquire About This Property
Similar Listings
- Industrial, Industrial Warehouse
- £600,000 pax & Price u/a
Industrial Warehouse: Sale/Lease, Burnley, BB10 2TT
Unit 2 Widow Hill Court Heasandford Industrial Estate, Burnley, Lancashire, BB10 2TT, Unit 2 Widow Hill Court, Burnley, Lancashire, Burnley, UK, BB10 2TT- 143,051 sq ft
- Industrial
Station Road Garage, Station Road, Adwick Le Street, Doncaster, DN6 7BE
Station Road Garage, Station Road, Adwick Le Street, Doncaster, DN6 7BE, Doncaster, Adwick-Le-Street- 160 sqm
Contact me

- Craven Wildsmith
- View Listings
- Investment
Marvels Lane Clinic, 37 Marvels Lane, Bromley, London, SE12 9PN
Marvels Lane Clinic, 37 Marvels Lane, Bromley, London, SE12 9PN, London, Bromley- 10000 sqft
- Investment
114E Blackstock Road, Islington, London, N4 2DR
114E Blackstock Road, Islington, London, N4 2DR, London, Islington- 500 sqft
- Investment
1 – 3 Marconi Place, Friern Barnet, London, N11 1PE
1 - 3 Marconi Place, Friern Barnet, London, N11 1PE, London, Friern Barnet- 4988 sqft
- Other
Car Park Space, 32 Ewart Grove, Emerald Apartments, Wood Green, London, N22 5NU
Car Park Space, 32 Ewart Grove, Emerald Apartments, Wood Green, London, N22 5NU, London, Wood Green- 135 sqft
- Other
Car Park Space, 32 Ewart Grove, Emerald Apartments, Wood Green, London, N22 5NU
Car Park Space, 32 Ewart Grove, Emerald Apartments, Wood Green, London, N22 5NU, London, Wood Green- 135 sqft
Contact me

- Fenn Wright
- View Listings

- Fenn Wright
- View Listings











