- Home
- For Sale
- Industrial
- Centre Park, Main Road, Frating, Colchester, CO7 7DL
Overview
- Industrial
- Property Type
- 55926 - 55926
- sq ft
Description
Location
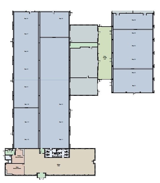
Immaculately presented - a substantial self contained and gated site of approx. 4.8 acres. To the front / entrance of the site is a large car parking area with approx. 120 marked bays. Two gated entrances provide access to the majority of the site which features three main buildings providing a mix of industrial / warehouse and office (c.5,000 sq ft) accommodation together with a large area of hard standing. Each of the units are steel framed and benefit from multiple large loading doors, lighting, with eaves heights from approx. 5.4m to 7.9m, and 2.3, 6.3, and 7 ton overhead gantry cranes.
Centre Park is prominently located on Main Road in Frating with excellent access to the A120 (via the A133) and A12 trunk roads which provide easy traffic links to Stansted Airport and the East Coast Ports of Harwich & Felixstowe. Frating is located approx. six miles to the South East of Colchester, 32 miles East of Chelmsford and 20 miles South West of Ipswich. Neighbouring occupiers include: Manheim Car Auctions & TBS (Penguin Book Distributors).
ACCOMMODATION
(Approximate Gross Internal Floor Areas]
Unit 1: 23,475 sq ft [2,180.9 sq m]
Office: 5,000 sq ft [464.5 sq m]
Unit 2: 8,253 sq ft [766.7 sq m]
Link: 1,561 sq ft [145.0 sq m]
Unit 3: 16,980 sq ft [1,577.5 sq m]
Mezz: 657 sq ft [61.0 sq m]
Total: 55,926 sq ft [5,195.6 sq m]
Plus a separate surfaced yard of approx. 25,000 sq ft (0.57 Acres)
TERMS
The premises are available For Sale Freehold at £7,800,000 plus VAT.
SERVICE CHARGE
We are advised that no service charge is applicable.
BUSINESS RATES
We are advised that the premises have a rateable value, with effect from the 1st April 2023, of £212,000. Therefore estimated rates payable of approximately £116,000 for the current year. Interested parties are advised to make their own enquiries.
PLANNING
We are advised that the site benefits from an existing, and well established, B2 planning consent. Interested parties are however advised to make their own enquiries with the planning department at Tendring District Council.
ENERGY PERFORMANCE CERTIFICATE [EPC]
We have been advised that the premises have been assessed with current ratings between A (23) and C (55) of the energy performance assessment scale.
Full copies of the EPC assessments are available upon request.
VAT
VAT will be applicable on the sale price. All prices are exclusive of VAT under the Finance act 1989.
ANTI-MONEY LAUNDERING REGULATIONS
Anti-Money Laundering Regulations require Fenn Wright to formally verify a prospective purchasers identity prior to the instruction of solicitors.
Viewings strictly by appointment via sole agents Fenn Wright.
01206 85 45 45
colchestercommercial@fennwright.co.uk
Summary
Key points
- Substantial Concrete Yard Areas
- Located Directly Adjacent A120
- Busy Main Road Frontage
- Excellent Parking & Loading Areas
- Approx. 4.8 Acre Site
- EPC Ratings A-C
- Very well presented throughout
- Contact
Fenn Wright
Tel: 01206 854545
Michael Moody
mcm@fennwright.co.uk
Mortgage Calculator
-
Down Payment
-
Loan Amount
-
Monthly Mortgage Payment
Contact Information
View Listings- Fenn Wright
- 01473 417714
Enquire About This Property
Similar Listings
- Industrial, Industrial Warehouse
- £600,000 pax & Price u/a
Industrial Warehouse: Sale/Lease, Burnley, BB10 2TT
Unit 2 Widow Hill Court Heasandford Industrial Estate, Burnley, Lancashire, BB10 2TT, Unit 2 Widow Hill Court, Burnley, Lancashire, Burnley, UK, BB10 2TT- 143,051 sq ft
- Industrial
Station Road Garage, Station Road, Adwick Le Street, Doncaster, DN6 7BE
Station Road Garage, Station Road, Adwick Le Street, Doncaster, DN6 7BE, Doncaster, Adwick-Le-Street- 160 sqm
Contact me

- Craven Wildsmith
- View Listings
- Investment
Marvels Lane Clinic, 37 Marvels Lane, Bromley, London, SE12 9PN
Marvels Lane Clinic, 37 Marvels Lane, Bromley, London, SE12 9PN, London, Bromley- 10000 sqft
- Investment
114E Blackstock Road, Islington, London, N4 2DR
114E Blackstock Road, Islington, London, N4 2DR, London, Islington- 500 sqft
- Investment
1 – 3 Marconi Place, Friern Barnet, London, N11 1PE
1 - 3 Marconi Place, Friern Barnet, London, N11 1PE, London, Friern Barnet- 4988 sqft
- Other
Car Park Space, 32 Ewart Grove, Emerald Apartments, Wood Green, London, N22 5NU
Car Park Space, 32 Ewart Grove, Emerald Apartments, Wood Green, London, N22 5NU, London, Wood Green- 135 sqft
- Other
Car Park Space, 32 Ewart Grove, Emerald Apartments, Wood Green, London, N22 5NU
Car Park Space, 32 Ewart Grove, Emerald Apartments, Wood Green, London, N22 5NU, London, Wood Green- 135 sqft
Contact me

- Fenn Wright
- View Listings

- Fenn Wright
- View Listings




































