Carlton Mill, 3 Sands Lane, Carlton-Le-Moorland, Lincoln, LN5 9HJ
Address
Open on Google Maps-
City: Lincoln
-
County: Lincolnshire
-
Area: Carlton-Le-Moorland
Overview
- Residential
Details
Updated on December 14, 2025 at 6:45 am-
Property Type Residential
Description
Location
Development opportunity
Period cottage with workshop and range of outbuildings
Sat in approximately half an acre
Popular village location
Further land available by separate negotiation
Development opportunity – Period cottage with workshop and range of outbuildings – Sat in approximately half an acre – Popular village location – Further land available by separate negotiation
Detailed Description
A unique opportunity to acquire a cottage with adjoining office and workshop along with a further detached L-Shaped outbuilding split into several store rooms and a workshop with enclosed courtyard.
The plot is approximately half an acre and includes a generous garden to the rear of the cottage and to the front is a large driveway providing plenty of off street parking.
This represents an ideal development opportunity for residential or commercial use subject to gaining the relevant planning consents. There is also potential to acquire further land by separate negotiation.
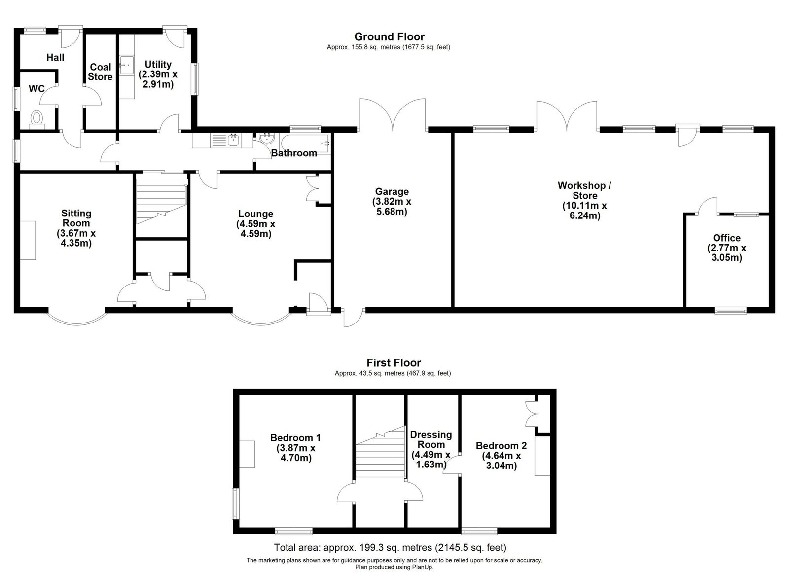
COTTAGE
Accommodation
Ground Floor
Entrance Hall
Front entrance door, double glazed window to front, access to coal store.
WC
Window to side, WC.
Sitting Room
Double glazed window to rear, fireplace
Kitchen
Double glazed window to front, stainless steel sink, storage units.
Utility
Entrance door to front, double glazed window to front, sink, base units, space for washing machine.
Lounge
Double glazed window to rear, fireplace.
Bathroom
Double glazed window to front, bath with shower over,
First Floor
Landing
Bedroom One
Double glazed windows to front and side, radiator.
Dressing Room
Door leading to:
Bedroom Two
Double glazed window to front, built in cupboard.
OUTSIDE
Garage (3.82m x 5.68m)
Double doors to the front, personnel door leading to the rear.
Workshop / Store (10.11m x 6.24m)
Double doors and personnel door to front, door leading to:
Office (2.77m x 3.05m)
DETACHED OUTBUILDING
Workshop 2 (10.04m x 4.72m)
Store One (5.34m x 4.76m)
Store Two (4.52m x 4.61m)
Store Three (5.50m x 3.67m)
Store Four (6.41m x 5.53m)
Store Five (5.50m x 5.55m)
COUNCIL TAX
Band B
AGENTS NOTE
Land coloured blue on the plan is available by separate negotiation.
MOBILE
We understand from the Ofcom website there is likely mobile coverage from EE, O2, Three and Vodafone.
BROADBAND
We understand from the Ofcom website that standard and superfast broadband is available at this property with a max download speed of 80 Mbps and an upload speed of 20 Mbps.
BUYER IDENTITY CHECK
Please note that prior to acceptance of any offer, Brown&CoJHWalter are required to verify the identity of the buyer to comply with the requirements of the Money Laundering, Terrorist Financing and Transfer of Funds (Information on the Payer) Regulations 2017. Further, when a property is for sale by tender, an ID check must be carried out before a tender can be submitted. We are most grateful for your assistance with this.
VIEWING PROCEDURE
Viewing of this property is strongly recommended. If you would like to view the property, please contact a member of the agency team on 01522 504304.
Summary
Key points
- Development opportunity
- Period cottage with workshop and range of outbuildings
- Sat in approximately half an acre
- Popular village location
- Further land available by separate negotiation
Contact
Brown & Co
Tel: 01522 504 355
James Drabble
james.drabble@brown-co.com
https://www.brown-co.com
EPC
other/1404700_23f752h57dgsh8vp.pdf
Property Documents
Schedule a Tour
Your information
Contact Information
View Listings- Brown & Co
- 01553 778068
Enquire About This Property
Similar Listings
50 Thrybergh Hall Road, Rawmarsh, Rotherham, S62 5JY
50 Thrybergh Hall Road, Rawmarsh, Rotherham, S62 5JY, ROTHERHAM, South Yorkshire, RawmarshLocation A newly refurbished unfurnished 3 bed semi detached house. The property...
29 Childers Street, Doncaster, DN4 5BZ
29 Childers Street, Doncaster, DN4 5BZ, Doncaster, South YorkshireLocation Within close proximity to the city centre. This two bedroom mid...
Flat 1 34 Highfield Road, Doncaster, DN1 2LA
Flat 1 34 Highfield Road, Doncaster, DN1 2LA, Doncaster, South YorkshireLocation Spacious one bedroom flat within walking distance to the city centre....
24A Hazel Avenue, Auckley, Doncaster, DN9 3HE
24A Hazel Avenue, Auckley, Doncaster, DN9 3HE, Doncaster, South Yorkshire, AuckleyLocation This modern four bedroom detached house has the benefit of gas...
34 Arthur Road, Holloway, London, N7 6DR
34 Arthur Road, Holloway, London, N7 6DR, London, HollowayLocation Arthur Road comprises fine Victorian town houses. This property is the...
Flat 16, Century Close, Ambassador Court, Hendon, London, NW4 2EE
Flat 16, Century Close, Ambassador Court, Hendon, London, NW4 2EE, London, HendonLocation Well presented 3 bedroom, 2nd floor apartment in excellent decorative order....
35 Frobisher Road, Harringay, London, N8 0QT
35 Frobisher Road, Harringay, London, N8 0QT, London, HarringayLocation Description GROUND RENT INVESTMENT ONLY – PROPERTY NOT TO LIVE IN...
21-23 Friar Gate, Derby, DE1 1BX
21-23 Friar Gate, Derby, DE1 1BX, Derby, DerbyshireLocation Description Highly prominent mixed use investment. Was producing £123,220 p.a. (c£100,000...
118 Osmaston Road, Derby, DE1 2RD
118 Osmaston Road, Derby, DE1 2RD, Derby, DerbyshireLocation Description Converted 2024 and fully let producing £60,660 per annum. 6x...