Overview
- Land
- Property Type
- 1 - 1
- sq ft
Description
Location
The site extends to approximately 1 acre and includes a range of former agricultural buildings and yard fronting onto Henny Road. The property benefits from full planning consent under Planning Ref. 23/02831/FUL (Braintree District Council) for the conversion of three agricultural buildings to provide two four bedroom properties and one five bedroom dwelling.
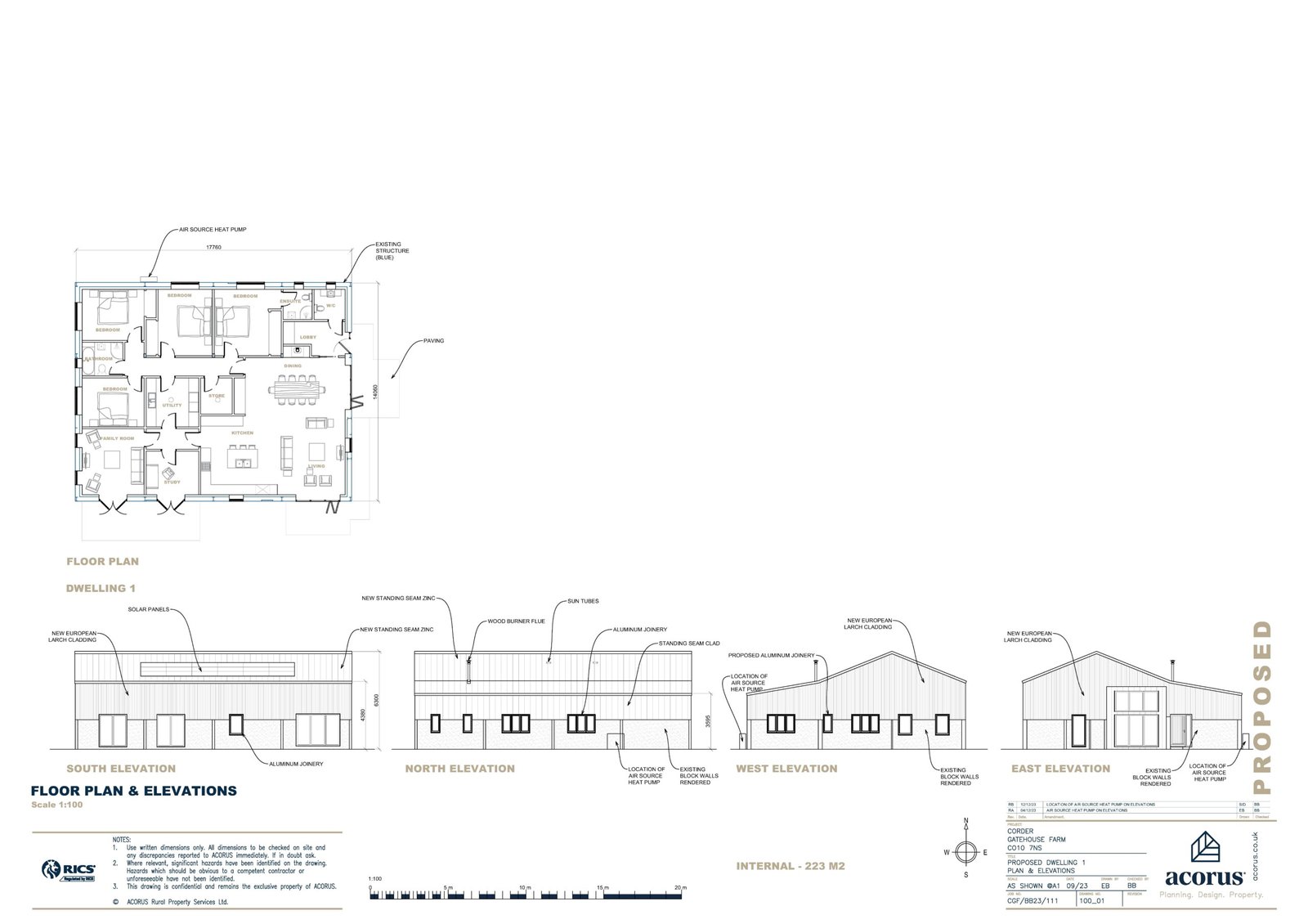
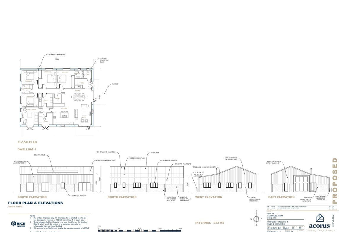
Dwelling 1 - The conversion of a modern steel portal frame building to provide a detached four bedroom home extending to approximately 223 m2. The proposals include a large open-plan kitchen and living area, study, family room and four double bedrooms (one ensuite) set over one floor. A range of redundant piggeries are to be demolished to provide gardens to the south.
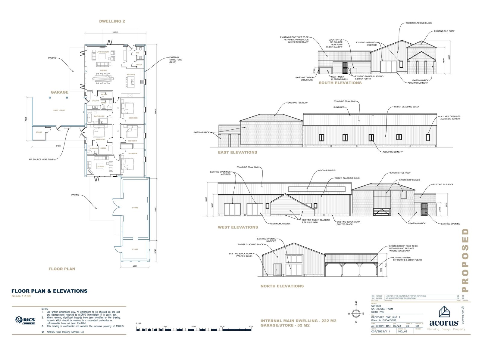
Dwelling 2 - The conversion of a part modern, steel framed building and part traditional brick buildings, to provide a detached four bedroom home extending to approximately 224 m2. The development will provide open-plan accommodation, comprising a kitchen/dining/family room and four double bedrooms (one ensuite). Outside there will be covered parking and a range of outbuildings and stores.
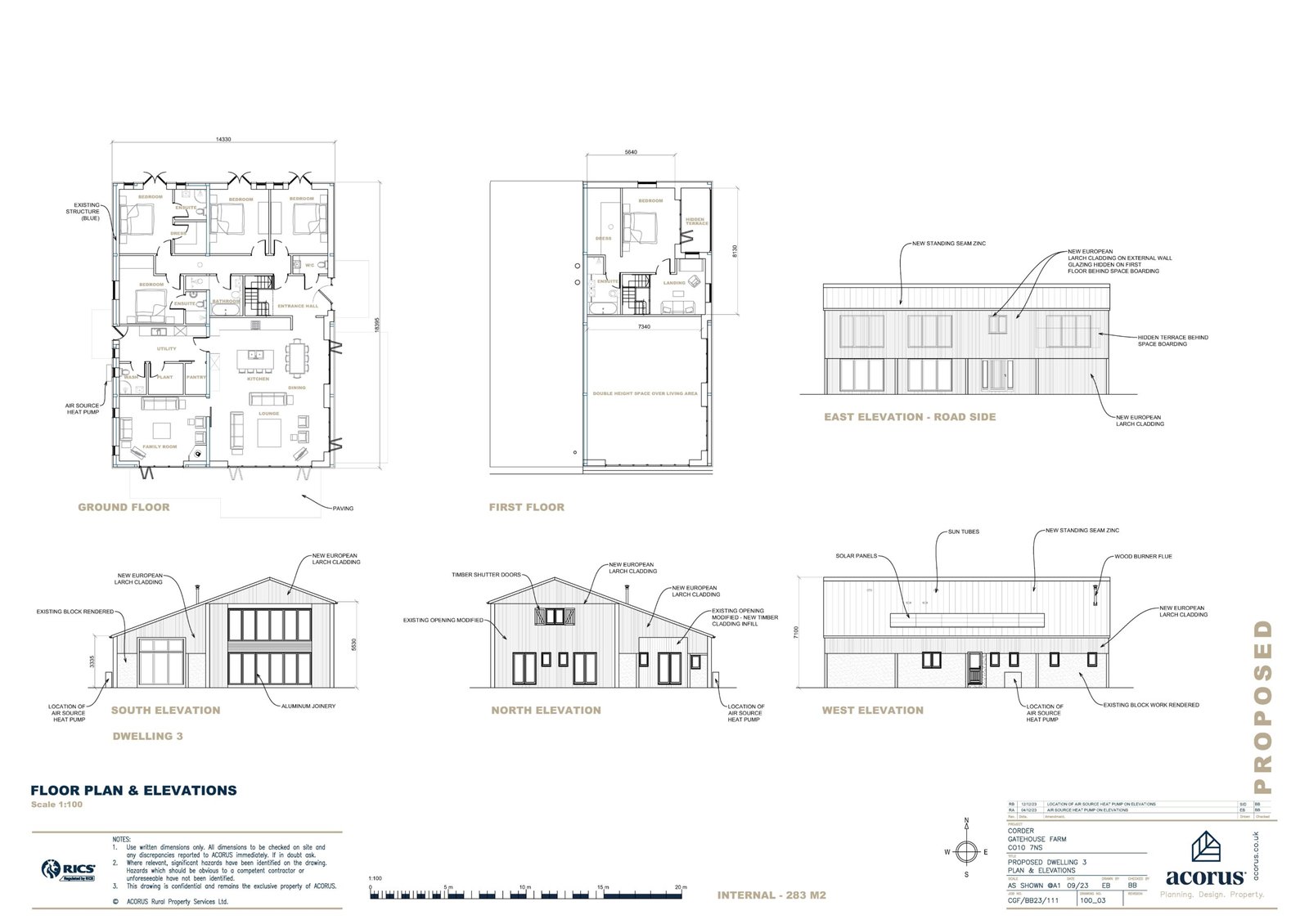
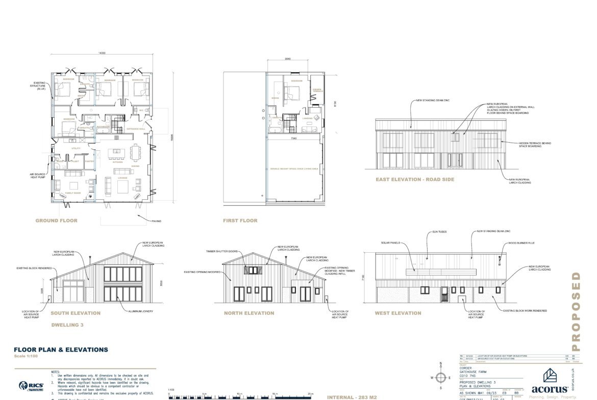
Dwelling 3 - Located to the south of the site, the third dwelling occupies the largest plot and benefits from independent access and a private driveway. The proposed dwelling is a conversion of a Dutch Barn, providing spacious accommodation extending to 283 m2 set over two floors. The ground floor provides an open-plan kitchen and living area, family room, utility and four double bedrooms (two ensuite). To the first floor is a large principal suite with double bedroom, dressing room, bathroom and a hidden terrace.
LOCATION
The site lies between the villages of Henny Street and Middleton, and benefits from views towards the River Stour. The market town of Sudbury lies 2 miles to the north and provides a wide range of services. The nearby branch stations at Sudbury and Bures offer regular rail services into London Liverpool Street, via Marks Tey, with journey times of about 1hr 25 min.
ACCESS
A right of way will be granted over the existing access road, with the buyer and future owners contributing to the cost of maintenance. A secondary access leads directly off Henny Road and serves the third dwelling.
RESTRICTIVE COVENANT
A Restrictive Covenant will be placed on the site for the benefit of the seller's adjoining property. The covenant will restrict the use of the site to a maximum of three private dwellings and ancillary uses, and will specifically preclude any commercial or business use.
SERVICES
Mains water and electricity are either connected to the site or are available nearby. The proposals for drainage are to package treatment plants.
TENURE
Vacant possession will be given on completion of sale.
VAT
The seller has not elected to register the property for VAT and no VAT will be chargeable on the sale price.
LOCAL AUTHORITY
Braintree District Council
Development Management
Causeway House
Bocking End
Braintree
CM7 9HB
Tel: 01376 557779
Email: planning@braintree.gov.uk
TERMS
Offers in the region of £850,000 are invited for the freehold interest.
Summary
Key points
- Site approaching 1 acre
- Full planning consent for residential development
- Proposal for 3 individually designed properties
- Close to the market town of Sudbury
- Contact
Fenn Wright
Tel: 01206 216544
David Ward
dw@fennwright.co.uk
Mortgage Calculator
-
Down Payment
-
Loan Amount
-
Monthly Mortgage Payment
Contact Information
View Listings- Fenn Wright
- 01473 417714
Enquire About This Property
Similar Listings
- Industrial, Industrial Warehouse
- £600,000 pax & Price u/a
Industrial Warehouse: Sale/Lease, Burnley, BB10 2TT
Unit 2 Widow Hill Court Heasandford Industrial Estate, Burnley, Lancashire, BB10 2TT, Unit 2 Widow Hill Court, Burnley, Lancashire, Burnley, UK, BB10 2TT- 143,051 sq ft
- Industrial
Station Road Garage, Station Road, Adwick Le Street, Doncaster, DN6 7BE
Station Road Garage, Station Road, Adwick Le Street, Doncaster, DN6 7BE, Doncaster, Adwick-Le-Street- 160 sqm
Contact me

- Craven Wildsmith
- View Listings
- Investment
Marvels Lane Clinic, 37 Marvels Lane, Bromley, London, SE12 9PN
Marvels Lane Clinic, 37 Marvels Lane, Bromley, London, SE12 9PN, London, Bromley- 10000 sqft
- Investment
114E Blackstock Road, Islington, London, N4 2DR
114E Blackstock Road, Islington, London, N4 2DR, London, Islington- 500 sqft
- Investment
1 – 3 Marconi Place, Friern Barnet, London, N11 1PE
1 - 3 Marconi Place, Friern Barnet, London, N11 1PE, London, Friern Barnet- 4988 sqft
- Other
Car Park Space, 32 Ewart Grove, Emerald Apartments, Wood Green, London, N22 5NU
Car Park Space, 32 Ewart Grove, Emerald Apartments, Wood Green, London, N22 5NU, London, Wood Green- 135 sqft
- Other
Car Park Space, 32 Ewart Grove, Emerald Apartments, Wood Green, London, N22 5NU
Car Park Space, 32 Ewart Grove, Emerald Apartments, Wood Green, London, N22 5NU, London, Wood Green- 135 sqft
Contact me

- Fenn Wright
- View Listings

- Fenn Wright
- View Listings






