Overview
- Retail
- Property Type
- 7607 - 15281
- sq ft
Description
Location
Brook Park West is a vibrant development featuring prominent retail and leisure facilities. The park is home to well-known brands like Lidl, Pets at Home, Marks & Spencer Foodhall, McDonald's, Costa Coffee, and Marston's, ensuring excellent customer traffic and a dynamic shopping environment. Additionally, it is situated opposite Brook Park which features B&Q, Currys, Tesco extra, KFC and Pizza Hut.
The site offers convenient access to Clacton Town Centre via the A133 and direct links to the A120 and A12, connecting to Ipswich, Colchester, and London . Clacton-on-Sea train station is just a short car journey away (approx. 6 mins), offering excellent transport links to Colchester (30 mins) and London Liverpool Street (90 mins).
DESCRIPTION
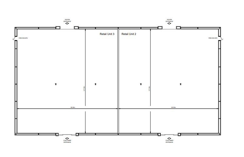
The retail units are located next to the newly opened M&S food store and feature a ground floor open plan layout with an optional floating mezzanine floor. Units 2 and 3 are connected along their front elevations and thus appear as one block but can be easily split into two units.
The front of the units are approx. 9.9m high with the roof sloping to the rear approx. 8.7m high. A rear shutter door provides convenient access for goods and equipment.
There are 110 car spaces shared between Unit 2 and 3 and the Costa drive Thru.
ACCOMMODATION
[Approximate Gross Internal Floor Areas]
Unit 2: 7,607 sq ft [706.71 sq m] approx. £130,000
Unit 3: 7,674 sq ft [712.96 sq m] approx. £130,000
Units 2/3: 15,281 sq ft [1,419.6 sq m] approx. £260,000
TERMS
The premises are available to let on a new effective full repairing and insuring lease, with lease length and terms to be agreed, subject to a minimum unbroken lease term of ten years, at a rent as outlined above,
SERVICE CHARGE
A service charge may be applicable to cover costs of the maintenance of the communal external areas. Exact figures to be confirmed.
BUSINESS RATES
The premises have not yet been accessed.
BUILDINGS INSURANCE
The buildings insurance is to be arranged by the landlord with the cost to be recovered from the tenant.
ENERGY PERFORMANCE CERTIFICATE [EPC]
A full copy of the EPC assessment and recommendation report will be available upon completion, from our office upon request.
VAT
VAT will be applicable on the rent and service. All rents and prices are exclusive of VAT under the Finance act 1989.
LEGAL COSTS
Each party will bear their own legal costs.
ANTI-MONEY LAUNDERING REGULATIONS
Anti-Money Laundering Regulations require Fenn Wright to formally verify prospective purchaser's identity, residence and source of funds prior to instructing solicitors.
VIEWINGS STRICTLY BY APPOINTMENT VIA LETTING AGENTS:
Fenn Wright
T: 01206 854545
E: colchestercommercial@fennwright.co.uk
Summary
Key points
- Brand New Retail Warehouse Units In A Prime Location
- Available Early 2026
- Prime Location in a vibrant retail Park
- Modern Spec New Build Units
- Generous On Site parking
- Easy Access to A133/A120/A12
- Adjacent M&S, Lidl and Pets at Home
- Contact
Fenn Wright
Tel: 01206 854545
Jeremy Newman
jpn@fennwright.co.uk
Contact Information
View Listings- Fenn Wright
- 01473 417714
Enquire About This Property
Similar Listings
- Commercial
- £84,338 pa
00745001721009
Kings Terrace London NW1 0LP, 17-21 Kings Terrace London, London, London Borough of Camden, UK, NW1 0PQ- 3373 Sq Ft
Contact me

- Movehut
- View Listings
- Commercial
- £84,338 pa
Ground Floor Office: London Borough of Camden
Kings Terrace London NW1 0LP, 17-21 Kings Terrace London, London, London Borough of Camden, UK, NW1 0PQ- 3373 Sq Ft
Contact me

- Movehut
- View Listings
- Office
- £17,500 per annum
East Laith Gate, 2b Kings Mews, Doncaster, DN1 1JD
East Laith Gate, 2b Kings Mews, Doncaster, DN1 1JD, Doncaster, South Yorkshire- 1435.47 sqft
Contact me

- Craven Wildsmith
- View Listings
- Office
- £8,400 per annum
M & M Business Park, Kirk Sandall, Doncaster, DN3 1HR
M & M Business Park, Kirk Sandall, Doncaster, DN3 1HR, Doncaster, Kirk Sandall- 944 sqft
Contact me

- Craven Wildsmith
- View Listings
- Office
- £6,700 per annum
Stone Cross House, Doncaster Road, Kirk Sandall, Doncaster, DN3 1HR
Stone Cross House, Doncaster Road, Kirk Sandall, Doncaster, DN3 1HR, Doncaster, South Yorkshire, Kirk Sandall- 823 sqft
Contact me

- Craven Wildsmith
- View Listings
- Office
- £1,500 per month
Unit 5, Jetstream Drive, Doncaster, DN9 3QS
Unit 5, Jetstream Drive, Doncaster, DN9 3QS, Doncaster, South Yorkshire- 116.32 sqm
Contact me

- Craven Wildsmith
- View Listings
- Office
- £150 per month
Parking At Unit 5, Jetstream Drive, Doncaster, DN9 3QS
Parking At Unit 5, Jetstream Drive, Doncaster, DN9 3QS, Doncaster, South YorkshireContact me

- Craven Wildsmith
- View Listings
- Office
- £1,000 - £4,000 per month
Frances Street Off East Laith Gate, 1 Kings Mews, Doncaster, DN1 1JB
Frances Street Off East Laith Gate, 1 Kings Mews, Doncaster, DN1 1JB, Doncaster, South Yorkshire- 1026 sqft
Contact me

- Craven Wildsmith
- View Listings
- Office
- £1,750 - £3,700 per month
East Laith Gate, 2c & 2d Kings Mews, Doncaster, DN1 1JD
East Laith Gate, 2c & 2d Kings Mews, Doncaster, DN1 1JD, Doncaster, South Yorkshire- 1800 sqft
Contact me

- Craven Wildsmith
- View Listings
Contact me

- Fenn Wright
- View Listings

- Fenn Wright
- View Listings




