Search
- Home
- For Rent
- Industrial
- BOUNDARY ROAD, UNITS 1-3 5 6 7 8 9 10 11 & 12, LYTHAM, FY8 5LT
Overview
- Industrial
- Property Type
Description
Location
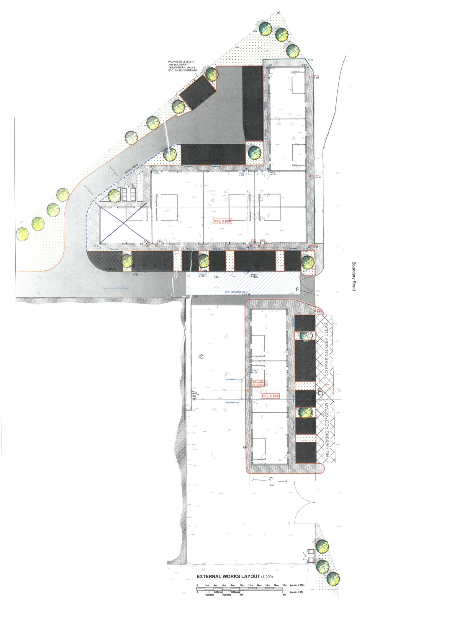
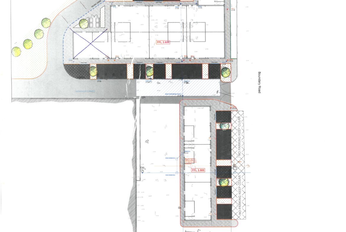
The new build units comprise:
Open plan commercial units
Roller shutter loading door and personnel door
WC
11 no. units available - Units 1-3 being marketed as one combined unit.
Each unit has minimum 3 x parking spaces allocated.
Each unit has a loading bay.
Secure site with gated access
Some units front onto Boundary Road and some accessed from within the business park.
Summary
Key points
- HIGH QUALITY NEW BUILD BUSINESS UNITS
- LOCATED WITHIN A WELL KNOWN BUSINESS PARK AREA, OFF BOUNDARY ROAD, LYTHAM
- 11 NO. UNITS AVAILABLE
- UNITS 1-3 MARKETED AS ONE COMBINED UNIT
- 8 X INDIVIDUAL UNITS AVAILABLE
- 3 X CAR PARKING SPACES PER UNIT (MINIMUM)
- LOADING AREA TO EACH UNIT
- ROLLER SHUTTER DOOR & PERSONNEL DOOR
- SECURE SITE WITH GATED ACCESS OR ACCESSED OFF BOUNDARY ROAD
- ALDI & LIDL SUPERMARKETS, MCDONALDS, PETROL STATION PLUS OTHER ESTABLISHED BUSINESSES & OPERATORS CLOSE BY
BOUNDARY ROAD, UNITS 1-3 5 6 7 8 9 10 11 & 12, LYTHAM, FY8 5LT
Contact Information
View Listings- Duxburys Commercial
- 01253 316 919
Enquire About This Property
Similar Listings
- Office
- £17,500 per annum
East Laith Gate, 2b Kings Mews, Doncaster, DN1 1JD
East Laith Gate, 2b Kings Mews, Doncaster, DN1 1JD, Doncaster, South Yorkshire- 1435.47 sqft
Contact me

- Craven Wildsmith
- View Listings
- Office
- £8,400 per annum
M & M Business Park, Kirk Sandall, Doncaster, DN3 1HR
M & M Business Park, Kirk Sandall, Doncaster, DN3 1HR, Doncaster, Kirk Sandall- 944 sqft
Contact me

- Craven Wildsmith
- View Listings
- Office
- £6,700 per annum
Stone Cross House, Doncaster Road, Kirk Sandall, Doncaster, DN3 1HR
Stone Cross House, Doncaster Road, Kirk Sandall, Doncaster, DN3 1HR, Doncaster, South Yorkshire, Kirk Sandall- 823 sqft
Contact me

- Craven Wildsmith
- View Listings
- Office
- £1,500 per month
Unit 5, Jetstream Drive, Doncaster, DN9 3QS
Unit 5, Jetstream Drive, Doncaster, DN9 3QS, Doncaster, South Yorkshire- 116.32 sqm
Contact me

- Craven Wildsmith
- View Listings
- Office
- £150 per month
Parking At Unit 5, Jetstream Drive, Doncaster, DN9 3QS
Parking At Unit 5, Jetstream Drive, Doncaster, DN9 3QS, Doncaster, South YorkshireContact me

- Craven Wildsmith
- View Listings
- Office
- £1,000 - £4,000 per month
Frances Street Off East Laith Gate, 1 Kings Mews, Doncaster, DN1 1JB
Frances Street Off East Laith Gate, 1 Kings Mews, Doncaster, DN1 1JB, Doncaster, South Yorkshire- 1026 sqft
Contact me

- Craven Wildsmith
- View Listings
- Office
- £1,750 - £3,700 per month
East Laith Gate, 2c & 2d Kings Mews, Doncaster, DN1 1JD
East Laith Gate, 2c & 2d Kings Mews, Doncaster, DN1 1JD, Doncaster, South Yorkshire- 1800 sqft
Contact me

- Craven Wildsmith
- View Listings
- Office
- £1,150 per month
Offices 3 And 4, Queens Road, Queens Road Design Centre, Town Centre, Doncaster, DN1 2NH
Offices 3 And 4, Queens Road, Queens Road Design Centre, Town Centre, Doncaster, DN1 2NH, Doncaster, Town Centre- 86 sqm
Contact me

- Craven Wildsmith
- View Listings
- Office
- £650 per month
Office 6, Queens Road, Queens Road Design Centre, Town Centre, Doncaster, DN1 2NH
Office 6, Queens Road, Queens Road Design Centre, Town Centre, Doncaster, DN1 2NH, Doncaster, South Yorkshire, Town Centre- 53 sqm
Contact me

- Craven Wildsmith
- View Listings
Contact me

- Duxburys Commercial
- View Listings

- Duxburys Commercial
- View Listings



