Overview
- Land
- Property Type
- 0.41 - 0.41
- sq ft
Description
Location
The site is approx. 0.409 Acres (0.166 ha) and will benefit from all mains services capped at the boundary.
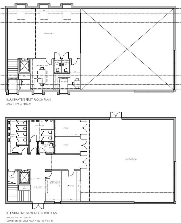
Indicative plans, and elevations, have been prepared for an impressive detached community building of approx. 4,500 sq ft (418 sq m).
The site is prominently located at the entrance to an impressive new 300 dwelling development by Bovis Homes called 'Coggeshall Mill' and is accessed via a newly constructed estate road called Bayes Avenue.
LAND
[Approximate Area]
Total 0.409 Acres [0.166 ha] approx.
Note: These areas are provided by our client. We recommend any interested parties conduct their own measured survey as part of their due-diligence.
TERMS
The site is available to purchase freehold. Offers are invited in writing to the agent.
SERVICE CHARGE
We are advised that no service charge will be applicable.
RESTRICTIVE COVENANT
The purchaser will be required to enter in to a deed of covenant with the vendor. Under which the purchaser, for the first five years of ownership, will be required to obtain the vendors prior written consent for any planning application or change of use. This is in the interests of the wider development and neighbouring residential occupiers.
PLANNING
The premises have consent for Nursery / Community facilities. It is expected for this to incorporate use class E (f) Creche, day nursery or day centre (not including a residential use) and F2 (b) Halls or meeting places for the principal use of the local community.
The planning consent provides hours restrictions of 08:00 to 22:00 in order to protect the residential amenity of the area.
Application No: 20/00038/REM. Further details available : https://publicaccess.braintree.gov.uk/online-applications/applicationDetails.do?keyVal=Q3SPTUBFK8P00&activeTab=summary
Note: Alternative uses may be permitted subject to planning.
We recommend that interested parties make their own enquiries with the local planning authority, Braintree District Council, to discuss their requirements.
VAT
VAT will be applicable on the price.
All prices are exclusive of VAT under the Finance Act 1989.
ANTI-MONEY LAUNDERING REGULATIONS
Anti-Money Laundering Regulations require Fenn Wright to formally verify prospective purchaser's identity, residence and source of funds prior to instructing solicitors.
VIEWINGS STRICTLY BY APPOINTMENT VIA SOLE SELLING AGENTS:
Fenn Wright
T: 01206 854545
E: colchestercommercial@fennwright.co.uk
Summary
Key points
- Development Site Suitable For Various Uses S.T.P.
- Adjacent To A New Bovis Development of 300 Houses
- Great Design & Build Opportunity
- All Mains Services Capped At The Boundary
- Easy Access To A120 & A12
- Contact
Fenn Wright
Tel: 01206 854545
Michael Moody
mcm@fennwright.co.uk
Mortgage Calculator
-
Down Payment
-
Loan Amount
-
Monthly Mortgage Payment
Contact Information
View Listings- Fenn Wright
- 01473 417714
Enquire About This Property
Similar Listings
- Industrial, Industrial Warehouse
- £600,000 pax & Price u/a
Industrial Warehouse: Sale/Lease, Burnley, BB10 2TT
Unit 2 Widow Hill Court Heasandford Industrial Estate, Burnley, Lancashire, BB10 2TT, Unit 2 Widow Hill Court, Burnley, Lancashire, Burnley, UK, BB10 2TT- 143,051 sq ft
- Industrial
Station Road Garage, Station Road, Adwick Le Street, Doncaster, DN6 7BE
Station Road Garage, Station Road, Adwick Le Street, Doncaster, DN6 7BE, Doncaster, Adwick-Le-Street- 160 sqm
Contact me

- Craven Wildsmith
- View Listings
- Investment
Marvels Lane Clinic, 37 Marvels Lane, Bromley, London, SE12 9PN
Marvels Lane Clinic, 37 Marvels Lane, Bromley, London, SE12 9PN, London, Bromley- 10000 sqft
- Investment
114E Blackstock Road, Islington, London, N4 2DR
114E Blackstock Road, Islington, London, N4 2DR, London, Islington- 500 sqft
- Investment
1 – 3 Marconi Place, Friern Barnet, London, N11 1PE
1 - 3 Marconi Place, Friern Barnet, London, N11 1PE, London, Friern Barnet- 4988 sqft
- Other
Car Park Space, 32 Ewart Grove, Emerald Apartments, Wood Green, London, N22 5NU
Car Park Space, 32 Ewart Grove, Emerald Apartments, Wood Green, London, N22 5NU, London, Wood Green- 135 sqft
- Other
Car Park Space, 32 Ewart Grove, Emerald Apartments, Wood Green, London, N22 5NU
Car Park Space, 32 Ewart Grove, Emerald Apartments, Wood Green, London, N22 5NU, London, Wood Green- 135 sqft
Contact me

- Fenn Wright
- View Listings

- Fenn Wright
- View Listings




