Barnacle Hall, Shilton Lane, Barnacle, Coventry, CV1 4AN
Address
Open on Google Maps-
City: Coventry
-
County: Warwickshire
-
Area: Barnacle
Overview
- Residential
Details
Updated on December 13, 2025 at 6:34 pm-
Property Type Residential
Description
Location
A superb, detached Grade 2 Listed, rural retreat comprising of two characterful dwellings.
Barnacle Hall is a superb detached rural retreat comprising of two characterful dwellings, complemented with an extensive range of traditional brick and tiled buildings and an extensive range of portal framed livestock buildings, with a range of alternative uses, subject to the appropriate consents.
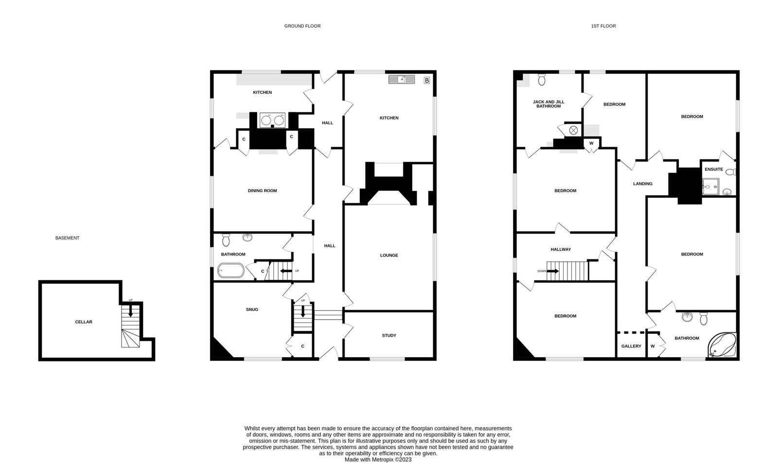
The property benefits from five bedrooms in Barnacle Hall and two bedrooms in the Oak House.
The property is Grade II listed.
The whole property totals 23.23 acres.
The origins of Barnacle Hall can be traced back to the medieval period, with parts of the building believed to date back to the 15th and 16th Centuries. Barnacle Hall is likely to have served as a Manor House for the local landowner and is a classic example of English vernacular architecture with timber framing and brick work. It is believed that there were additions made to The Hall during the 17th and 18th centuries, which introduced some Georgian elements, while at the same time, maintaining its medieval character.
Summary
Key points
- Grade II listed
- Whole property totals 23.23 acres
- For sale by Private Treaty
Contact
Brown & Co
Tel: 0116 289 4719
Richard Newey
richard.newey@brown-co.com
https://www.brown-co.com
EPC
other/1439821_bdqv6i80z43pzm8l.pdf
Property Documents
Schedule a Tour
Your information
Contact Information
View Listings- Brown & Co
- 01553 778068
Enquire About This Property
Similar Listings
50 Thrybergh Hall Road, Rawmarsh, Rotherham, S62 5JY
50 Thrybergh Hall Road, Rawmarsh, Rotherham, S62 5JY, ROTHERHAM, South Yorkshire, RawmarshLocation A newly refurbished unfurnished 3 bed semi detached house. The property...
29 Childers Street, Doncaster, DN4 5BZ
29 Childers Street, Doncaster, DN4 5BZ, Doncaster, South YorkshireLocation Within close proximity to the city centre. This two bedroom mid...
Flat 1 34 Highfield Road, Doncaster, DN1 2LA
Flat 1 34 Highfield Road, Doncaster, DN1 2LA, Doncaster, South YorkshireLocation Spacious one bedroom flat within walking distance to the city centre....
24A Hazel Avenue, Auckley, Doncaster, DN9 3HE
24A Hazel Avenue, Auckley, Doncaster, DN9 3HE, Doncaster, South Yorkshire, AuckleyLocation This modern four bedroom detached house has the benefit of gas...
34 Arthur Road, Holloway, London, N7 6DR
34 Arthur Road, Holloway, London, N7 6DR, London, HollowayLocation Arthur Road comprises fine Victorian town houses. This property is the...
Flat 16, Century Close, Ambassador Court, Hendon, London, NW4 2EE
Flat 16, Century Close, Ambassador Court, Hendon, London, NW4 2EE, London, HendonLocation Well presented 3 bedroom, 2nd floor apartment in excellent decorative order....
35 Frobisher Road, Harringay, London, N8 0QT
35 Frobisher Road, Harringay, London, N8 0QT, London, HarringayLocation Description GROUND RENT INVESTMENT ONLY – PROPERTY NOT TO LIVE IN...
21-23 Friar Gate, Derby, DE1 1BX
21-23 Friar Gate, Derby, DE1 1BX, Derby, DerbyshireLocation Description Highly prominent mixed use investment. Was producing £123,220 p.a. (c£100,000...
118 Osmaston Road, Derby, DE1 2RD
118 Osmaston Road, Derby, DE1 2RD, Derby, DerbyshireLocation Description Converted 2024 and fully let producing £60,660 per annum. 6x...