Overview
- Retail
- Property Type
- 1220 - 1255
- sq ft
Description
Location
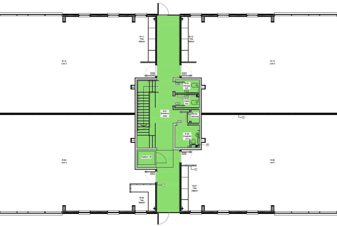
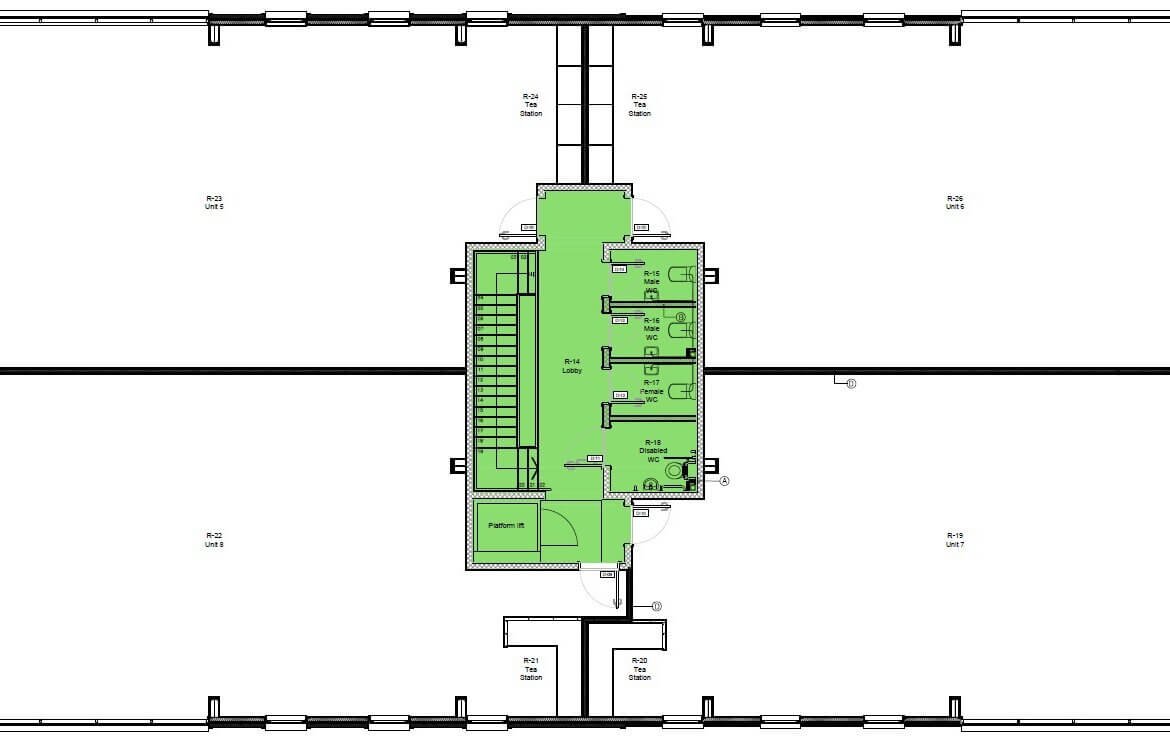
Aster House is built to a high standard of specification to include; clad and rendered elevations, double glazed aluminium windows and doors, suspended ceilings with recessed LED lighting, air sourced air conditioning and ventilation, raised access floors, fire alarm systems, kitchenettes & W/C facilities.
The ground floor offices benefit from their own private personnel doors, whilst access to the first floor offices are via a communal personnel door at ground level, with stairway and lift access to the first floor suites.
Externally, there are allocated car parking spaces for each suite, plus ample additional visitor parking available on site. Additional allocated spaces are available by negotiation.
There is also an on-site café.
Accommodation
Requirements from approx. 1,185 sq ft net internal can be accommodated. Each building is circa 9,860 sq ft with 4,930 sq ft per floor. Offices to be handed over in an open plan layout ready for the tenants / owners fit out. See table below for indicative sizing and pricing. We are advised that VAT is applicable.
2, Ground Floor: 1,185 sq ft [110.1 sq m] approx. UNDER OFFER
4, Ground Floor: 1,220 sq ft [113.3 sq m] approx. £325,000 or £20,000 pa To Let (6 parking spaces)
6, First Floor: 1,255 sq ft [116.6 sq m] approx. £335,000 or £20,000 pa To Let (6 parking spaces)
7, First Floor: 1,235 sq ft [114.7 sq m] approx. £335,000 or £20,000 pa To Let (6 parking spaces)
Terms
The offices are available for sale on 199-year ground leases at an initial peppercorn rent. Prices as outlined above. (subject to contract)
Alternatively the offices are available to let on new full repairing and insuring leases, lease length and terms to be agreed. Rents from £20,000 per annum (plus VAT). Further details available upon request.
We are advised that VAT will be applicable.
Service Charge
A service charge is applicable to cover the costs of the maintenance and repair of the external communal areas, exterior lighting, security, car park and landscaping.
Approx. cost for the current year is £4.30 per sq ft (plus VAT).
Buildings Insurance
This will be arranged by the landlord with the cost to recovered from the occupiers of the building.
VAT
We have been advised that VAT is applicable on the rent and purchase price.
Interested parties are advised to consult their professional advisors as to their liabilities, if any, in this direction.
Business Rates
The available offices are still pending individual assessments.
However, based on assessments for other offices within Aster House, rateable values are likely to be in the region of £12.50 - £16.50 per sq ft, therefore rates payable likely to be in the region of £6.20 - £8.20 per sq ft per annum.
Interested parties are advised to make their own enquiries with the local rating authority to confirm their liabilities in this direction.
Energy Performance Certificate (EPC)
We have been advised that the offices fall within classes A & B (24-27) of the energy performance assessment scale.
The EPC assessments and recommendation reports are available from our office upon request.
Viewings Strictly By Appointment Via Sole Agents:
Fenn Wright
01206 85 45 45
Colchestercommercial@fennwright.co.uk
Summary
Key points
- New Build High Specification Offices
- LED Recessed Lighting & High Speed Broadband
- Raised Access Floors
- Air Sourced Air Conditioning & Heating
- Generous On Site Car Parking
- Easy Access to A120
- Contact
Fenn Wright
Tel: 01206 854545
Edward Nolan
ejn@fennwright.co.uk
Contact Information
View Listings- Fenn Wright
- 01473 417714
Enquire About This Property
Similar Listings
- Office
- £17,500 per annum
East Laith Gate, 2b Kings Mews, Doncaster, DN1 1JD
East Laith Gate, 2b Kings Mews, Doncaster, DN1 1JD, Doncaster, South Yorkshire- 1435.47 sqft
Contact me

- Craven Wildsmith
- View Listings
- Office
- £8,400 per annum
M & M Business Park, Kirk Sandall, Doncaster, DN3 1HR
M & M Business Park, Kirk Sandall, Doncaster, DN3 1HR, Doncaster, Kirk Sandall- 944 sqft
Contact me

- Craven Wildsmith
- View Listings
- Office
- £6,700 per annum
Stone Cross House, Doncaster Road, Kirk Sandall, Doncaster, DN3 1HR
Stone Cross House, Doncaster Road, Kirk Sandall, Doncaster, DN3 1HR, Doncaster, South Yorkshire, Kirk Sandall- 823 sqft
Contact me

- Craven Wildsmith
- View Listings
- Office
- £1,500 per month
Unit 5, Jetstream Drive, Doncaster, DN9 3QS
Unit 5, Jetstream Drive, Doncaster, DN9 3QS, Doncaster, South Yorkshire- 116.32 sqm
Contact me

- Craven Wildsmith
- View Listings
- Office
- £150 per month
Parking At Unit 5, Jetstream Drive, Doncaster, DN9 3QS
Parking At Unit 5, Jetstream Drive, Doncaster, DN9 3QS, Doncaster, South YorkshireContact me

- Craven Wildsmith
- View Listings
- Office
- £1,000 - £4,000 per month
Frances Street Off East Laith Gate, 1 Kings Mews, Doncaster, DN1 1JB
Frances Street Off East Laith Gate, 1 Kings Mews, Doncaster, DN1 1JB, Doncaster, South Yorkshire- 1026 sqft
Contact me

- Craven Wildsmith
- View Listings
- Office
- £1,750 - £3,700 per month
East Laith Gate, 2c & 2d Kings Mews, Doncaster, DN1 1JD
East Laith Gate, 2c & 2d Kings Mews, Doncaster, DN1 1JD, Doncaster, South Yorkshire- 1800 sqft
Contact me

- Craven Wildsmith
- View Listings
- Office
- £1,150 per month
Offices 3 And 4, Queens Road, Queens Road Design Centre, Town Centre, Doncaster, DN1 2NH
Offices 3 And 4, Queens Road, Queens Road Design Centre, Town Centre, Doncaster, DN1 2NH, Doncaster, Town Centre- 86 sqm
Contact me

- Craven Wildsmith
- View Listings
- Office
- £650 per month
Office 6, Queens Road, Queens Road Design Centre, Town Centre, Doncaster, DN1 2NH
Office 6, Queens Road, Queens Road Design Centre, Town Centre, Doncaster, DN1 2NH, Doncaster, South Yorkshire, Town Centre- 53 sqm
Contact me

- Craven Wildsmith
- View Listings
Contact me

- Fenn Wright
- View Listings

- Fenn Wright
- View Listings
















