- Home
- For Sale
- Investment
- 6-8 HARROW PLACE, BLACKPOOL, FY4 1RP
Overview
- Investment
- Property Type
Description
Location
**AUCTION**
For sale via Pugh Auctions - https://www.pugh-auctions.com/property/37284
Bidding opens Tuesday 28th October 2025 at 10:00 AM and ends 29th October 2025 at 10:54 am.
Additional costs and fees will apply - contact Pugh for further details.
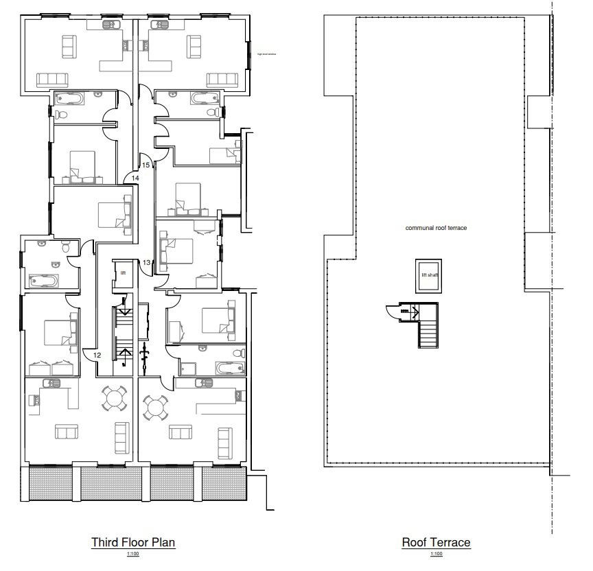
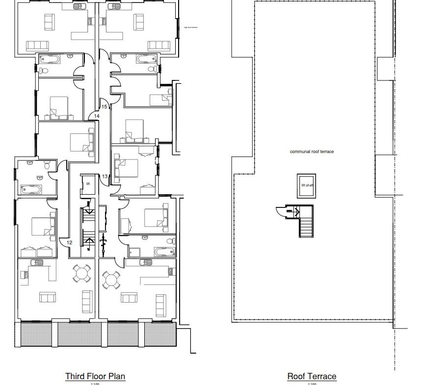
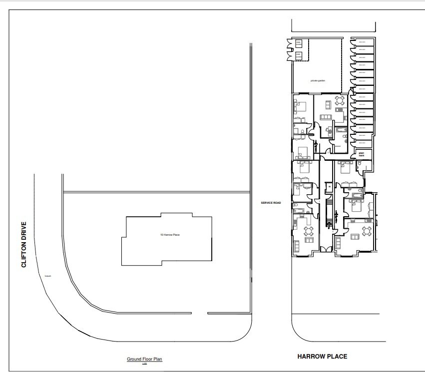
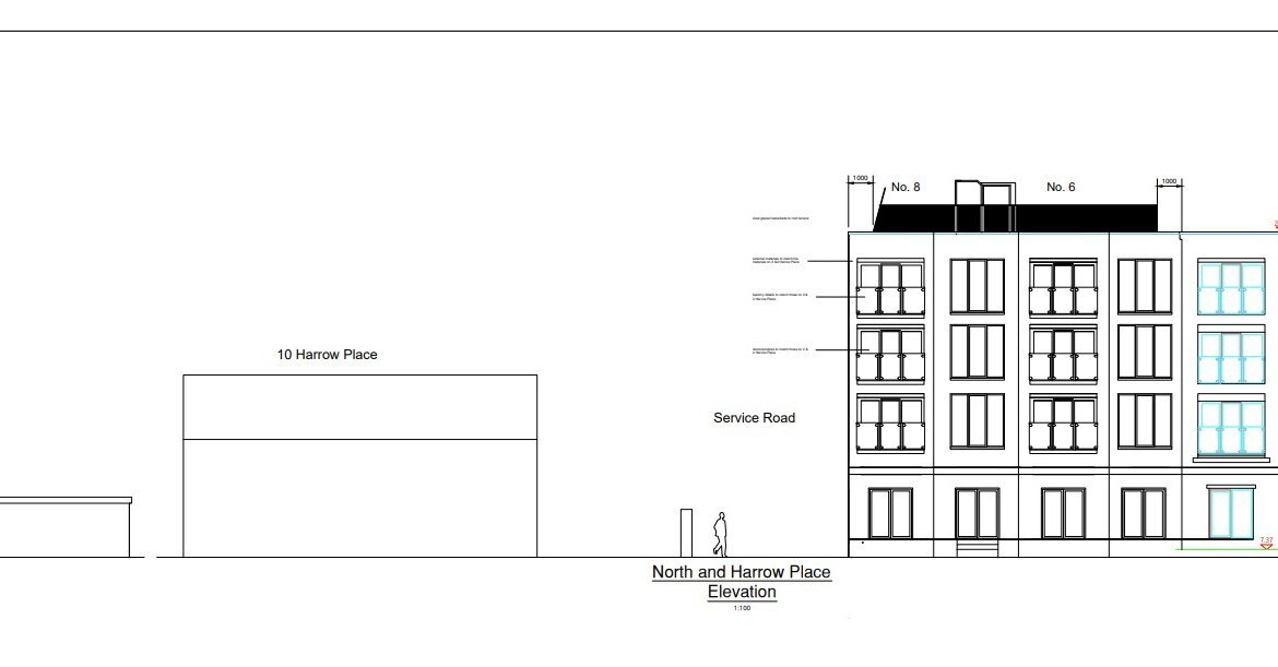
A residential development opportunity with planning permission for 15 apartments with 15 car parking spaces:
Description
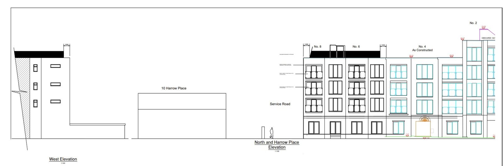
External alterations to include balconies to Harrow Place elevations, provision of roof terrace, three storey extension to west elevation, squaring off of building at third floor, cycle and bin stores to rear and use of premises as altered as 15 self-contained permanent flats.
Status: Permission Granted. Decision date: Wed 26th July 2023. Planning Ref: 21/0386
25/0144 | Discharge of conditions 3 (external materials), 4 (surfacing materials), 9 (landscaping scheme), 10 (boundary treatments) 14 (parking) & 15 (flood mitigation measures) attached to planning permission 21/0386 (which was for extension and alteration of the building to create 15 self-contained permanent flats.
Subject to a Section 106 Agreement.
The subject building is connected onto Coast Point, which is described as an 85 apartment development complete with state of the art handcrafted kitchens, stunning sea views, on-site fitness centre and a luxury roof terrace. Situated on New South Promenade, with a return frontage onto Harrow Place.
The subject residential re-development site is in a prime location overlooking The Solaris Centre gardens and 100 metres from New South Promenade. It is within walking distance of local shops and amenities, the promenade and beach, and conveniently located close to both a tram and bus stop providing ease of access into Blackpool's town centre. Ease of access is also available towards the M55 / M6 motorway and to the neighbouring towns of Lytham St. Annes. External inspection is available without appointment. Internal inspection is via appointment only and subject to seller availability.
Summary
Key points
- RESIDENTIAL RE-DEVELOPMENT OPPORTUNITY
- FORMS FINAL PART OF THE COASTAL POINT DEVELOPMENT, FRONTING ONTO HARROW PLACE
- 100 METRES FROM SOUTH PROMENADE
- CLOSE TO LOCAL SHOPS & AMENITIES
- 15 x APARTMENTS, WITH 15 x PARKING SPACES
- PLANNING REF: 21 / 0386
- PLANS / VISUALS AVAILABLE TO BE SEEN
- PRIME LOCATION OPPOSITE THE SOLARIS CENTRE GARDENS
Contact
Duxburys Commercial
Tel: 01253 316919
Hayley Blackshaw
Hayley@duxburyscommercial.co.uk
EPC
Mortgage Calculator
-
Down Payment
-
Loan Amount
-
Monthly Mortgage Payment
Contact Information
View Listings- Duxburys Commercial
- 01253 316 919
Enquire About This Property
Similar Listings
- Industrial, Industrial Warehouse
- £600,000 pax & Price u/a
Industrial Warehouse: Sale/Lease, Burnley, BB10 2TT
Unit 2 Widow Hill Court Heasandford Industrial Estate, Burnley, Lancashire, BB10 2TT, Unit 2 Widow Hill Court, Burnley, Lancashire, Burnley, UK, BB10 2TT- 143,051 sq ft
- Industrial
Station Road Garage, Station Road, Adwick Le Street, Doncaster, DN6 7BE
Station Road Garage, Station Road, Adwick Le Street, Doncaster, DN6 7BE, Doncaster, Adwick-Le-Street- 160 sqm
Contact me

- Craven Wildsmith
- View Listings
- Investment
Marvels Lane Clinic, 37 Marvels Lane, Bromley, London, SE12 9PN
Marvels Lane Clinic, 37 Marvels Lane, Bromley, London, SE12 9PN, London, Bromley- 10000 sqft
- Investment
114E Blackstock Road, Islington, London, N4 2DR
114E Blackstock Road, Islington, London, N4 2DR, London, Islington- 500 sqft
- Investment
1 – 3 Marconi Place, Friern Barnet, London, N11 1PE
1 - 3 Marconi Place, Friern Barnet, London, N11 1PE, London, Friern Barnet- 4988 sqft
- Other
Car Park Space, 32 Ewart Grove, Emerald Apartments, Wood Green, London, N22 5NU
Car Park Space, 32 Ewart Grove, Emerald Apartments, Wood Green, London, N22 5NU, London, Wood Green- 135 sqft
- Other
Car Park Space, 32 Ewart Grove, Emerald Apartments, Wood Green, London, N22 5NU
Car Park Space, 32 Ewart Grove, Emerald Apartments, Wood Green, London, N22 5NU, London, Wood Green- 135 sqft
Contact me

- Duxburys Commercial
- View Listings

- Duxburys Commercial
- View Listings













