Search
- Home
- For Sale
- Investment
- 5 Cartel Business Centre, Stroudley Road, Basingstoke, RG24 8FW
Overview
- Investment
- Property Type
Description
Location
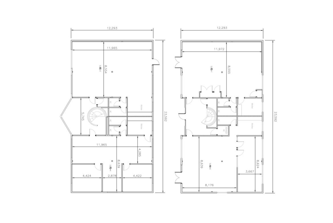
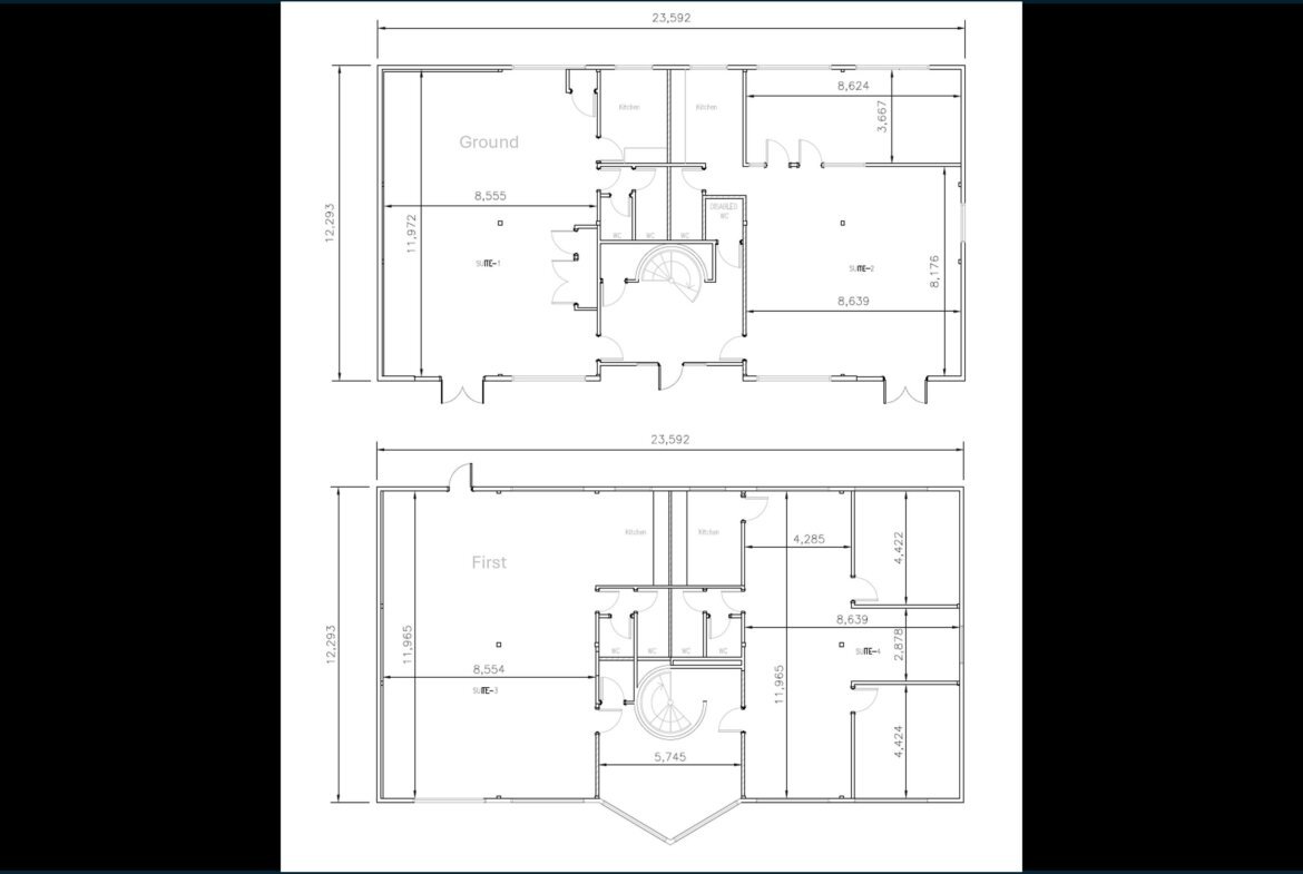
Opportunity to acquire a modern, detached office building just a short walk from Basingstoke town centre.
Recently refurbished throughout to a high standard, this self-contained property is available on a long leasehold basis and features a mezzanine at the front of the unit. The site benefits from a generous front yard, providing parking for up to 23 cars and a dedicated outdoor seating area - ideal for staff and visitors.
Summary
Key points
- Full refurbishment in 2023
- Passing rental income of £58,194 per annum
- Reversionary income of £79,155 upon being fully let
- Building consists of 4 suites, with Kitchens & WC's
- Yard with 23 Parking Spaces
- High quality WCs & kitchens, including all white goods
- WAULT of 3.7 years
- Low capital value of £117 per sq ft
- EPC A
Class E(g), B2 & B8.
Contact
LAMBERT SMITH HAMPTON LIMITED
Tel: 07355 608 829
Jack James
JJames@lsh.co.uk
LAMBERT SMITH HAMPTON LIMITED
Tel: 07772 064 440
Jay Moore
jamoore@lsh.co.uk
EPC
Mortgage Calculator
Monthly
-
Down Payment
-
Loan Amount
-
Monthly Mortgage Payment
£
%
%
5 Cartel Business Centre, Stroudley Road, Basingstoke, RG24 8FW
Contact Information
View ListingsSimilar Listings
- Industrial, Industrial Warehouse
- £600,000 pax & Price u/a
Industrial Warehouse: Sale/Lease, Burnley, BB10 2TT
Unit 2 Widow Hill Court Heasandford Industrial Estate, Burnley, Lancashire, BB10 2TT, Unit 2 Widow Hill Court, Burnley, Lancashire, Burnley, UK, BB10 2TT- 143,051 sq ft
- Industrial
Station Road Garage, Station Road, Adwick Le Street, Doncaster, DN6 7BE
Station Road Garage, Station Road, Adwick Le Street, Doncaster, DN6 7BE, Doncaster, Adwick-Le-Street- 160 sqm
Contact me

- Craven Wildsmith
- View Listings
- Investment
Marvels Lane Clinic, 37 Marvels Lane, Bromley, London, SE12 9PN
Marvels Lane Clinic, 37 Marvels Lane, Bromley, London, SE12 9PN, London, Bromley- 10000 sqft
- Investment
114E Blackstock Road, Islington, London, N4 2DR
114E Blackstock Road, Islington, London, N4 2DR, London, Islington- 500 sqft
- Investment
1 – 3 Marconi Place, Friern Barnet, London, N11 1PE
1 - 3 Marconi Place, Friern Barnet, London, N11 1PE, London, Friern Barnet- 4988 sqft
- Other
Car Park Space, 32 Ewart Grove, Emerald Apartments, Wood Green, London, N22 5NU
Car Park Space, 32 Ewart Grove, Emerald Apartments, Wood Green, London, N22 5NU, London, Wood Green- 135 sqft
- Other
Car Park Space, 32 Ewart Grove, Emerald Apartments, Wood Green, London, N22 5NU
Car Park Space, 32 Ewart Grove, Emerald Apartments, Wood Green, London, N22 5NU, London, Wood Green- 135 sqft
- Lambert Smith Hampton








