- Home
- For Rent
- Industrial
- 48-54 Fuller Road, Harleston, IP20 9EA
Overview
- Industrial
- Property Type
- 25792 - 25792
- sq ft
Description
Location
Harleston is a market town situated in south Norfolk, close to the Suffolk border, approximately 10 miles to the east of Diss and 18 miles to the south of Norwich via the A143. The A140 is approximately 10 miles to the west and provides road connection to Norwich and Ipswich via the A14.
The property is positioned on the established Harleston Industrial Estate to the south of the town and within close proximity to the A143.
DESCRIPTION
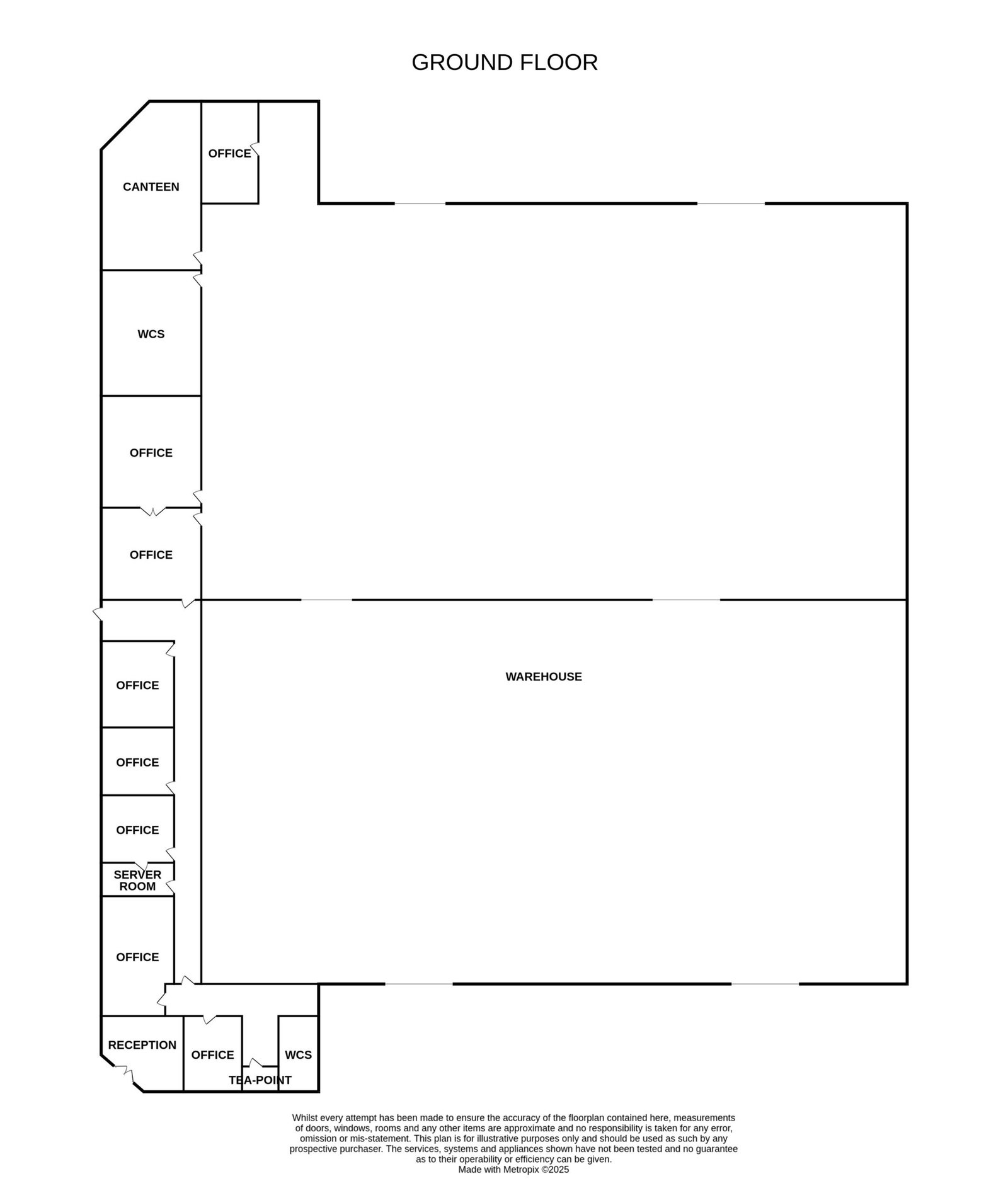
The property comprises a detached, two-bay warehouse building with ancillary office accommodation, situated on a large, surfaced site. It is of steel portal frame construction with elevations featuring a combination of insulated profile sheet cladding and part block/brickwork, beneath a pitched roof incorporating translucent roof panels.
The warehouse is currently divided into two bays, connected by roller shutter doors understood to have been installed by the tenant. The office accommodation wraps around the front elevation and includes a number of cellular offices and meeting rooms, along with a reception area, staff canteen, and WC facilities.
The warehouse is served by roller shutter doors on either side of the building, providing access to the adjoining service yards. The specification includes fluorescent strip lighting, gas-fired hot air blowers and three-phase power.
The offices are fitted with suspended ceilings incorporating fluorescent lighting, air-conditioning, perimeter power & data points, and carpet floor coverings.
Externally the property benefits from surfaced yards/parking to the front and rear.
ACCOMMODATION [Approximate Gross Internal Floor Areas]
Warehouse: 21,091 sq ft [ 1,959.40 sq m]
Mezzanine: 472 sq ft [ 43.82 sq m]
Ancillary Accommodation: 4,230 sq ft [ 392.95 sq m]
Total GIA: 25,792 sq ft [ 2,396.17 sq m]
CEILING HEIGHT & SHUTTER DOORS
Warehouse Apex: 8.18 m | Eaves: 5.44 m
Shutter Doors
2x Warehouse Rear W: 3.99 m | H: 4.51 m
2x Warehouse Front W: 3.99 m | H: 4.51 m
BUSINESS RATES
The premises has a Rateable Value of £125,000. The rates payable (2024/25) is £68,250 per annum based on a UBR for the current year of £0.546.
All interested parties should make their own enquiries with the local rating authority in order to verify their rates liability.
SERVICES
It is understood the premises is connected to mains water, three phase electricity and drainage.
We have not tested any of the services and all interested parties should rely upon their own enquiries with the relevant utility companies in connection with the availability and capacity of all those serving the property including IT and telecommunications.
PLANNING
The property has previously been used as B8 (warehouse & storage) and B2 (general industrial).
All interested parties should make their own enquiries with the local planning authority to confirm their intended use.
LOCAL AUTHORITY
Broadland & South Norfolk District Council, The Horizon Centre, Broadland Business Park, Norwich, NR7 0WF.
Tel: 01603 431133
ENERGY PERFORMANCE CERTIFICATE [EPC]
C (60) Rating - 9143-3097-0367-0100-6095
TERMS
The property is available to let on new full repairing and insuring business leases on terms to be agreed and at the following rent of £140,000 per annum exclusive.
Offers are invited in the region of £1,600,000 for the freehold interest with vacant possession upon completion.
The property is subject to VAT.
LEGAL COSTS
Each party is to be responsible for their own legal costs.
Summary
Key points
- Detached warehouse with yard & parking
- Gross internal area 25,792 sq ft (2,396 sq m)
- Total site area 1.47 acres
- Contact
Fenn Wright
Tel: 01473 232701
Hamish Stone
hws@fennwright.co.uk
Contact Information
View Listings- Fenn Wright
- 01473 417714
Enquire About This Property
Similar Listings
- Commercial
- £84,338 pa
00745001721009
Kings Terrace London NW1 0LP, 17-21 Kings Terrace London, London, London Borough of Camden, UK, NW1 0PQ- 3373 Sq Ft
Contact me

- Movehut
- View Listings
- Commercial
- £84,338 pa
Ground Floor Office: London Borough of Camden
Kings Terrace London NW1 0LP, 17-21 Kings Terrace London, London, London Borough of Camden, UK, NW1 0PQ- 3373 Sq Ft
Contact me

- Movehut
- View Listings
- Office
- £17,500 per annum
East Laith Gate, 2b Kings Mews, Doncaster, DN1 1JD
East Laith Gate, 2b Kings Mews, Doncaster, DN1 1JD, Doncaster, South Yorkshire- 1435.47 sqft
Contact me

- Craven Wildsmith
- View Listings
- Office
- £8,400 per annum
M & M Business Park, Kirk Sandall, Doncaster, DN3 1HR
M & M Business Park, Kirk Sandall, Doncaster, DN3 1HR, Doncaster, Kirk Sandall- 944 sqft
Contact me

- Craven Wildsmith
- View Listings
- Office
- £6,700 per annum
Stone Cross House, Doncaster Road, Kirk Sandall, Doncaster, DN3 1HR
Stone Cross House, Doncaster Road, Kirk Sandall, Doncaster, DN3 1HR, Doncaster, South Yorkshire, Kirk Sandall- 823 sqft
Contact me

- Craven Wildsmith
- View Listings
- Office
- £1,500 per month
Unit 5, Jetstream Drive, Doncaster, DN9 3QS
Unit 5, Jetstream Drive, Doncaster, DN9 3QS, Doncaster, South Yorkshire- 116.32 sqm
Contact me

- Craven Wildsmith
- View Listings
- Office
- £150 per month
Parking At Unit 5, Jetstream Drive, Doncaster, DN9 3QS
Parking At Unit 5, Jetstream Drive, Doncaster, DN9 3QS, Doncaster, South YorkshireContact me

- Craven Wildsmith
- View Listings
- Office
- £1,000 - £4,000 per month
Frances Street Off East Laith Gate, 1 Kings Mews, Doncaster, DN1 1JB
Frances Street Off East Laith Gate, 1 Kings Mews, Doncaster, DN1 1JB, Doncaster, South Yorkshire- 1026 sqft
Contact me

- Craven Wildsmith
- View Listings
- Office
- £1,750 - £3,700 per month
East Laith Gate, 2c & 2d Kings Mews, Doncaster, DN1 1JD
East Laith Gate, 2c & 2d Kings Mews, Doncaster, DN1 1JD, Doncaster, South Yorkshire- 1800 sqft
Contact me

- Craven Wildsmith
- View Listings
Contact me

- Fenn Wright
- View Listings

- Fenn Wright
- View Listings
