Overview
- Office
- Property Type
Description
Location
As you take a walk around these imposing and highly impressive buildings you will encounter ornate plaster ceilings with period style moulding and decorative ceiling rose features.
Stylish lighting, a range of beautiful bespoke, traditional, stained-glass windows with frames to complement. Ornately carved internal doors with striking features and a grand staircase connecting the ground and first floors. French doors and windows providing an abundance of natural light that flows into the various rooms.
Period style skirting boards and parquet/wood block flooring.
These are remarkable buildings, offering grand architectural design, lavish décor/features and both external and internal features. In addition, there are more modern areas of the building, which all combined offer a good mix of open plan and cellular rooms.
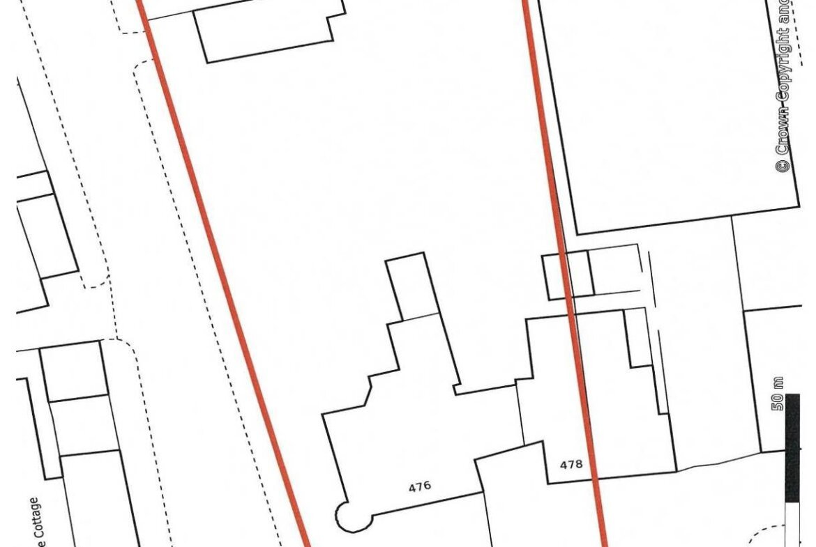
No. 476, originally known as Calderbank, is an Edwardian building designed to bespoke requirements by the original owner resulting in a unique property which has been sympathetically restored and maintained. It is also part of the Blackpool Heritage Trail.
No. 478, known as The Manse, also offers immense character and traditional features. A large Victorian era residential property.
No. 476 and No. 478 are linked by a more modern building, providing open plan ground and first floor space.
All of the above stand in a plot that measures c. 0.74 acres.
The grounds comprise of front gardens areas, a pedestrian gated pathway to the front door of No. 476 and a driveway entrance to No. 478 and the adjoining middle section of the main buildings, which has a disabled access ramp to the front. This initiates access to both buildings. The rear grounds comprise of lawned gardens, patios areas, a rear former large Garage that now provides office/meeting room space. Plus, a Summer House to the far rear corner of the grounds.
The buildings and plot simply need to be viewed internally to be appreciated and appointments are available by way of a prior appointment.
Summary
Key points
- EXTENSIVE RESIDENTIAL & COMMERCIAL USE BUIILDINGS, SET WITHIN 0.74 ACRES
- EXTENSIVE BUILDING PREVIOUSLY USED BY WORLD HEALING CENTRE (NO. 476)
- FIVE BEDROOMED RESIDENTIAL ACCOMMODATION KNOWN AS 'THE MANSE'
- ADDITIONAL ACCOMMODATION CONSTRUCTED TO INTERLINK THE TWO BUILDINGS WHEN REQUIRED
- EXTENSIVE GROUNDS TO THE REAR
- DEVELOPMENT POTENTIAL SUBJECT TO PLANNING CONSENT TO THE REAR
Contact
Duxburys Commercial
Tel: 01253 316919
Hayley Blackshaw
Hayley@duxburyscommercial.co.uk
EPC
Mortgage Calculator
-
Down Payment
-
Loan Amount
-
Monthly Mortgage Payment
Contact Information
View Listings- Duxburys Commercial
- 01253 316 919
Enquire About This Property
Similar Listings
- Industrial, Industrial Warehouse
- £600,000 pax & Price u/a
Industrial Warehouse: Sale/Lease, Burnley, BB10 2TT
Unit 2 Widow Hill Court Heasandford Industrial Estate, Burnley, Lancashire, BB10 2TT, Unit 2 Widow Hill Court, Burnley, Lancashire, Burnley, UK, BB10 2TT- 143,051 sq ft
- Industrial
Station Road Garage, Station Road, Adwick Le Street, Doncaster, DN6 7BE
Station Road Garage, Station Road, Adwick Le Street, Doncaster, DN6 7BE, Doncaster, Adwick-Le-Street- 160 sqm
Contact me

- Craven Wildsmith
- View Listings
- Investment
Marvels Lane Clinic, 37 Marvels Lane, Bromley, London, SE12 9PN
Marvels Lane Clinic, 37 Marvels Lane, Bromley, London, SE12 9PN, London, Bromley- 10000 sqft
- Investment
114E Blackstock Road, Islington, London, N4 2DR
114E Blackstock Road, Islington, London, N4 2DR, London, Islington- 500 sqft
- Investment
1 – 3 Marconi Place, Friern Barnet, London, N11 1PE
1 - 3 Marconi Place, Friern Barnet, London, N11 1PE, London, Friern Barnet- 4988 sqft
- Other
Car Park Space, 32 Ewart Grove, Emerald Apartments, Wood Green, London, N22 5NU
Car Park Space, 32 Ewart Grove, Emerald Apartments, Wood Green, London, N22 5NU, London, Wood Green- 135 sqft
- Other
Car Park Space, 32 Ewart Grove, Emerald Apartments, Wood Green, London, N22 5NU
Car Park Space, 32 Ewart Grove, Emerald Apartments, Wood Green, London, N22 5NU, London, Wood Green- 135 sqft
Contact me

- Duxburys Commercial
- View Listings

- Duxburys Commercial
- View Listings




































