Search
Overview
- Office
- Property Type
Description
Location
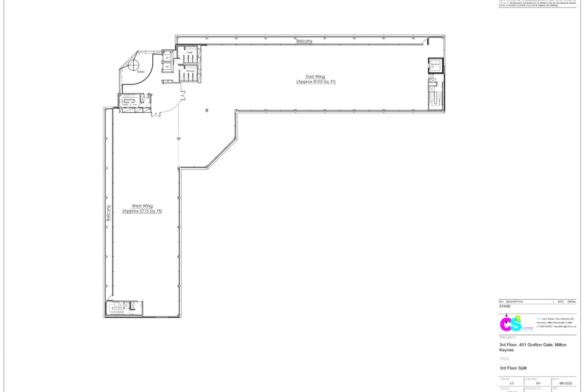
401 Grafton Gate is a high quality office building located in a prime position on Midsummer Boulevard in Central Milton Keynes. The building offers attractive modern office space that benefits from excellent natural light and a recent refurbishment creating an impressive first impression.
The available space is located on the 3rd floor and provides a versatile and bright floorplate which has been refurbished.
Summary
Key points
- LED lighting with new metal tiled ceiling
- Air conditioning
- Concierge and 24 hour access
- New cycle storage and showers
- Allocated parking
- Prime position on Midsummer Boulevard
- Newly refurbished full height reception, WCs and break out areas
- Within close proximity of Milton Keynes Central Station
- EPC A
Contact
LAMBERT SMITH HAMPTON LIMITED
Tel: 07938 737 487
Tom Pugh
tpugh@lsh.co.uk
LAMBERT SMITH HAMPTON LIMITED
Tel: 07938 737 436
Ed Lifely
info@lsh.co.uk
EPC
401 Grafton Gate, Central Milton Keynes, Milton Keynes, MK9 1AQ
Contact Information
View ListingsSimilar Listings
- Industrial, Industrial Warehouse
- £600,000 pax & Price u/a
Industrial Warehouse: Sale/Lease, Burnley, BB10 2TT
Unit 2 Widow Hill Court Heasandford Industrial Estate, Burnley, Lancashire, BB10 2TT, Unit 2 Widow Hill Court, Burnley, Lancashire, Burnley, UK, BB10 2TT- 143,051 sq ft
- Commercial
- £84,338 pa
00745001721009
Kings Terrace London NW1 0LP, 17-21 Kings Terrace London, London, London Borough of Camden, UK, NW1 0PQ- 3373 Sq Ft
Contact me

- Movehut
- View Listings
- Commercial
- £84,338 pa
Ground Floor Office: London Borough of Camden
Kings Terrace London NW1 0LP, 17-21 Kings Terrace London, London, London Borough of Camden, UK, NW1 0PQ- 3373 Sq Ft
Contact me

- Movehut
- View Listings
- Office
- £17,500 per annum
East Laith Gate, 2b Kings Mews, Doncaster, DN1 1JD
East Laith Gate, 2b Kings Mews, Doncaster, DN1 1JD, Doncaster, South Yorkshire- 1435.47 sqft
Contact me

- Craven Wildsmith
- View Listings
- Office
- £8,400 per annum
M & M Business Park, Kirk Sandall, Doncaster, DN3 1HR
M & M Business Park, Kirk Sandall, Doncaster, DN3 1HR, Doncaster, Kirk Sandall- 944 sqft
Contact me

- Craven Wildsmith
- View Listings
- Office
- £6,700 per annum
Stone Cross House, Doncaster Road, Kirk Sandall, Doncaster, DN3 1HR
Stone Cross House, Doncaster Road, Kirk Sandall, Doncaster, DN3 1HR, Doncaster, South Yorkshire, Kirk Sandall- 823 sqft
Contact me

- Craven Wildsmith
- View Listings
- Office
- £1,500 per month
Unit 5, Jetstream Drive, Doncaster, DN9 3QS
Unit 5, Jetstream Drive, Doncaster, DN9 3QS, Doncaster, South Yorkshire- 116.32 sqm
Contact me

- Craven Wildsmith
- View Listings
- Office
- £150 per month
Parking At Unit 5, Jetstream Drive, Doncaster, DN9 3QS
Parking At Unit 5, Jetstream Drive, Doncaster, DN9 3QS, Doncaster, South YorkshireContact me

- Craven Wildsmith
- View Listings
- Office
- £1,000 - £4,000 per month
Frances Street Off East Laith Gate, 1 Kings Mews, Doncaster, DN1 1JB
Frances Street Off East Laith Gate, 1 Kings Mews, Doncaster, DN1 1JB, Doncaster, South Yorkshire- 1026 sqft
Contact me

- Craven Wildsmith
- View Listings
- Kalmers
Contact me

- Kalmers
- View Listings

- Kalmers
- View Listings









