- Home
- For Rent
- Industrial
- 4 King Edward Quay, Colchester, CO2 8JB
Overview
- Industrial
- Property Type
- 2234 - 2234
- sq ft
Description
Location
The premises are of steel portal frame construction with part brick, part profile steel clad elevations under a pitched roof which incorporates translucent roof lights. The warehouse has a minimum eaves height of approx. 4.65m and pitch height of approx. 6.15m.
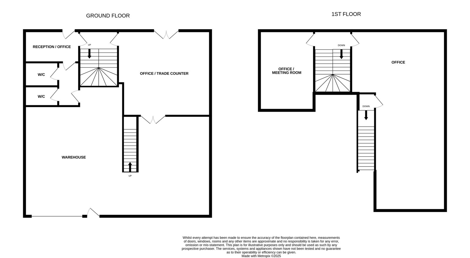
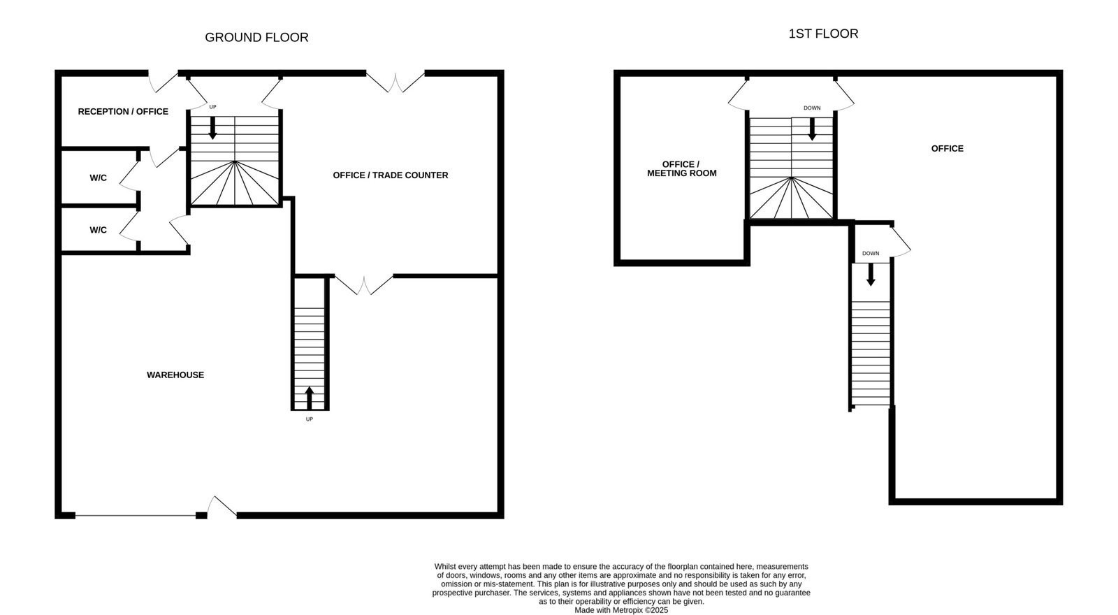
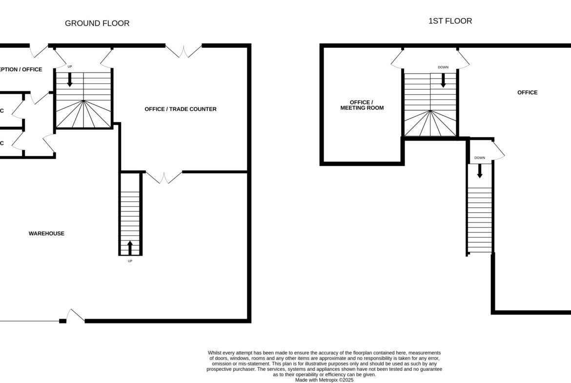
Access is available via a manual roller shutter door (approx. 4m high x 3m wide) located in the shared yard area, alongside a separate personnel door for convenient entry and exit. Large glazed doors on the front elevation, protected by steel security provide access to an office / trade counter area, kitchen and WC facilities and internal access to the warehouse. A staircase leads to the first floor, which comprises a spacious open-plan office and a separate office/meeting room. This upper level can also be accessed via stairs directly from the warehouse. The premises benefit from electricity, lighting and electric heating (not tested).
Externally, there is on site car parking for 4 cars, plus loading / unloading space.
LOCATION
The property is located on King Edward Quay, close to Whitehall Industrial Estate, approximately three miles to the East of Colchester City Centre. Good access is available to the inner ring road system which links directly to the A12 / A120, providing easy access to the East Coast ports of Harwich and Felixstowe and Stansted Airport.
ACCOMMODATION
[Approximate Gross Internal Floor Areas]
Ground Floor: 1,401 sq ft [130.2 sq m] approx.
First Floor: 833 sq ft [77.4 sq m] approx.
Total: 2,234 sq ft [207.5 sq m] approx.
TERMS
The premises are available to let on a new full repairing and insuring lease, lease length and terms to be agreed, a rent of £27,500 per annum plus VAT.
We are advised that VAT is applicable.
SERVICE CHARGE
A service charge is applicable to cover; maintenance of the estate communal areas and landscaping. The approx. cost for the current year £1,810.82 per annum plus VAT.
BUILDINGS INSURANCE
The buildings insurance is to be arranged by the landlord with the cost to be recovered from the tenant. The approx. cost for the current year is £361.71 plus VAT.
BUSINESS RATES
We are advised that the premises have a rateable value, with effect from the 1st April 2023, of £11,250.
For rateable values below £12,000, 100% small business rate relief may be available, subject to eligibility.
We recommend all parties make their own direct enquiries with the local rating authority.
ENERGY PERFORMANCE CERTIFICATE [EPC]
We have been advised that the premises fall within class D (82) of the energy performance assessment scale.
A full copy of the EPC assessment is available upon request.
VAT
We are advised that VAT will be applicable. All rents and prices are exclusive of VAT under the Finance Act 1989.
LEGAL COSTS
Prior to the instruction of solicitors, the tenant will be required to pay a non-refundable administration fee of £750 plus
VAT. Each party will otherwise bear their own legal costs.
ANTI-MONEY LAUNDERING REGULATIONS
Anti-Money Laundering Regulations require Fenn Wright to formally verify a prospective tenants identity prior to the instruction of solicitors.
VIEWINGS STRICTLY BY APPOINTMENT VIA LETTING AGENTS:
Fenn Wright
T: 01206 854545
E: colchestercommercial@fennwright.co.uk
Summary
Key points
- Large Warehouse Area With Ground & First Floor Offices
- Kitchen and WC Facilities
- Shared Yard For Loading / Unloading
- On Site Car Parking Spaces
- Established Business Location
- Contact
Fenn Wright
Tel: 01206 854545
Edward Nolan
ejn@fennwright.co.uk
Contact Information
View Listings- Fenn Wright
- 01473 417714
Enquire About This Property
Similar Listings
- Office
- £17,500 per annum
East Laith Gate, 2b Kings Mews, Doncaster, DN1 1JD
East Laith Gate, 2b Kings Mews, Doncaster, DN1 1JD, Doncaster, South Yorkshire- 1435.47 sqft
Contact me

- Craven Wildsmith
- View Listings
- Office
- £8,400 per annum
M & M Business Park, Kirk Sandall, Doncaster, DN3 1HR
M & M Business Park, Kirk Sandall, Doncaster, DN3 1HR, Doncaster, Kirk Sandall- 944 sqft
Contact me

- Craven Wildsmith
- View Listings
- Office
- £6,700 per annum
Stone Cross House, Doncaster Road, Kirk Sandall, Doncaster, DN3 1HR
Stone Cross House, Doncaster Road, Kirk Sandall, Doncaster, DN3 1HR, Doncaster, South Yorkshire, Kirk Sandall- 823 sqft
Contact me

- Craven Wildsmith
- View Listings
- Office
- £1,500 per month
Unit 5, Jetstream Drive, Doncaster, DN9 3QS
Unit 5, Jetstream Drive, Doncaster, DN9 3QS, Doncaster, South Yorkshire- 116.32 sqm
Contact me

- Craven Wildsmith
- View Listings
- Office
- £150 per month
Parking At Unit 5, Jetstream Drive, Doncaster, DN9 3QS
Parking At Unit 5, Jetstream Drive, Doncaster, DN9 3QS, Doncaster, South YorkshireContact me

- Craven Wildsmith
- View Listings
- Office
- £1,000 - £4,000 per month
Frances Street Off East Laith Gate, 1 Kings Mews, Doncaster, DN1 1JB
Frances Street Off East Laith Gate, 1 Kings Mews, Doncaster, DN1 1JB, Doncaster, South Yorkshire- 1026 sqft
Contact me

- Craven Wildsmith
- View Listings
- Office
- £1,750 - £3,700 per month
East Laith Gate, 2c & 2d Kings Mews, Doncaster, DN1 1JD
East Laith Gate, 2c & 2d Kings Mews, Doncaster, DN1 1JD, Doncaster, South Yorkshire- 1800 sqft
Contact me

- Craven Wildsmith
- View Listings
- Office
- £1,150 per month
Offices 3 And 4, Queens Road, Queens Road Design Centre, Town Centre, Doncaster, DN1 2NH
Offices 3 And 4, Queens Road, Queens Road Design Centre, Town Centre, Doncaster, DN1 2NH, Doncaster, Town Centre- 86 sqm
Contact me

- Craven Wildsmith
- View Listings
- Office
- £650 per month
Office 6, Queens Road, Queens Road Design Centre, Town Centre, Doncaster, DN1 2NH
Office 6, Queens Road, Queens Road Design Centre, Town Centre, Doncaster, DN1 2NH, Doncaster, South Yorkshire, Town Centre- 53 sqm
Contact me

- Craven Wildsmith
- View Listings
Contact me

- Fenn Wright
- View Listings

- Fenn Wright
- View Listings



















