- Home
- For Rent
- Industrial
- 3 Stepfield, Freebournes Industrial Estate, Witham, CM8 3TH
Overview
- Industrial
- Property Type
- 15829 - 15829
- sq ft
Description
Location
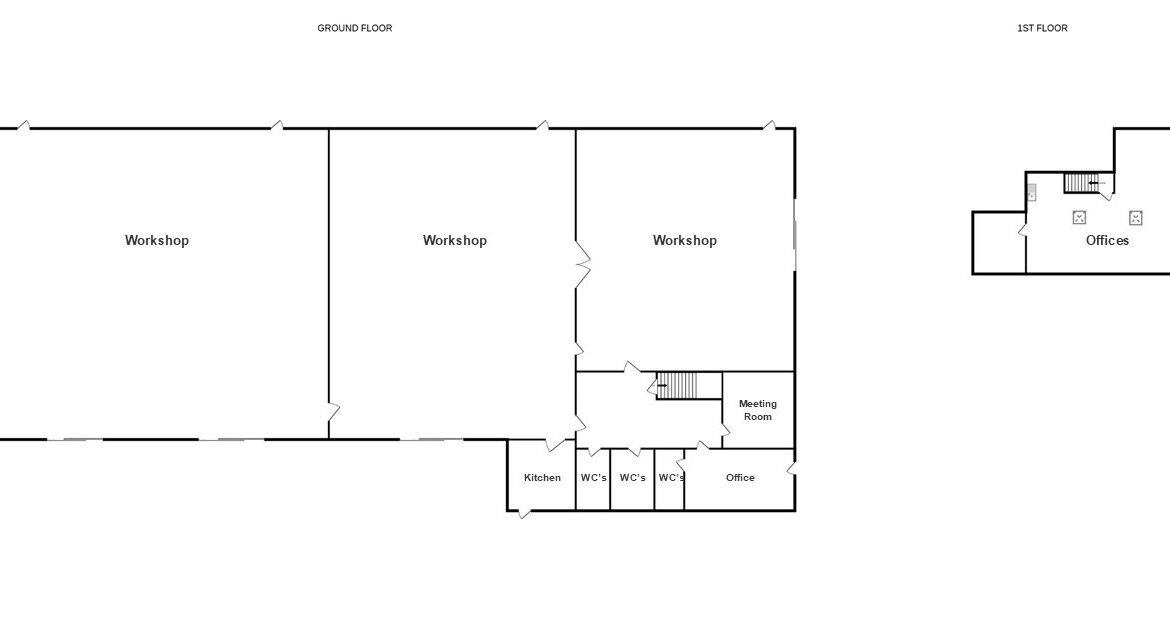
The property comprises an extensively refurbished industrial workshop of concrete frame construction beneath a new insulated roof incorporating translucent panels. The workshops have a minimum eaves height of approximately 3.20m rising to 5.20m to the apex. There are three loading doors (3.00m wide x 3.00m high approx.) to the side elevation within the secure yard and a roller shutter access door (5.60m wide x 3.60m high approx.) to the front of the property. At the front of the property is a two storey office section which provides a reception area, meeting room and male & female WC facilities on the ground floor and office accommodation on the first floor. The offices are fully air conditioned and have new LED lighting and carpets throughout. Externally there is a generous parking area to the front of the property and a secure gated yard to the side and rear of the property.
LOCATION
The property is located on the established Freebournes Industrial Estate adjacent to the A12 which provides convenient access to Junction 28 of the M25 to the south and the east coast ports of Harwich and Felixstowe to the north east. Access to the M11 and Stansted Airport is via the A120 from Braintree which is linked to Witham via the B1018. Witham Station provides a frequent service to London Liverpool Street with a journey time of approximately 45 minutes.
ACCOMMODATION
[Approximate Gross Internal Floor Areas]
Ground Floor
Industrial/Warehouse - 13,992 sq ft [1,299.88 sq m]
Offices, Kitchen and WC's - 850 sq ft [78.96 sq m]
First Floor
Offices - 987 sq ft [91.72 sq m]
Total - 15,829 sq ft [1,470.56 sq m]
The total site area measures 0.69 acre. [Measured online using Promap]
ENERGY PERFORMANCE CERTIFICATE [EPC]
The property will be assessed following completion of the refurbishment.
SERVICES
We understand the property is connected to mains water, drainage, gas and three phase electricity. We have not tested any of the services and all interested parties should rely upon their own enquiries with the relevant utility company in connection with the availability and capacity of all of those serving the property including IT and telecommunication links.
BUSINESS RATES
We are advised that the premises have a rateable value of £77,000. Therefore estimated annual rates payable of approximately £42,042 (2025/26). Interested parties are advised to make their own enquiries.
PLANNING
We understand the premises has an established general industrial (B2) use.
LOCAL AUTHORITY
Braintree District Council
T. 01376 552525
TERMS
The property is available on a new lease for a term of years to be agreed.
QUOTING RENT
Rent On Application
VAT
We understand VAT is not applicable.
LEGAL COSTS
Each party to bear their own legal costs incurred in this transaction.
ANTI-MONEY LAUNDERING REGULATIONS
Anti-Money Laundering Regulations require Fenn Wright to formally verify a prospective tenant's identity prior to the instruction of solicitors.
VIEWINGS STRICTLY BY APPOINTMENT VIA SOLE LETTING AGENTS:
Fenn Wright
64 Newland Street
Witham
Essex
CM8 1AH
James Wright
E: jw@fennwright.co.uk
Summary
Key points
- Available on a New Lease
- Comprehensively Refurbished Including New Roof and Cladding
- Established Estate in Close Proximity to the A12
- Quiet Location on No Through Road
- Three Phase Power & Gas Supply
- Secure Yard and Ample Parking
- Air Conditioned Offices
- Contact
Fenn Wright
Tel: 01245 261226
James Wright
jw@fennwright.co.uk
Contact Information
View Listings- Fenn Wright
- 01473 417714
Enquire About This Property
Similar Listings
- Industrial, Industrial Warehouse
- £600,000 pax & Price u/a
Industrial Warehouse: Sale/Lease, Burnley, BB10 2TT
Unit 2 Widow Hill Court Heasandford Industrial Estate, Burnley, Lancashire, BB10 2TT, Unit 2 Widow Hill Court, Burnley, Lancashire, Burnley, UK, BB10 2TT- 143,051 sq ft
- Commercial
- £84,338 pa
00745001721009
Kings Terrace London NW1 0LP, 17-21 Kings Terrace London, London, London Borough of Camden, UK, NW1 0PQ- 3373 Sq Ft
Contact me

- Movehut
- View Listings
- Commercial
- £84,338 pa
Ground Floor Office: London Borough of Camden
Kings Terrace London NW1 0LP, 17-21 Kings Terrace London, London, London Borough of Camden, UK, NW1 0PQ- 3373 Sq Ft
Contact me

- Movehut
- View Listings
- Office
- £17,500 per annum
East Laith Gate, 2b Kings Mews, Doncaster, DN1 1JD
East Laith Gate, 2b Kings Mews, Doncaster, DN1 1JD, Doncaster, South Yorkshire- 1435.47 sqft
Contact me

- Craven Wildsmith
- View Listings
- Office
- £8,400 per annum
M & M Business Park, Kirk Sandall, Doncaster, DN3 1HR
M & M Business Park, Kirk Sandall, Doncaster, DN3 1HR, Doncaster, Kirk Sandall- 944 sqft
Contact me

- Craven Wildsmith
- View Listings
- Office
- £6,700 per annum
Stone Cross House, Doncaster Road, Kirk Sandall, Doncaster, DN3 1HR
Stone Cross House, Doncaster Road, Kirk Sandall, Doncaster, DN3 1HR, Doncaster, South Yorkshire, Kirk Sandall- 823 sqft
Contact me

- Craven Wildsmith
- View Listings
- Office
- £1,500 per month
Unit 5, Jetstream Drive, Doncaster, DN9 3QS
Unit 5, Jetstream Drive, Doncaster, DN9 3QS, Doncaster, South Yorkshire- 116.32 sqm
Contact me

- Craven Wildsmith
- View Listings
- Office
- £150 per month
Parking At Unit 5, Jetstream Drive, Doncaster, DN9 3QS
Parking At Unit 5, Jetstream Drive, Doncaster, DN9 3QS, Doncaster, South YorkshireContact me

- Craven Wildsmith
- View Listings
- Office
- £1,000 - £4,000 per month
Frances Street Off East Laith Gate, 1 Kings Mews, Doncaster, DN1 1JB
Frances Street Off East Laith Gate, 1 Kings Mews, Doncaster, DN1 1JB, Doncaster, South Yorkshire- 1026 sqft
Contact me

- Craven Wildsmith
- View Listings
Contact me

- Fenn Wright
- View Listings

- Fenn Wright
- View Listings


















