- Home
- For Rent
- Industrial
- 21 Grange Way Business Park, Grange Way, Colchester, CO2 8HF
Overview
- Industrial
- Property Type
- 3875 - 3875
- sq ft
Description
Location
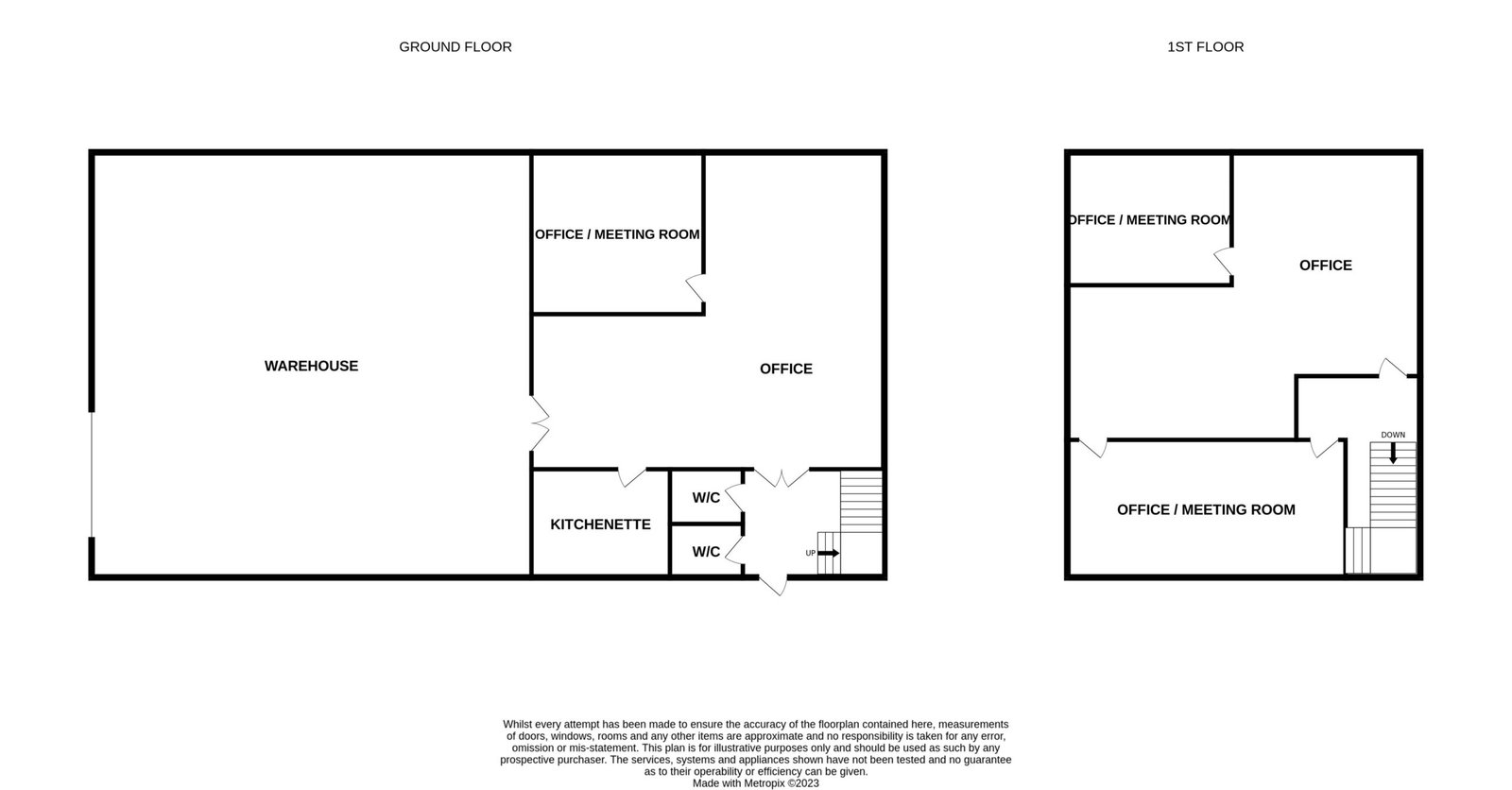
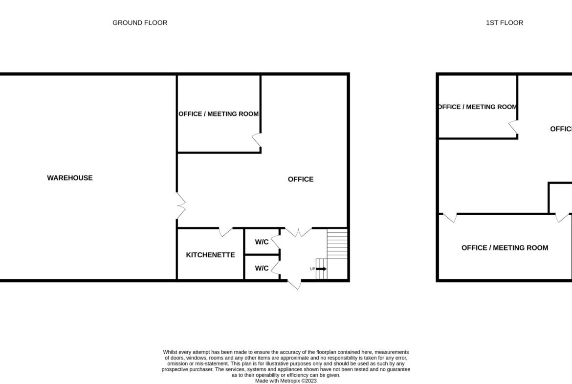
This detached unit is of steel portal frame construction with brick/block and part steel profile clad elevations under a pitched and insulated roof incorporating translucent roof lights.
A full height up and over door (approx. 3.4m wide x 4m high), and personnel door, on the side elevation provide access to the main industrial area, which has an eaves height of approx. 4.8m, a central apex height of approx. 6.2m, fluorescent lighting, three phase power and a gas warm air heater (not tested).
A personnel door on the front elevation leads to an entrance lobby with two W/C's, with a second personnel door leading to an open plan office area with additional storage / meeting room, and a tea point. On the first floor there is a large open plan office area, with two additional offices / meeting rooms, with LED lighting. Gas radiators provide heating with wall mounted Heating/Cooing units also present in part of the offices.
Externally there is a self-contained, fenced and gated, concreted yard area to the side / front and a forecourt providing ample loading / unloading facilities and on-site car parking.
LOCATION
The unit is situated on the popular Whitehall Industrial Estate which is located approximately two miles to the South of Colchester City Centre. Easy access is available to the inner ring road system which leads directly to the A12/A120 providing fast links to the national motorway network.
ACCOMMODATION
[Approximate Net Internal Floor Areas]
Warehouse: 1,495 sq ft [138.9 sq m] approx.
GF Office/Facilities: 1,196 sq ft [111.1 sq m] approx.
FF Offices: 1,184 sq ft [110.0 sq m] approx.
Total: 3,875 sq ft [360.0 sq m] approx.
TERMS
The premises are available to let on a new full repairing and insuring lease, with lease length and terms to be agreed, at a rent of £48,500 per annum plus VAT.
SERVICE CHARGE
There is a service charge to cover the costs of repairs and maintenance to the shared access roadway.. Approx. cost for the current year £1,857 plus VAT.
BUILDINGS INSURANCE
The landlord is to arrange the buildings insurance with the cost to be recovered from the tenant. Approx. cost for the current year £737 plus VAT.
BUSINESS RATES
We are advised that the premises have a rateable value, with effect from the 1st April 2023, of £33,750.
We therefore estimate rates payable are likely to be in the region of £16,850 for the current year.
Interested parties are advised to make their own enquiries direct with the local rating authority.
ENERGY PERFORMANCE CERTIFICATE [EPC]
We have been advised that the premises falls within class C (69) of the energy performance assessment scale.
VAT
All rents and prices are exclusive of VAT under the Finance Act 1989. We are advised that VAT is applicable on the rent. Interested parties are advised to consult their professional advisors as to their liabilities, if any, in this direction.
LEGAL COSTS
Prior to the instruction of solicitors, the tenant will be required to pay a non-refundable administration fee of £750.00 plus VAT. Each party will otherwise bear their own legal costs.
ANTI-MONEY LAUNDERING REGULATIONS
Anti-Money Laundering Regulations require Fenn Wright to formally verify a prospective tenants identity prior to the instruction of solicitors.
VIEWINGS STRICTLY BY APPOINTMENT VIA SOLE LETTING AGENTS:
Fenn Wright
T: 01206 854545
E: colchestercommercial@fennwright.co.uk
Summary
Key points
- Well Presented Throughout
- Warehouse Area With Large Loading Door
- High Quality Offices On Ground & First Floors
- Ample On Site Car Parking & Yard Area
- Established Business Location
- Contact
Fenn Wright
Tel: 01206 854545
Edward Nolan
ejn@fennwright.co.uk
Contact Information
View Listings- Fenn Wright
- 01473 417714
Enquire About This Property
Similar Listings
- Industrial, Industrial Warehouse
- £600,000 pax & Price u/a
Industrial Warehouse: Sale/Lease, Burnley, BB10 2TT
Unit 2 Widow Hill Court Heasandford Industrial Estate, Burnley, Lancashire, BB10 2TT, Unit 2 Widow Hill Court, Burnley, Lancashire, Burnley, UK, BB10 2TT- 143,051 sq ft
- Commercial
- £84,338 pa
00745001721009
Kings Terrace London NW1 0LP, 17-21 Kings Terrace London, London, London Borough of Camden, UK, NW1 0PQ- 3373 Sq Ft
Contact me

- Movehut
- View Listings
- Commercial
- £84,338 pa
Ground Floor Office: London Borough of Camden
Kings Terrace London NW1 0LP, 17-21 Kings Terrace London, London, London Borough of Camden, UK, NW1 0PQ- 3373 Sq Ft
Contact me

- Movehut
- View Listings
- Office
- £17,500 per annum
East Laith Gate, 2b Kings Mews, Doncaster, DN1 1JD
East Laith Gate, 2b Kings Mews, Doncaster, DN1 1JD, Doncaster, South Yorkshire- 1435.47 sqft
Contact me

- Craven Wildsmith
- View Listings
- Office
- £8,400 per annum
M & M Business Park, Kirk Sandall, Doncaster, DN3 1HR
M & M Business Park, Kirk Sandall, Doncaster, DN3 1HR, Doncaster, Kirk Sandall- 944 sqft
Contact me

- Craven Wildsmith
- View Listings
- Office
- £6,700 per annum
Stone Cross House, Doncaster Road, Kirk Sandall, Doncaster, DN3 1HR
Stone Cross House, Doncaster Road, Kirk Sandall, Doncaster, DN3 1HR, Doncaster, South Yorkshire, Kirk Sandall- 823 sqft
Contact me

- Craven Wildsmith
- View Listings
- Office
- £1,500 per month
Unit 5, Jetstream Drive, Doncaster, DN9 3QS
Unit 5, Jetstream Drive, Doncaster, DN9 3QS, Doncaster, South Yorkshire- 116.32 sqm
Contact me

- Craven Wildsmith
- View Listings
- Office
- £150 per month
Parking At Unit 5, Jetstream Drive, Doncaster, DN9 3QS
Parking At Unit 5, Jetstream Drive, Doncaster, DN9 3QS, Doncaster, South YorkshireContact me

- Craven Wildsmith
- View Listings
- Office
- £1,000 - £4,000 per month
Frances Street Off East Laith Gate, 1 Kings Mews, Doncaster, DN1 1JB
Frances Street Off East Laith Gate, 1 Kings Mews, Doncaster, DN1 1JB, Doncaster, South Yorkshire- 1026 sqft
Contact me

- Craven Wildsmith
- View Listings
Contact me

- Fenn Wright
- View Listings

- Fenn Wright
- View Listings


