Overview
- Retail
- Property Type
- 793 - 793
- sq ft
Description
Location
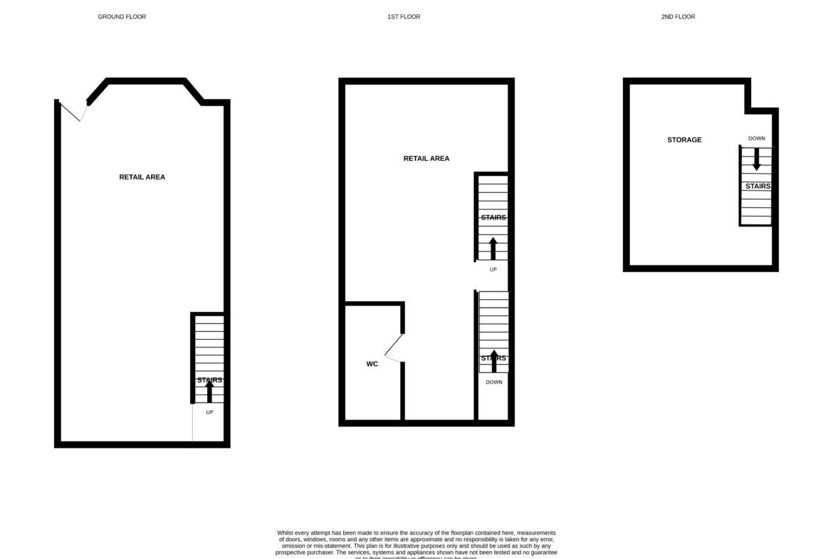
The property comprises an attractive 3 storey retail unit. The property has recently been refurbished and offers open plan ground floor accommodation with a glazed shopfront, exposed timber beams and recessed LED spotlights and amtico flooring throughout. The ground floor is heated and cooled by a comfort cooling system.
Location
The property is located in the popular area of Baddow Road within Chelmsford City centre. Baddow Road is known for its high end retailers and restaurants, with nearby occupiers including independent boutique retailers, bars and restaurants. The Odeon Cinema, Q-Park multi-storey car park and the High Street are all nearby.
Accommodation
We have measured the premises in accordance with the RICS Code of Measuring Practice and calculate the net internal floor areas to be as follows:
Ground floor: 301 Sq. Ft. (28 Sq. M.)
First Floor: 333 Sq. Ft. (30.9 Sq. M.)
Second Floor: 159 Sq. Ft. (14.8 Sq. M.) Total: 793 Sq. Ft. (73.7 Sq. M.)
Services
We understand the property is connected to mains water, drainage and electricity. We have not tested any of the services and all interested parties should rely upon their own enquiries with the relevant utility company in connection with the availability and capacity of all of those serving the property including IT and telecommunication links.
Business Rates
The property is listed in the Valuation Office Agency Rating List as follows:
Rateable Value: £15,250
Approx. Rates Payable (2025/26): £ 7,609.75 pa
We understand the property may be eligible for small business rates relief subject to individual circumstances. Interested parties are advised to enquire with the Local Authority for further information.
Local Authority
Chelmsford City Council Civic Centre, Duke Street, Chelmsford, CM1 1JE T: 01245 606826
Planning
We understand that the property benefits from Class E use.
EPC
Rating C-52.
VAT
We understand that the property is not elected to VAT.
Terms
The premises are available on a new full repairing and insuring lease for a term to be agreed, at a commencing rent of £18,000 per annum exclusive.
Legal costs
Each party to bear their own legal costs.
Summary
Key points
- City Centre Retail Unit
- High Footfall Location
- 3 Storey Building
- Attractive Period Features
- Comfort Cooling and Heating
- Nearby Multi-Storey Car Park
- Contact
Fenn Wright
Tel: 01245 261226
John Logan
jdl@fennwright.co.uk
Contact Information
View Listings- Fenn Wright
- 01473 417714
Enquire About This Property
Similar Listings
- Office
- £17,500 per annum
East Laith Gate, 2b Kings Mews, Doncaster, DN1 1JD
East Laith Gate, 2b Kings Mews, Doncaster, DN1 1JD, Doncaster, South Yorkshire- 1435.47 sqft
Contact me

- Craven Wildsmith
- View Listings
- Office
- £8,400 per annum
M & M Business Park, Kirk Sandall, Doncaster, DN3 1HR
M & M Business Park, Kirk Sandall, Doncaster, DN3 1HR, Doncaster, Kirk Sandall- 944 sqft
Contact me

- Craven Wildsmith
- View Listings
- Office
- £6,700 per annum
Stone Cross House, Doncaster Road, Kirk Sandall, Doncaster, DN3 1HR
Stone Cross House, Doncaster Road, Kirk Sandall, Doncaster, DN3 1HR, Doncaster, South Yorkshire, Kirk Sandall- 823 sqft
Contact me

- Craven Wildsmith
- View Listings
- Office
- £1,500 per month
Unit 5, Jetstream Drive, Doncaster, DN9 3QS
Unit 5, Jetstream Drive, Doncaster, DN9 3QS, Doncaster, South Yorkshire- 116.32 sqm
Contact me

- Craven Wildsmith
- View Listings
- Office
- £150 per month
Parking At Unit 5, Jetstream Drive, Doncaster, DN9 3QS
Parking At Unit 5, Jetstream Drive, Doncaster, DN9 3QS, Doncaster, South YorkshireContact me

- Craven Wildsmith
- View Listings
- Office
- £1,000 - £4,000 per month
Frances Street Off East Laith Gate, 1 Kings Mews, Doncaster, DN1 1JB
Frances Street Off East Laith Gate, 1 Kings Mews, Doncaster, DN1 1JB, Doncaster, South Yorkshire- 1026 sqft
Contact me

- Craven Wildsmith
- View Listings
- Office
- £1,750 - £3,700 per month
East Laith Gate, 2c & 2d Kings Mews, Doncaster, DN1 1JD
East Laith Gate, 2c & 2d Kings Mews, Doncaster, DN1 1JD, Doncaster, South Yorkshire- 1800 sqft
Contact me

- Craven Wildsmith
- View Listings
- Office
- £1,150 per month
Offices 3 And 4, Queens Road, Queens Road Design Centre, Town Centre, Doncaster, DN1 2NH
Offices 3 And 4, Queens Road, Queens Road Design Centre, Town Centre, Doncaster, DN1 2NH, Doncaster, Town Centre- 86 sqm
Contact me

- Craven Wildsmith
- View Listings
- Office
- £650 per month
Office 6, Queens Road, Queens Road Design Centre, Town Centre, Doncaster, DN1 2NH
Office 6, Queens Road, Queens Road Design Centre, Town Centre, Doncaster, DN1 2NH, Doncaster, South Yorkshire, Town Centre- 53 sqm
Contact me

- Craven Wildsmith
- View Listings
Contact me

- Fenn Wright
- View Listings

- Fenn Wright
- View Listings




