Search
Overview
- Office
- Property Type
Description
Location
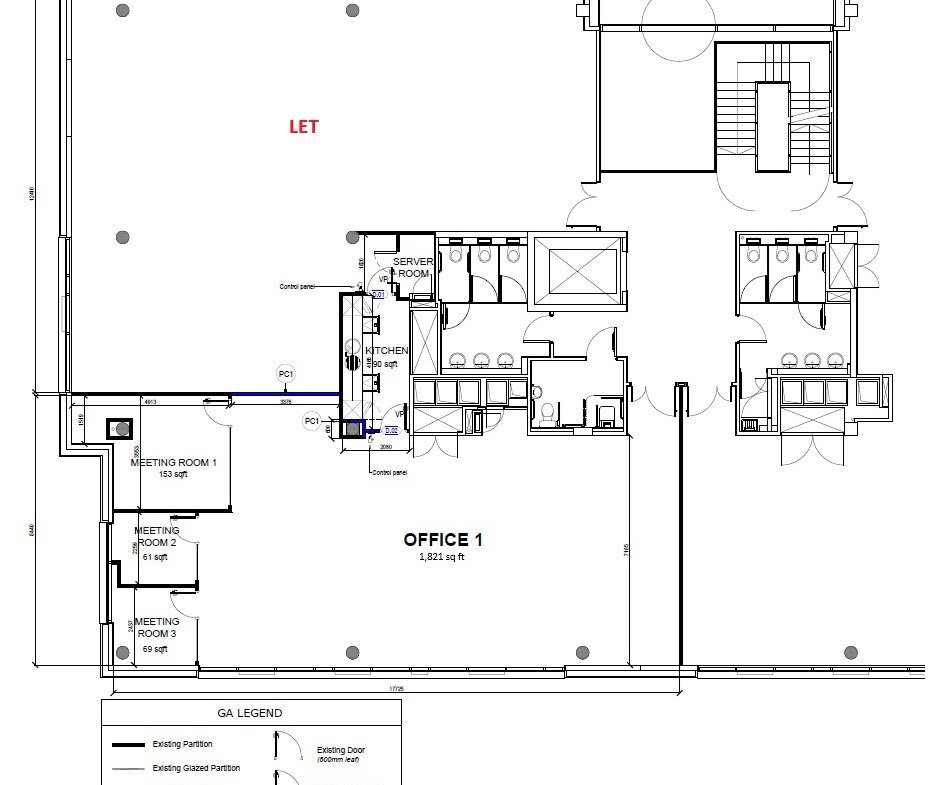
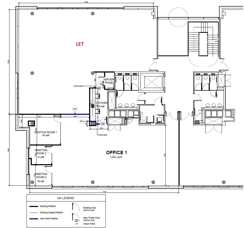
100 Park Drive is a striking three-storey landmark building located in the centre of Milton Park offering Grade A offices to let. The part first floor is open plan accommodation with boardroom, and two additional meeting rooms. The 1,821 sq ft suite benefits from access to a shared kitchen, 5 parking spaces and is close to Milton Park's amenity hub which is undergoing a major refurbishment. The common areas within the building are due to be refurbished shortly.
Summary
Key points
- At the heart of Milton Park's amenity
- Impressive triple height reception
- Flexible open plan space with the ability to split
- Light and spacious floors
- Part fitted with meeting rooms and a kitchen
- Showers and cycle storage
- Generous parking allocation
Contact
LAMBERT SMITH HAMPTON LIMITED
Tel: 07544 801 888
Archie Chitty
achitty@lsh.co.uk
LAMBERT SMITH HAMPTON LIMITED
Tel: 07709 848 527
Jasmine Townsend
jtownsend@lsh.co.uk
EPC
100 Park Drive, Milton Park, Abingdon, OX14 4RY
Contact Information
View ListingsSimilar Listings
- Commercial
- £84,338 pa
00745001721009
Kings Terrace London NW1 0LP, 17-21 Kings Terrace London, London, London Borough of Camden, UK, NW1 0PQ- 3373 Sq Ft
Contact me

- Movehut
- View Listings
- Commercial
- £84,338 pa
Ground Floor Office: London Borough of Camden
Kings Terrace London NW1 0LP, 17-21 Kings Terrace London, London, London Borough of Camden, UK, NW1 0PQ- 3373 Sq Ft
Contact me

- Movehut
- View Listings
- Office
- £17,500 per annum
East Laith Gate, 2b Kings Mews, Doncaster, DN1 1JD
East Laith Gate, 2b Kings Mews, Doncaster, DN1 1JD, Doncaster, South Yorkshire- 1435.47 sqft
Contact me

- Craven Wildsmith
- View Listings
- Office
- £8,400 per annum
M & M Business Park, Kirk Sandall, Doncaster, DN3 1HR
M & M Business Park, Kirk Sandall, Doncaster, DN3 1HR, Doncaster, Kirk Sandall- 944 sqft
Contact me

- Craven Wildsmith
- View Listings
- Office
- £6,700 per annum
Stone Cross House, Doncaster Road, Kirk Sandall, Doncaster, DN3 1HR
Stone Cross House, Doncaster Road, Kirk Sandall, Doncaster, DN3 1HR, Doncaster, South Yorkshire, Kirk Sandall- 823 sqft
Contact me

- Craven Wildsmith
- View Listings
- Office
- £1,500 per month
Unit 5, Jetstream Drive, Doncaster, DN9 3QS
Unit 5, Jetstream Drive, Doncaster, DN9 3QS, Doncaster, South Yorkshire- 116.32 sqm
Contact me

- Craven Wildsmith
- View Listings
- Office
- £150 per month
Parking At Unit 5, Jetstream Drive, Doncaster, DN9 3QS
Parking At Unit 5, Jetstream Drive, Doncaster, DN9 3QS, Doncaster, South YorkshireContact me

- Craven Wildsmith
- View Listings
- Office
- £1,000 - £4,000 per month
Frances Street Off East Laith Gate, 1 Kings Mews, Doncaster, DN1 1JB
Frances Street Off East Laith Gate, 1 Kings Mews, Doncaster, DN1 1JB, Doncaster, South Yorkshire- 1026 sqft
Contact me

- Craven Wildsmith
- View Listings
- Office
- £1,750 - £3,700 per month
East Laith Gate, 2c & 2d Kings Mews, Doncaster, DN1 1JD
East Laith Gate, 2c & 2d Kings Mews, Doncaster, DN1 1JD, Doncaster, South Yorkshire- 1800 sqft
Contact me

- Craven Wildsmith
- View Listings
- Kalmers
Contact me

- Kalmers
- View Listings

- Kalmers
- View Listings






