Overview
- Office
- Property Type
- 1668 - 1668
- sq ft
Description
Location
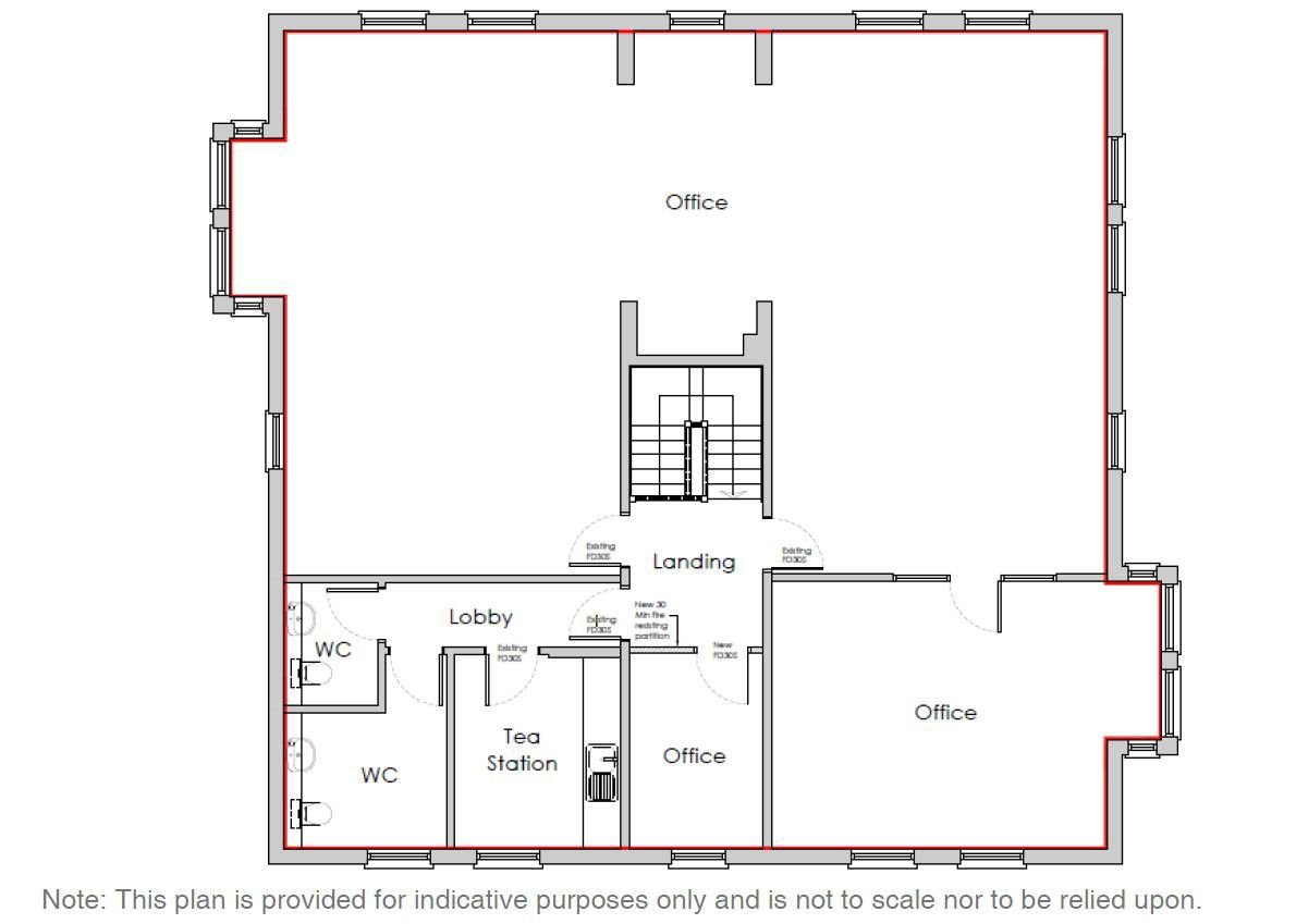
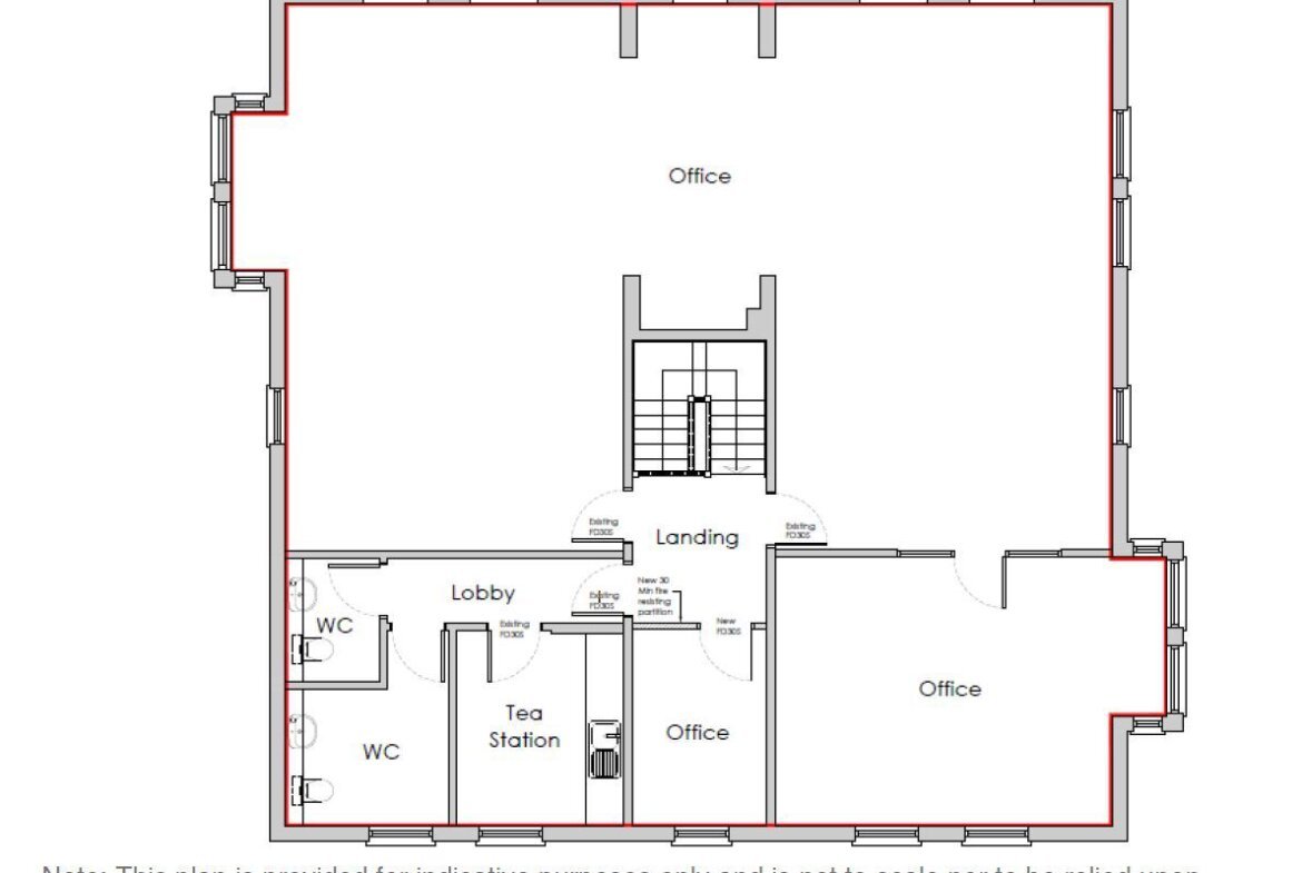
The office is located on the first floor and is primarily open plan, with two separate offices/meeting rooms, male and female WC facilities and a kitchenette.
The specification includes carpeting throughout, suspended ceilings with recessed LED lighting, heating and cooling units, perimeter trunking with CAT 5 cabling and electrical sockets (services not tested), and multiple triple-glazed windows that allow plenty of natural light.
We have been advised that BT Infinity high speed fibre broadband is available in this area.
Externally, there are eleven allocated car parking spaces, plus additional visitor parking on site.
LOCATION
The office is situated at the popular Matchyns office development which is located in attractive landscaped grounds directly adjacent to the A12 at Rivenhall End.
Witham town centre and main line railway station are within two miles and Chelmsford, Colchester and Braintree are within 10, 11 and 6 miles respectively.
ACCOMMODATION
[Approximate Net Internal Floor Areas]
Total: 1,668 sq ft [155 sq m] approx.
TERMS
The premises are available to let by way of an assignment of the existing ten year lease to expire 20 June 2032, with a tenant break 30 June 2027, at a current passing rent of £28,500 per annum plus VAT.
Further details are available upon request.
Note: Consideration may be given to a new lease, subject to terms and landlord consent.
SERVICE CHARGE
A service charge is levied to cover the cost of the external building maintenance, grounds maintenance, lighting of the landscaped and car parking areas, water rates, sewerage charges, Landlords electrical supply, rubbish collection, pest control, window cleaning and CCTV.
Approximate cost for the current quarter is £1,172.83 plus VAT, payable on account.
BUSINESS RATES
We are advised that the premises have a rateable value, with effect from the 1st April 2023, of £24,000.
Therefore estimated rates payable of approximately £11,980 for the current year.
Interested parties are advised to make their own enquiries.
BUILDINGS INSURANCE
The buildings insurance is to be arranged by the landlord with the cost to be recovered from the tenant.
For the current year the approximate cost is £566.65 plus VAT.
ENERGY PERFORMANCE CERTIFICATE [EPC]
We have been advised that the premises fall within class C (54) of the energy performance assessment scale. A full copy of the EPC assessment is available upon request.
VAT
VAT will be applicable on the rent and service. All rents and prices are exclusive of VAT under the Finance act 1989.
LEGAL COSTS
Each party will bear their own legal costs.
ANTI-MONEY LAUNDERING REGULATIONS
Anti-Money Laundering Regulations require Fenn Wright to formally verify a prospective tenants identity prior to the instruction of solicitors.
VIEWINGS STRICTLY BY APPOINTMENT VIA SOLE LETTING AGENTS:
Fenn Wright
T: 01206 854545
E: colchestercommercial@fennwright.co.uk
Summary
Key points
- First Floor Open Plan Office
- Meeting / Training Room, WC & Kitchenette Facilities
- Heating / Cooling & LED Lighting
- Direct Access to The A12
- Eleven On Site Car Parking Spaces
- Available from January 2026
- Contact
Fenn Wright
Tel: 01206 854545
Michael Moody
mcm@fennwright.co.uk
Contact Information
View Listings- Fenn Wright
- 01473 417714
Enquire About This Property
Similar Listings
- Office
- £17,500 per annum
East Laith Gate, 2b Kings Mews, Doncaster, DN1 1JD
East Laith Gate, 2b Kings Mews, Doncaster, DN1 1JD, Doncaster, South Yorkshire- 1435.47 sqft
Contact me

- Craven Wildsmith
- View Listings
- Office
- £8,400 per annum
M & M Business Park, Kirk Sandall, Doncaster, DN3 1HR
M & M Business Park, Kirk Sandall, Doncaster, DN3 1HR, Doncaster, Kirk Sandall- 944 sqft
Contact me

- Craven Wildsmith
- View Listings
- Office
- £6,700 per annum
Stone Cross House, Doncaster Road, Kirk Sandall, Doncaster, DN3 1HR
Stone Cross House, Doncaster Road, Kirk Sandall, Doncaster, DN3 1HR, Doncaster, South Yorkshire, Kirk Sandall- 823 sqft
Contact me

- Craven Wildsmith
- View Listings
- Office
- £1,500 per month
Unit 5, Jetstream Drive, Doncaster, DN9 3QS
Unit 5, Jetstream Drive, Doncaster, DN9 3QS, Doncaster, South Yorkshire- 116.32 sqm
Contact me

- Craven Wildsmith
- View Listings
- Office
- £150 per month
Parking At Unit 5, Jetstream Drive, Doncaster, DN9 3QS
Parking At Unit 5, Jetstream Drive, Doncaster, DN9 3QS, Doncaster, South YorkshireContact me

- Craven Wildsmith
- View Listings
- Office
- £1,000 - £4,000 per month
Frances Street Off East Laith Gate, 1 Kings Mews, Doncaster, DN1 1JB
Frances Street Off East Laith Gate, 1 Kings Mews, Doncaster, DN1 1JB, Doncaster, South Yorkshire- 1026 sqft
Contact me

- Craven Wildsmith
- View Listings
- Office
- £1,750 - £3,700 per month
East Laith Gate, 2c & 2d Kings Mews, Doncaster, DN1 1JD
East Laith Gate, 2c & 2d Kings Mews, Doncaster, DN1 1JD, Doncaster, South Yorkshire- 1800 sqft
Contact me

- Craven Wildsmith
- View Listings
- Office
- £1,150 per month
Offices 3 And 4, Queens Road, Queens Road Design Centre, Town Centre, Doncaster, DN1 2NH
Offices 3 And 4, Queens Road, Queens Road Design Centre, Town Centre, Doncaster, DN1 2NH, Doncaster, Town Centre- 86 sqm
Contact me

- Craven Wildsmith
- View Listings
- Office
- £650 per month
Office 6, Queens Road, Queens Road Design Centre, Town Centre, Doncaster, DN1 2NH
Office 6, Queens Road, Queens Road Design Centre, Town Centre, Doncaster, DN1 2NH, Doncaster, South Yorkshire, Town Centre- 53 sqm
Contact me

- Craven Wildsmith
- View Listings
Contact me

- Fenn Wright
- View Listings

- Fenn Wright
- View Listings










