Search
Overview
- Office
- Property Type
Description
Location
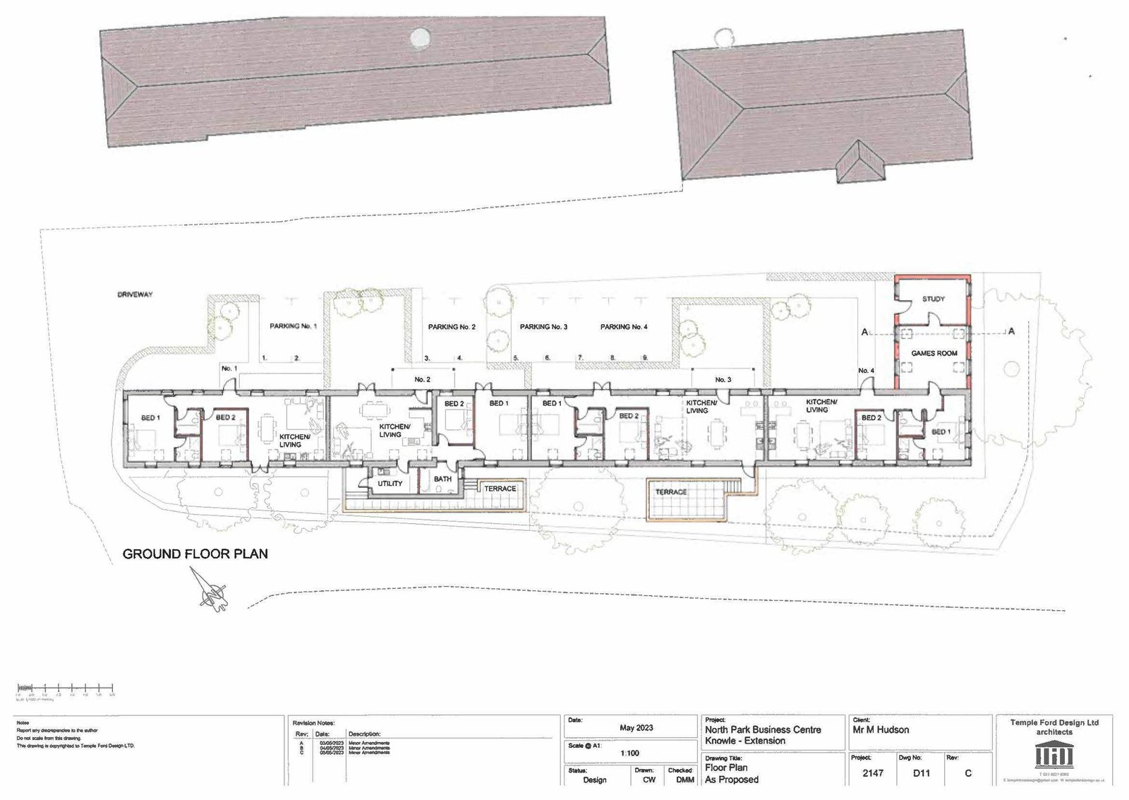
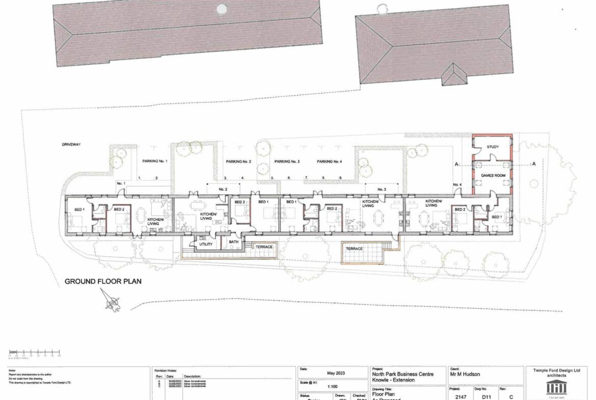
North Park began life as part of the grouped structures forming Knowle Farm, dating back to 17th century.
The property features barn-style single storey office buildings, with 16 parking spaces and the benefit of planning permission for an extension and conversion to four residential units. Previously used as offices by the current owners, the building is in good condition, ready for the new owner to begin the conversion process.
Summary
Key points
- Guide price £600,000
- Oven ready development to four dwellings with parking
- Attractive setting with good transport links
- Conversion Planning Ref - 23/01185/PNRCOU
- Extension Planning Ref - 23/01186/FUL
- Full plans available on request
Contact
LAMBERT SMITH HAMPTON LIMITED
Tel: 07596 578707
George Cook
gcook@lsh.co.uk
LAMBERT SMITH HAMPTON LIMITED
Tel: 07709 502222
Kenan Rowles
krowles@lsh.co.uk
EPC
Mortgage Calculator
Monthly
-
Down Payment
-
Loan Amount
-
Monthly Mortgage Payment
£
%
%
1 - 4 North Park, Mayles Lane, Knowle, PO17 5LJ
Contact Information
View ListingsSimilar Listings
- Industrial, Industrial Warehouse
- £600,000 pax & Price u/a
Industrial Warehouse: Sale/Lease, Burnley, BB10 2TT
Unit 2 Widow Hill Court Heasandford Industrial Estate, Burnley, Lancashire, BB10 2TT, Unit 2 Widow Hill Court, Burnley, Lancashire, Burnley, UK, BB10 2TT- 143,051 sq ft
- Industrial
Station Road Garage, Station Road, Adwick Le Street, Doncaster, DN6 7BE
Station Road Garage, Station Road, Adwick Le Street, Doncaster, DN6 7BE, Doncaster, Adwick-Le-Street- 160 sqm
Contact me

- Craven Wildsmith
- View Listings
- Investment
Marvels Lane Clinic, 37 Marvels Lane, Bromley, London, SE12 9PN
Marvels Lane Clinic, 37 Marvels Lane, Bromley, London, SE12 9PN, London, Bromley- 10000 sqft
- Investment
114E Blackstock Road, Islington, London, N4 2DR
114E Blackstock Road, Islington, London, N4 2DR, London, Islington- 500 sqft
- Investment
1 – 3 Marconi Place, Friern Barnet, London, N11 1PE
1 - 3 Marconi Place, Friern Barnet, London, N11 1PE, London, Friern Barnet- 4988 sqft
- Other
Car Park Space, 32 Ewart Grove, Emerald Apartments, Wood Green, London, N22 5NU
Car Park Space, 32 Ewart Grove, Emerald Apartments, Wood Green, London, N22 5NU, London, Wood Green- 135 sqft
- Other
Car Park Space, 32 Ewart Grove, Emerald Apartments, Wood Green, London, N22 5NU
Car Park Space, 32 Ewart Grove, Emerald Apartments, Wood Green, London, N22 5NU, London, Wood Green- 135 sqft
- Lambert Smith Hampton


